80000
元/㎡(参考均价)
变价提醒楼盘地址:
丰台 丰台区新宫家园北区西50米(新宫东路西)
地址发送到手机
交房时间:
2026年06月30日
主力户型:
4室2厅2卫 (建面133.0m²)
3室2厅2卫 (建面95.0m²)
2室2厅2卫 (建面89.0m²)
2室2厅1卫 (建面80.0m²)
1室1厅1卫 (建面55.0m²)
3室2厅2卫 (建面89.0m²)
3室2厅2卫 (建面100.0m²)
4室2厅3卫 (建面148.0m²)
4室2厅3卫 (建面168.0m²)
3室2厅1卫 (建面87.0m²)
余房查询预售证号:
京房售证字(2025)98号
微信扫码拨号
4006162877
转
448760

-暂无数据-
楼栋信息
20幢
4幢
6幢
3幢
11幢
7幢
13幢
8幢
2幢
1幢
5幢
17幢
14幢
15幢
12幢
19幢
9幢
10幢
18幢
16幢
在售
20幢
在售
4幢
在售
6幢
在售
3幢
在售
11幢
在售
7幢
在售
13幢
在售
8幢
在售
2幢
在售
1幢
在售
5幢
在售
17幢
在售
14幢
在售
15幢
在售
12幢
在售
19幢
在售
9幢
在售
10幢
在售
18幢
在售
16幢
20幢 在售
单元:1个
楼层:18层
立即报名
我同意《搜狐焦点隐私保护政策》
稍后会有置业顾问联系您
基本信息

楼盘名称:
京投发展·森与天成
建成年代:
暂无数据
物业类型:
普通住宅,花园洋房
项目特色:
宜居生态地产,公园地产,大平层
建筑类型:
板楼
装修标准:
暂无数据
产权年限:
70年
装修情况:
非毛坯
开发商:
北京京投隆德置业有限公司
环线位置:
四环至五环
投资商:
暂无数据
品牌商:
暂无数据
楼盘地址:
丰台 丰台区新宫家园北区西50米(新宫东路西)
销售信息
销售状态:
在售
交房时间:
2026年06月30日
开盘时间:
2023年11月12日
开盘提醒
售楼电话:
4006162877-448760
售楼地址:
新宫地铁站A口北300米
预售许可证:
(一房一价:详情请至住建委网站查询)
| 预售许可证 | 获取时间 | 绑定楼栋 |
|---|---|---|
京房售证字(2025)98号 | 2025-09-19 | |
京房售证字(2023)136号 查看图片 | 2023-12-09 | 1#住宅楼地上住宅、2#住宅楼地上住宅、5#住宅楼地上住宅、8#住宅楼地上住宅、9#住宅楼地上住宅、10#住宅楼地上住宅、12#住宅楼地上住宅、13#住宅楼地上住宅、14#住宅楼地上住宅、15#住宅楼地上住宅、16#住宅楼地上住宅、17#住宅楼地上住宅、18#住宅楼地上住宅、19#住宅楼地上住宅 |
京房售证字(2023)125号 | 2023-11-11 | 6#、7#、11#、3#、4# |
京房售证字(2023)111号 查看图片 | 2023-09-29 | 20#住宅楼地上全部住宅 |
价格信息 变价通知
| 记录时间 | 历史高价 | 均价 | 历史低价 | 价格描述 |
|---|---|---|---|---|
2026-04-01 | 80000.0元/m² | |||
2025-02-13 | 77000.0元/m² | |||
2025-02-10 | 72000.0元/m² | 一期成交均价,二期新品销售单价约7.7-8万元/平米 | ||
2024-10-29 | 1310.0万元/套 | 1037.0万元/套 | 133㎡ 价格1037万,148㎡价格1154万,168㎡价格1310万 | |
2024-06-18 | 78000.0元/m² | 成交均价77918元/平 | ||
2024-02-27 | 630.0万元/套 | 76-148㎡精装洋房,总价630万起 | ||
2023-12-25 | 80000.0元/m² | |||
2023-11-22 | 78000.0元/m² | |||
2023-11-17 | 80000.0元/m² | |||
2023-10-24 | 81000.0元/m² | 73000.0元/m² | 单价:7.3-8.1万元/平米 |
交通信息
轨道交通:
4号线新宫;19号线新宫
公交路线:
暂无数据
交通方式:
地铁:乘坐地铁至4号线或19号线新宫站A口(西北口)出,向西行走约300米即可到达本项目;
自驾:南四环公益西桥往南一公里 ,由南四环中路转辅路,再由辅路进入槐房西路,槐房西路南行1.5公里,右转至新宫东路,直行700米即可到达或南五环 西红门南桥往北四公里,沿京开路行驶4.2公里,转入新宫商业二街行驶1.5公里,转入新宫东路行驶220米即到。
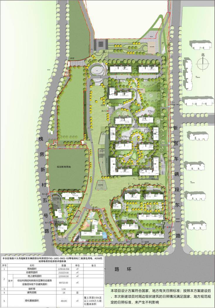
规划信息
占地面积:
120616平方米
建筑面积:
125500平方米
容积率:
1.04
绿化率:
30%
停车位:
车位配比为1:1.1;1203个
楼栋总数:
20
总户数:
1094
物业公司:
北京睿德发展物业管理服务有限公司
物业费:
7.38元/平方米.月
物业费描述:
暂无数据
周边配套:
周边商业:槐房万达广场、大悦春风里、荟聚购物中心、宜家、山姆会员店等
周边公园:南苑森林湿地公园、海子公园、槐新公园
周边学校:
幼儿园:一诺国际幼儿园、建华实验幼儿园、北京市丰台一幼
中小学:槐房小学、南苑中学、北京金融街润泽学校
周边医院:首都医科大学附属北京天坛医院、北京航天总医院、北京博爱医院、北京市鼓楼中医医院(南院区)、北京丰台右安门医院
周边银行:北京农商银行、中国光大银行、招商银行、中国邮政储蓄银行
社区配套:✔幼儿园 ✔信报箱 ✔快递柜 ✔健身设施 ✔儿童游乐场 ✔老年文化中心 ✔运动场地
学校:
幼儿园:一诺国际幼儿园、建华实验幼儿园、北京市丰台区丰台第一幼儿园
小学:北京市丰台区槐房小学
中学:南苑中学、北京金融街润泽学校
内部配套:
暂无数据
建材设备:
暂无数据
供暖方式:
暂无数据
楼盘简介
森与天成是京投发展在丰台四环倾力打造的低密洋房项目,距4号线及19号线新宫地铁站约300米,在17.5公顷南苑森林湿地公园的环抱下,成为金融街、丽泽商务区、首都商务新区、丰台科技园四大商务区的后花园。
-暂无数据-
近期如有看房活动,请通知我
已有41人报名
立即报名
-暂无数据-
近期如有看房活动,请通知我
已有41人报名
立即报名



