
-暂无数据-
楼栋信息
-暂无数据-
立即报名
我同意《搜狐焦点隐私保护政策》
稍后会有置业顾问联系您
基本信息

楼盘名称:
保利·建工·嘉华天珺
建成年代:
暂无数据
物业类型:
普通住宅
项目特色:
大平层,小户型,公园地产,科技住宅,宜居生态地产,名企盘
建筑类型:
板楼,低层,小高层
装修标准:
暂无数据
产权年限:
70年
装修情况:
精装修
开发商:
北京建保丰筑置业有限公司
环线位置:
五环至六环
投资商:
保利、建工
品牌商:
保利、建工
楼盘地址:
海淀 大牛坊二环路与大牛坊五巷口交叉口北80米
销售信息
销售状态:
在售
交房时间:
2027年05月15日
开盘时间:
2025年01月13日
开盘提醒
售楼电话:
4006162877-451524
售楼地址:
为明大厦
预售许可证:
(一房一价:详情请至住建委网站查询)
| 预售许可证 | 获取时间 | 绑定楼栋 |
|---|---|---|
京房售证字(2025)111号 | 2025-09-26 | |
京房售证字(2025)31号 查看图片 | 2025-04-05 | 2-1#住宅楼1层至8层全部住宅;2-2#住宅楼1层至11层全部住宅;2-3#住宅楼1层至9层全部住宅;2-4#住宅楼1层至9层全部住宅;2-5#住宅楼1层至11层全部住宅;2-6#住宅楼1层至9层全部住宅;2-7#住宅楼1层至9层全部住宅;2-8#住宅楼1层至10层全部住宅;2-9#住宅楼1层至8层全部住宅;2-10#住宅楼1层至8层全部住宅 |
京房售证字(2025)31号 查看图片 | 2025-04-05 | 2-4#楼、2-6#楼、2-5#楼、2-7#楼、2-2#楼、2-10#楼、2-3#楼、2-8#楼、2-9#楼、2-1#楼 |
京房售证字(2025)1号 查看图片 | 2025-01-01 | 1-1#;1-2#;1-3#;1-4#;1-5#;1-6#;1-7#;1-8#;1-9#;1-10#;1-11#;1-12#;1-13#;1-14#;1-15#;1-16# |
价格信息 变价通知
| 记录时间 | 历史高价 | 均价 | 历史低价 | 价格描述 |
|---|---|---|---|---|
2025-05-05 | 90000.0元/m² | 85000.0元/m² | 在售户型88 99 118 | |
2025-04-03 | 87000.0元/m² | 86000.0元/m² | 指导价9万 网签均价8万6-8万7,在售户型:88 99 118 127 134 172 | |
2025-01-15 | 88000.0元/m² | 85000.0元/m² | ||
2024-09-18 | 90000.0元/m² |
交通信息
轨道交通:
null永丰
公交路线:
周边有384路直达西北旺、专128路直达西二旗,447路到上地等多路公交车
交通方式:
自驾:
四横:北清路 后厂村路 北五环 玉河路
三纵:永丰路 京新高速 京藏高速
地铁:16号线永丰站
公交:384路直达西北旺、专128路直达西二旗,447路到上地
规划信息
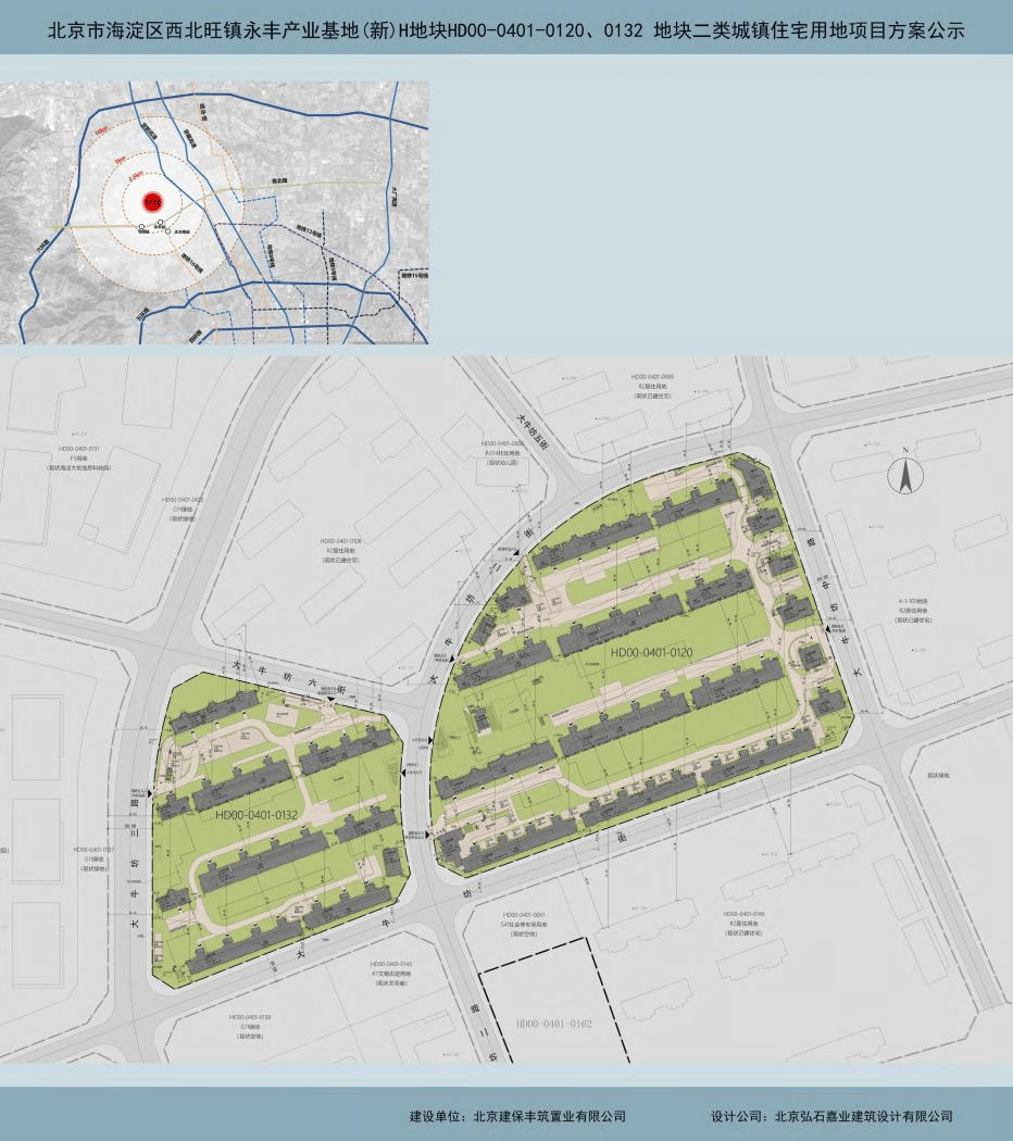
占地面积:
78759.9平方米
建筑面积:
226995.24平方米
容积率:
1.7
绿化率:
30%
停车位:
地下车位数1531
楼栋总数:
26
总户数:
1276
物业公司:
保利物业管理(北京)有限公司
物业费:
7.18元/平方米.月
物业费描述:
暂无数据
周边配套:
学校:中学:清华附中永丰分校、建华实验学校东校区、首都师范大学附属中学科学城学校。
小学:中关村第三小学科技园分校、首都师范大学实验小学永丰分校。
幼儿园:中科幼教科学城北区幼儿园。
商业:海淀大悦城(建设中)、中粮E_ZIKOO智慧谷商业综合体、永丰山姆会员商店(已规划)、超极合生汇、中关村壹号商业街。
医院:北京大学国际医院、海淀北部医疗中心(建设中)。
生态:故宫北院(建设中)、崔家窑湿地公园、西玉河湿地公园(规划)
学校:
暂无数据
内部配套:
商业配套、会所
建材设备:
精装修-华为全屋智能化,方太厨电,简一仿大理石
供暖方式:
暂无数据
楼盘简介
项目由央企保利联手国企建工建著,择址万亿海淀永丰中心,承沿保利天字系TOP品质基因,落位北京首座人文海派作品。
-暂无数据-
近期如有看房活动,请通知我
已有41人报名
立即报名
-暂无数据-
近期如有看房活动,请通知我
已有41人报名
立即报名



