大三亚区域,北纬18°以南;半小时度假圈,坐拥三湾四岛一港一园;近享清水湾、海棠湾、香水湾顶级旅居度假配套。医疗-约2.2km是陵水县人民医院,约3km是(在建)青岛大学附属医院海南分院,臻守健康人生,让生活…
外享周边6大公园景观体系,内享国际贝尔高林团队匠造的园林美学艺境,海泊浮岛、冥想山境、有灵万卷、行云肆意四大庭院式空间景观连通南繁公园,雕琢艺术与工艺精湛的生态氧居。健身房高阶生活空间,设有缤纷主题配套室,让…
项目依托清水湾百亿产业资源,拥揽醇熟滨海度假生活配套,重磅推出建面约105-133㎡纯板精质雅居,悦启品质山海小镇生活。清水湾·云汀是上海弘明与上海爱建等知名企业联手打造的精品项目,致力于打造清水湾片区产品品…
对购房者提供买房交流,购房咨询,解答房产政策,分享海南房价相关信息等,无论任何购房信息,我们将有专业客服即时解答。对购房者提供买房交流,购房咨询,解答房产政策,分享海南房价相关信息等,无论任何购房信息,我们将…
对购房者提供买房交流,购房咨询,解答房产政策,分享海南房价相关信息等,无论任何购房信息,我们将有专业客服即时解答。万华·东岸麓洲独占三亚中央商务区生态C位,毗邻东岸湿地公园,坐拥千亩城市绿肺,同时与三亚大悦城…
当这一纬度串联起夏威夷、普吉岛等世界度假胜地,它在海南清水湾,为您定义了真正的国际度假生活。项目不仅坐拥本地烟火气息,更可快速接驳清水湾中段、西段及黎安港的优质旅游度假资源,十分钟车程内即可享受高端酒店、游乐…
以大生态、大健康、大消费、大生活四大规划统筹全域,携三亚首座万象城等高奢配套,与国家共同构建全球海湾新封面。对购房者提供买房交流,购房咨询,解答房产政策,分享海南房价相关信息等,无论任何购房信息,我们将有专业…
北京城建品牌以国企实力开发海景墅质洋房,大开间横厅设计,奢享IMAX巨幕海景,驭领红塘,大雅盛放。品牌开发:北京城建品牌以国企实力开发海景墅质洋房,大开间横厅设计,奢享IMAX巨幕海景,驭领红塘,大雅盛放;标…
海罗片区地处三亚市中心城区东南部,东起学院路、西至海螺一路、北抵迎宾路、东南临海螺岭,根据规划,将蝶变为产城一体、山水交融的国际商务总部公园和超享配套服务社区,整体形成“一轴一带、一链多廊、三区多组团”的精妙…
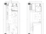
户型鉴赏1.0超低容积率:至高6层,三亚罕有的低密社区,营造墅感生活体验。万琉合院,位于吉阳区政府规划“吉阳汇客厅”的核芯,将亚龙湾度假组团、鹿回头景区组团等多点汇聚形成合力,通过亚龙湾南站打造站城一体的E-…