科城·学林美筑择址三亚崖州湾科技城高新区城芯,片区配套涵盖基础教育、交通、医疗、商业、生态等全方位生活场域,与通海公园为邻,距崖州湾海岸线直线距离仅约1.6公里,坐享崖州湾醇熟城市配套,有度假更有生活。项目共…
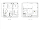
轩朗舒适、高使用率全明户型,约10米面宽的景观阳台,横跨双卧一厅,开阔的起居空间,视野通达,纵享无边美景。全景户型,大面宽全景观空间布局,餐客厅轩朗开阔,三阳台臻稀户型,艺术空间组合序列,人性化精析设计,纵享…
三亚崖州湾科技城高新区,规划面积约26平方公里,是海南自贸港13大重点园区中唯一的深海科技产业高地,目前已构建“南繁硅谷+深海科技+产城融合”三位一体生态圈。我的服务宗旨是:用真挚的诚意,专业的服务,优质的房…
必买价值五【全龄配套】:自建八大全龄生活配套——成人泳池+儿童泳池双泳池、健康小屋、便捷超市、业主食堂等下楼即享。必买价值六【品质洋房】:70年产权,5-6层花园式洋房,一梯两户,板式结构全明采光。必买价值八…
三亚湾作为中央商务区重点的凤凰海岸单元辐射地区,汇聚高端度假资源,尽享生活便利与城市繁华,三亚湾的醇熟烟火气,将其宜居属性拉满。我的服务宗旨是:用真挚的诚意,专业的服务,优质的房源,让每一位客户都拥有一个满意…
海罗片区地处三亚市中心城区东南部,东起学院路、西至海螺一路、北抵迎宾路、东南临海螺岭,根据规划,将蝶变为产城一体、山水交融的国际商务总部公园和超享配套服务社区,整体形成“一轴一带、一链多廊、三区多组团”的精妙…
以大生态、大健康、大消费、大生活四大规划统筹全域,携三亚首座万象城等高奢配套,与国家共同构建全球海湾新封面。对购房者提供买房交流,购房咨询,解答房产政策,分享海南房价相关信息等,无论任何购房信息,我们将有专业…
对购房者提供买房交流,购房咨询,解答房产政策,分享海南房价相关信息等,无论任何购房信息,我们将有专业客服即时解答。万华·东岸麓洲独占三亚中央商务区生态C位,毗邻东岸湿地公园,坐拥千亩城市绿肺,同时与三亚大悦城…
招商·林屿间:该项目作为招商蛇口「林屿系」三亚首作,以南低北高的建筑布局,规划424户纯板式自在阔景藏品,纳藏亲海惬意与通海公园绿意鲜氧,写就返璞、自在、松弛、栖心、悦己的从容生活,为三亚敬献度假序列作品。【…
建筑风格简约现代,造型灵动流畅,演绎极具特色的“城市美学艺术馆”,营造轻松舒适的优雅空间,将人文与艺术完美结合,重新定义美好旅居生活新方式。对购房者提供买房交流,购房咨询,解答房产政策,分享海南房价相关信息等…