领秀·翡翠山(丰台区)
扫描到手机,新闻随时看
扫一扫,用手机看文章
更加方便分享给朋友
领秀翡翠山
一、基 本 信 息 :
【 单 价 】5.7万左右
【 总 价 】682万-2500万
【交房标准】毛坯
【交房时间】现房及准现房皆有
【 开 发 商 】北京科技园置业有限公司
【物业公司】高力国际
【 容 积 率 】1.2,总高4~6层
【 绿 化 率 】36.33%
【占地面积】42万㎡
【建筑面积】34万㎡
二、西山西贵墅,花香满三园
领秀·翡翠墅
北科建集团升级之作
高力国际物业管家式服务
人大附中保驾护航
产品:宽境联排别墅
结构:地上三层地下两层
面积:270平米
:地下两层130平+前庭园和后花园110平米
均价:65000
总价:1600万起
产品:宽境双拼别墅
结构:地上三层地下两层
面积:340平
:地下两层+花园360平左右
总价:2500万起
――――――――――――
花园平墅
C区:130~137~160平
一层送地下室花园
二层送北向下沉庭院
顶层
均价52000
B区现房:160~185平
顶层
均价56000元/㎡
三、 项 目 周 边 配 套
1、交 通 配 套
【地铁】房山线直达郭公庄站,14号线直达西局
2、教 育 配 套
【人大附校】
【民大附中丰台实验学校】
【首都师范大学附属云岗小学】
【北大附小丰台学校】
3、医 疗 配 套
三甲 -【武警总院-房山分院】
二甲 -【航天731医院】
三甲 -【长辛店医院】
三甲 -【良乡医院】
4、商 业 配 套
【奥特莱斯】【良乡商圈】
【云岗商圈】 【长阳商圈
四、项目卖点
1城六区---丰台区西南五环外,难得的无回迁房、无两限房的纯粹商品房小区,保证人文素质。
2平墅,B区为现房,客户全款到账,即可办理入住手续。
3容积率1.2、绿化率40%。低密度带来的是高舒适度的居住环境。
4人大附丰台分校优先入学。小学部今年已开学,教师均为硕士以上学历,与资深骨干教师组成“丰台教师梦之队”,28门免费选修课,严格参照人大附中本部标准,为孩子发展提供更多方向;以国际先驱标准建校,打造北京甚至国内首屈一指的高标准校园环境。
5三大公园17万平,相当于23个标准足球场大小。
6高力国际管家服务
由于市场变化,一切价格以案场为主!
更多详情请咨询项目负责人:汪磊13011151607(微信同号)
(温馨提示:购买全北京新房皆不收取任何费用)
这里提供:深入分析、客观讲解、政策咨询、购房建议。

据说要买房的客户找了我都受益匪浅哦,相信您也一样














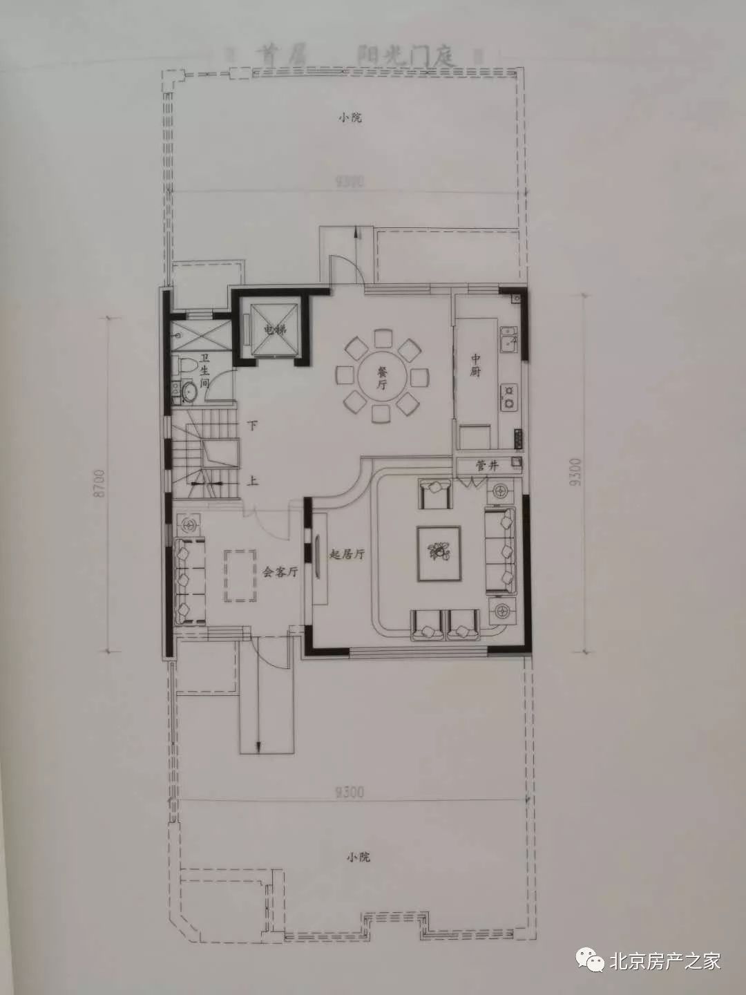
以上为翡翠墅联排户型图
以下为园区实景实拍






以下为部分洋房户型图



以下为样板间照片








声明:本文由入驻焦点开放平台的作者撰写,除焦点官方账号外,观点仅代表作者本人,不代表焦点立场。







