北京 | 凤凰岭山脚下的北欧风
扫描到手机,新闻随时看
扫一扫,用手机看文章
更加方便分享给朋友
屋主是一位年轻业主,从欧洲留学归来,自己创业,热爱旅行和摄影,他在留学期间拍摄了很多值得留念的照片,比如北极光,北欧建筑等等。都很不错(因为屋主时间问题,所以本案很多软装还没有结束)。这个项目屋主要求就是干净.爽朗的北欧格调。
本案实际一共是两套户型,业主很孝顺父母,同样为父母也打造了一套北欧风情的院子。屋主向往大自然的生活,所以一家人选择在北京市郊的凤凰岭山下租这套四合院,门后有山,门前有院子,有花.有草.有果树,可以俯瞰城区。房屋租期为20年,屋主花费80万左右改造它。屋主希望通过对院子的改造,让自己和家人过得更幸福。在城市化高速发展的今天,家人和自己能够回归他们向往的宁静和自然。
项目风格:北欧
项目名称:北京 | 凤凰岭山下
项目面积:280㎡ 四合院
项目预算:80万
主案设计:王怡琳
辅案设计:牙雨 | chinadolls | Andy | 小树苗
品牌支持:司米柜体 书香门第地板 中央空调格力 西门子家电 科勒 芬琳油漆
設計理念:生活是從無到有的過程
設計是從有到無的提煉

▲一層平面布置圖

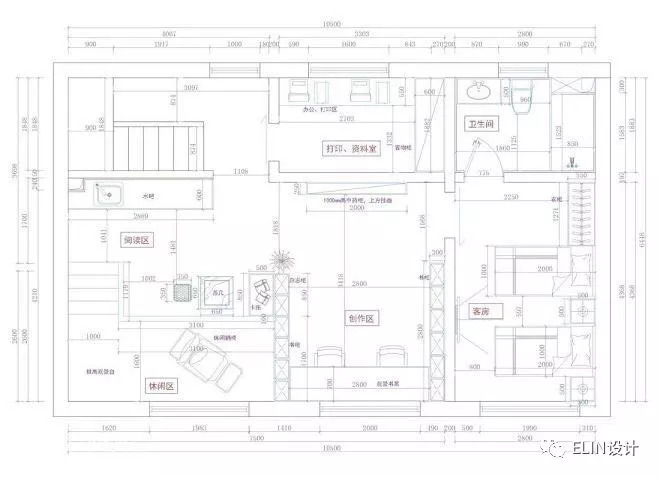
▲ 二層平面布置圖


▲ 独院.景观铺设

▲ 一楼工作区

▲ 一楼厨房区域


▲ 楼梯 楼梯的扶手通过细致的焊接处理,较大限度的减少焊接点的突出,然后打磨,刷漆。谷仓门的滑轨设计,在二楼楼梯处显得格外显眼。

地台可以睡觉,可以打坐,较重要的是你可以看见一座山,不对,是一片山脉。

抬高的地台设计,让很高的空间有了层次的分明(备注:白色少有墙面应该有一副巨大的北极光画)。



▲ 二楼创作区

人工拼接的槽钢镂空楼梯。父母房间的工作台和卡座。

▲ 过道的洗手台设置
声明:本文由入驻焦点开放平台的作者撰写,除焦点官方账号外,观点仅代表作者本人,不代表焦点立场。







