永靓家园两居均价37800 细节你留意了吗?
扫描到手机,新闻随时看
扫一扫,用手机看文章
更加方便分享给朋友
海淀的永靓家园想当年曾红极一时,37800元/平米的价格实打实的让不少购房人群心动,俗话说得好,人红是非多,楼盘也是如此,在排名前列次选房之前,就因为窗地比以及新风系统的问题,让众多的购房者放弃,尽管在第二次递补选房,所剩房源被选择完毕,但是,事情并没有就此结束。永靓家园的业主们用法律的手段开始为自己的房子寻求解决方案。近期,该事件更是登上了北京电视台的《向前一步》。
节目中,面对镜头,开发商代表、项目设计单位代表、政府监管部门代表与业主代表等嘉宾一道展开了积极而坦率的沟通。据了解,申诉进入实质操作阶段。
关于节目中所阐述的情况,我们再次就不再过多重复了,今日,我们换个角度剖析,假如换成您选择永靓家园两居的话,这些细节会注意吗?
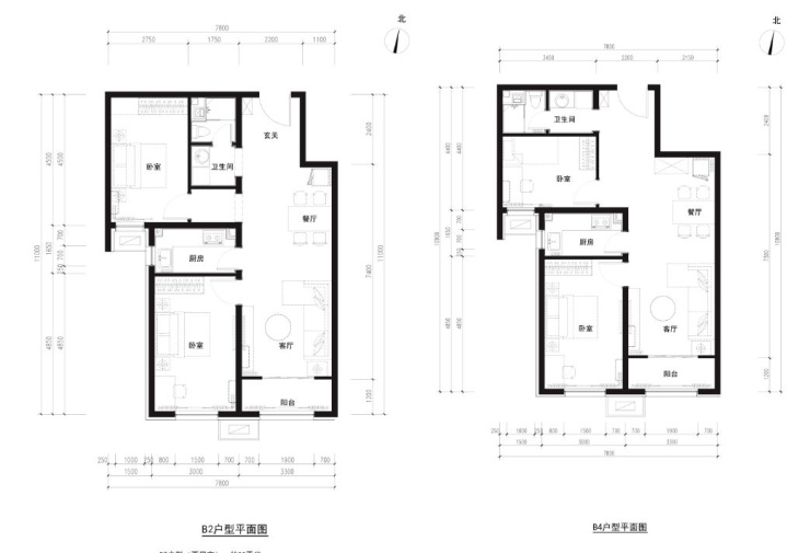
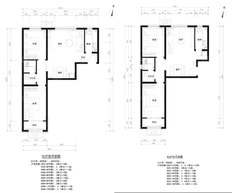
细节一:户型图呈现内容
B2、B4户型图
B2、B4户型属于全南两居,主卧朝南,客厅向阳,光线充足。2梯4户,卫生间为暗卫,阳台为封闭型。
B1、B3户型图
B1、B3户型为客厅朝北的南北两居,是卧室和客厅处在阴面,没有办法享受阳光的美好。边户单元卫生间为明卫。
光看户型图,只能对房型的格局、面积、朝向、特点等信息有所了解,如果不去样板间看的话,很难看出问题来,就好比设计质量上是否有瑕疵,房间后期是否需要微改等。在这里建议各位,去样板间的话,较好自带皮尺,准确测量每一处距离,才能保证日后入住的放心。
细节二:居所内细枝末节
此次永靓家园业主们维权的另一个问题就是项目方无预留新风系统接口。经过此次申诉,目前补充协议上已明确写出,业主在收房后根据个人需要向物业提出安装新风系统申请的,并按照程序进行的,予以支持和审批,该项调整不受“5年不可装修”的条款约束。
尽管,永靓家园的新风系统得到解决,但是相信对于很多人来说,心已疲累。其实,有一个技巧大家要掌握,就是看样板间的时候,一定给看仔细,问清楚,拿不定的地方就问工作人员,暖气片、洗衣机出水管、滤水器等细微之处也都不能放过。
细节三:周边环境需亲探
与永靓家园挂钩的除了维权以外,还有一个名字比较常见——六里屯垃圾清理场。在2017年8月,六里屯垃圾填埋场就因为“臭气浓度超标”登上报纸,人们对于这里的抵触情绪可想而知。再说永靓家园项目,与清理场直线距离约2.5公里,很多人都担心臭气危害到自己。
六里屯垃圾填埋场现状
其实,只要亲测了以后就会发现,其实这个“臭”名昭著的垃圾场目前已不再填埋原生垃圾!现在填埋的是炉渣。除了此项改善以外,场区周边围墙(0米平台)及填埋库区10米平台已经开始架设两道喷雾除臭墙。另外,六里屯垃圾填埋场将在2019年上半年闭场。
至于气味吗,以六里屯垃圾填埋场为中心,东侧约1公里处及北侧北清路路口处,味道有些浓郁。至于永靓家园周围附近,目前暂未闻到刺激性味道。
总结:
每个户型不会十全十美,都会出现一些瑕疵,如果细节上没有注意的话,等入住以后,就会愁人烦心了。所以,请各位有购房意愿的网友们,一定要谨慎,细枝末节切勿放过。
声明:本文由入驻焦点开放平台的作者撰写,除焦点官方账号外,观点仅代表作者本人,不代表焦点立场。







