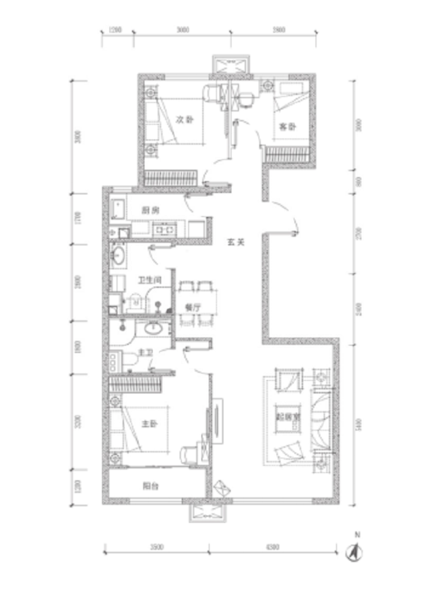
B2反户型-3室2厅2卫-120.0㎡
待售
余房查询
咨询户型优惠
306万元/套
(供参考)
3室2厅2卫
120.0平米
暂无
暂无
窗户为铝合金材质,起居室门窗洞口宽约2.4米,高约1.7米;主卧窗洞口宽约1.7米,高约1.5米;次卧室一窗洞口宽约1.5米,高约1.5米;次卧室二窗洞口宽约1.5米,高约1.5米厨房窗洞口宽约1.5米,高约1.5米;卫生间窗洞口宽约0.7米,高约1.5米,卫生间为暗卫;本户型主卧有封闭阳台。
窗户为铝合金材质,起居室门窗洞口宽约2.4米,高约1.7米;主卧窗洞口宽约1.7米,高约1.5米;次卧室一窗洞口宽约1.5米,高约1.5米;次卧室二窗洞口宽约1.5米,高约1.5米厨房窗洞口宽约1.5米,高约1.5米;卫生间窗洞口宽约0.7米,高约1.5米,卫生间为暗卫;本户型主卧有封闭阳台。
400-616-2877 转 408766
微信扫码,快速拨打
近期如有看房活动,请通知我
已有47人报名
立即报名
亦城亦嘉楼盘点评
59人评价了该楼盘
查看更多
抱歉~当前星级下暂无精华贴
4.3
综合评分
4.8
价格
4.0
地段
4.0
交通
4.0
配套
4.9
环境
写点评







0
综合评分
自动计算评分结果