中海甲叁號院项目月底开盘,目前处于排卡阶段....
扫描到手机,新闻随时看
扫一扫,用手机看文章
更加方便分享给朋友
中海甲叁号院因其新颖独特的外观设计,吸引了许多购房者的围观,楼盘热度居高不下,今天京丞选房团队也去一睹她的芳容。把得到的信息分享给广大的丞粉们。
1项目基础信息
中海甲叁號院建筑规模10万㎡,总户数632户,分为东西两区,共计16栋住宅楼,北边是2栋26层的高层,南面是6栋10层的洋房。
单价预计在10-12万,具体的价格要等到预售证下来了,才能知晓;物业费用9.99元/㎡,绿化率30%,容积率2.8,车位配比1:1.7;总价预计1500万/套起,后期采用国际一线品牌精装标准交付。

2项目社区规划
每区8栋楼,楼层由南到北渐次升高,对应的户型不一。东侧地块规模小于西侧地块,不临街。从楼栋分布位置、土地属性上看,西侧地块价值高于东侧地块。
项目户型共分4个面积,145平、150平、180平、200平。
带270°转角阳台的200㎡户型,分布在东区的小区核心位置3、4、5栋中,可以俯瞰园林。
180平户型分布在2#。
150平分布在1#、4#东户。
145平分布在6#、7#、8#。
一梯一户,每户拥有独立电梯前室。

本月首开的是东区的8幢楼,目前项目处于排卡阶段,200平验资1000万,180平验资800万,150平验资600万,只接受预约客户,感兴趣的朋友可以添加我微信拉您进中海甲叁號院项目群,由开发商销售经理为大家详细解读。
北侧2栋是26层的高板,主要是150㎡及180㎡,以大面宽通透的逻辑为基础,优化室内空间,两种户型客厅面宽均超7米,户型通透均好。
用地规模上,西区地块比东区多近3000平,同样是8栋住宅楼的设计,除北侧高层1#增到两个单元外,其余楼栋数据皆与东区相同。
西区楼间距更大,景观设计空间更多,总体价值高于东区。
中海甲叁號院的配建,包括8万平银泰精品店、5万平国际甲级写字楼、养老设施等,全部位于地块北侧,与南侧纯住宅地块有市政道路相隔。
南侧地块设计了6处具有特色景观组团;悬浮眺望台、廊庭与水景、西入口水幕墙、水雾园、折叠步道与尽端水木廊亭、天台与会客厅。

3项目交通配套
项目所处地理位置优越,配套自然也是十分的优质醇熟。
交通上有9号线和16号线(规划中)双轨交汇,距离九号线丰台南路站仅300米,此外更有丽泽航站楼和丰台高铁站,市内外通勤十分方便。

4项目医疗配套
邻近的医院有天坛医院和北京口腔医院,此外还有301、302两所解放军总医院,医疗资源雄厚扎实。
5项目商业配套
商业上除了周边的万达广场、永旺梦乐城、花乡奥莱等大型商业区,更有8万平方自持商场配建,由银泰定位,旨在打造未来高端体验感的高端商场,能更加凸显该地的商业价值,也就是中海在哪,区域动脉就在哪。
6项目绿化园林
全球十大景观事务所之一的AECOM,操刀中海甲叁號院的园林设计。要大胆、要颠覆、要中西审美的碰撞、要人群的适配、要功能的融合…AECOM带着折叠绿洲、浮游水景、冥想丛林、时光廊架、空中会客厅等,以高级豪宅的水准完成了中海留下的高难度命题。

与传统的园林景观强调欣赏不同,中海甲叁號院园林更强调沉浸式体验和圈层社交,将成年人的活动空间,从室内吸引至室外,从而达到邻里的目的。

错层式的园林表现在北京豪宅市场中甚是罕见,不止提高了绿化的面积,更增加了不少私密的室外空间,可以在自然的包裹下自在的放空冥想。

周边自然环境也十分突出,多公园环绕,与中关村科技园建设的高级生态园重点示范项目丰台科技园生态主题公园仅一街之隔,更有科丰公园、看丹公园、庄怡公园等,说是住在城市绿地里也一点都不为过。
7 项目教育配套
附近有丰台五小、北京八中、首经贸附小、北京十二中等,几乎汇集了丰台区该版块较好的教育资源。
8项目户型图
中海甲叁號院145平户型图
项目较小的面积,位于东侧地块较南侧,首期开盘,共38套。户型方正,南北通透,实用户型,无浪费。
中海甲叁號院180平户型图
边户,分布在两侧位置,首期开盘,共48套。动静分区,南侧双套房设计。
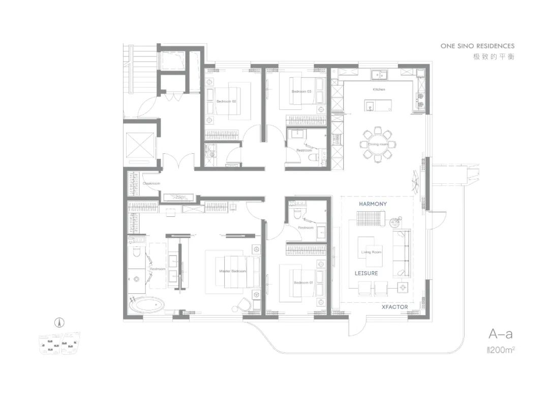
中海甲叁號院200平户型图
园区中央楼王位置,不是概念上的大平层,是真正的大平层,三面采光,奢豪的大,让小编神往。首期开盘,共47套。
9项目总结
中海甲叁號院是近两年人气较高的“地王”项目,位居豪宅扎堆的西三环。中海操刀打造产品特别够硬,再加之前卫的外观设计,会成为京城豪宅的新标杆。项目为公园地产且地铁上盖,成熟的配套和便利的交通加上豪横的产品对购房者而言是“买一套少一套”的概念,如果您对这个项目感兴趣,又想提前感受她的“香”,联系我!
声明:本文由入驻焦点开放平台的作者撰写,除焦点官方账号外,观点仅代表作者本人,不代表焦点立场。







