6·18特价房源,能省一点是一点!
扫描到手机,新闻随时看
扫一扫,用手机看文章
更加方便分享给朋友


最近刷抖音,到处都是618,你们一定被主播安利加满了购物车,血拼哥也帮大家找了一些有优惠的房源,算是从铁公鸡身上薅了点儿毛,很遗憾,优惠力度不太大。
但能省一点儿是一点儿,希望这篇文章可以帮到有需要的朋友!

1.房山 中建京西印玥(6层洋房)
中建京西印玥一直是房山的热销盘,位于京西五环,是房山的核心区,周边的配套也比较成熟。
项目近期推出了5套特价房源。
跟售楼处打听了一下,都还在。

项目基本信息
开发商:北京智地兴辰房地产开发有限公司
户 型:建面73-106㎡二至四居
容积率:约1.6
交房时间:预计2023年精装交付
楼盘地址:北京市房山区房山阳光大街(北方温泉中心东北侧约200米)
周边配套
交通:距离房山线广阳站直线距离约1.7公里,目前房山线北延线已经开通运营,可以直达10号线首经贸站。据项目介绍,将在社区和地铁站之间配备摆渡车。当然,摆渡车是否落地运营,还要以实际为准。
商业:附近商场不少。仅3公里范围内就有绿地缤纷城、龙湖房山天街、华冠购物中心、国泰百货以及华北地区较大的奥特莱斯。
医疗:项目北侧紧邻北亚骨科医院、北京中科西苑医院,5公里范围内还有良乡医院(三甲)和北京中医药大学房山医院。
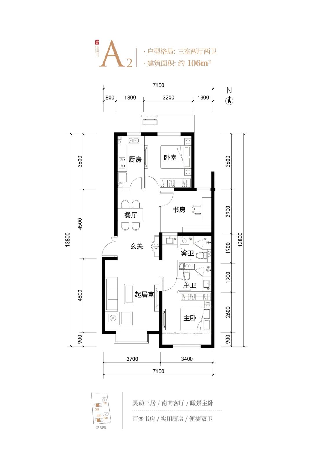
参考户型
73平两居
83平两居
89平三居
106平四居
2.顺义 路劲御和府(主推7-14层纯洋房)
路径御和府最近推出了一小部分优惠房源。
目前从售楼处得到的信息是,44平的一层变异户型,总价在192万左右,仅剩余1套,不过已有客户交了小定,对这套房源感兴趣的朋友可以打电话或者实地看一下,如果客户未补齐首付款,就还有机会。
68平的价格在265万~280万之间,剩余套数较多;83平的三居320万起,89平三居350万起,108平四居460万起,125平四居530万起。具体的信息还是以售楼处为准。
价格还是比较有优势的。

项目基本信息
开发商:北京隽安房地产开发有限公司
户 型:建面68-128㎡二至四居
容积率:约1.6
交房时间:预计2022年12月30日,精装交付
楼盘地址:北京市顺义区仁和镇仁和工业园西南400m
周边配套
交通:附近1公里范围内有临河村南公交站、仁和工业园公交站、啤酒厂加油站公交站,以顺义区间公交为主。离项目最近的地铁站顺义站需要乘坐5站公交,相对而言,通勤没有那么方便。
商业:附近1.5公里范围内有世纪乐林超市、双河购物超市及宝会超市,可以满足基本的生活需求。驱车15分钟可以达到顺义核心商业区,有华联、隆华、国泰等多个大型商场。
医疗:附近6公里范围内有北京中医医院顺义医院(三甲)、北京市顺义医院(二甲)
参考户型
需要提醒大家注意的是,特价房源一般都分布在低楼层,户型也可能会有些缺陷。
大家还是要理性看待,实地看房感受一下,毕竟至少要住十几年,住得舒心最重要。
此外,还有一些房企抓住了“6·18”的尾巴,做了一些优惠活动。
3.房山 水墨林溪(11层洋房)
水墨林溪6.18内部团购活动,推出了特惠房源20套,165万/套起,活动时间即日起至6月16日。

项目基本信息
开发商:北京华峰腾龙房地产开发有限公司
户 型:建筑面积88㎡-116㎡
容积率:1.26
交房时间:预计2023年5月,毛坯交付
楼盘地址:北京市顺义区仁和镇仁和工业园西南400m
周边配套
交通:距离最近的地铁站房山线西延线 星城站直线距离4公里左右;附近有952、934、房28路公交车,在水墨林溪站下车。
商业:附近有华冠超市、点点超市等生活便利超市,基本的日常生活可以满足。
医疗:附近9公里范围内有北京市房山良乡医院(三甲)、北京市房山区排名前列医院
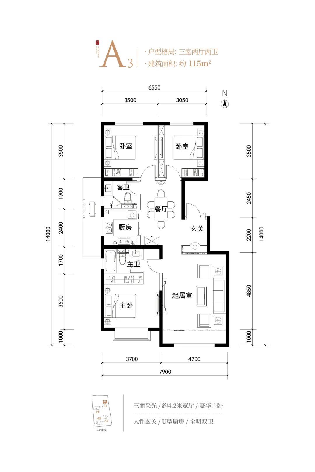
参考户型
建面约116平三居
建面约88平两居
建面约133平两居
建面约140平两居
4.怀柔 北京城建府前龙樾
北京城建府前龙樾现在分地块有不同优惠活动:
一期(3号地块、5号地块):首付80%打99折,全款98折。
二期(2号地块、6号地块5#、6#、7#楼):首付40%打99折,首付80%打98折,全款97折。
优惠截至时间为6月底。
项目基本信息
开发商:北京城建兴盛置业有限公司
户 型:建筑面积106㎡-167㎡三居和四居
容积率:2.1
交房时间:预计2022年4月30日
楼盘地址:北京市怀柔区兴怀大街4号
周边配套
交通:附近暂无地铁,公交的话有916路、936路、866路及H02路。
商业:附近有怀柔青春万达广场、京北大世界、新悦百货、大兴发超市等。
医疗:附近有北京市怀柔医院、北京中医院怀柔医院及北京瑞奥华康儿童医院。
参考户型
5.通州 亦庄橡树湾
亦庄橡树湾也推出了一些优惠活动,618之前成交三居及以上户型,且在630前签约的,首平0元享,较高直减4.2万。活动时间为即日起-6.30前签约。
项目基本信息
开发商:中交地产 华润置地
户 型:建筑面积75㎡-140㎡
交房时间:待定
楼盘地址:北京市通州区亦庄新城
周边配套
交通:距离亦庄线同济南路站直线距离2.6公里,汽车约十几分钟。根据规划,项目西南角出小区就是S6号线马驹桥站。建好后,向西两站可在瀛海南站换乘8号线,向东1站也可在亦庄东换乘17号线。
商业:附近有百尚生活广场、豪润广场、大族广场、BHG华联、山姆会员店、亦庄创意生活广场等,日常生活休闲娱乐都没问题。
医疗:同仁医院(南区)、北京中医药大学东方医院南院区
参考户型
还有一些优惠房源,血拼哥放在下面的表格里了,有需要的朋友们可以自取,关注vx:血拼北京楼市,后台回复【618】即可获取!
声明:本文由入驻焦点开放平台的作者撰写,除焦点官方账号外,观点仅代表作者本人,不代表焦点立场。







