你敢想?首付100万拿下西红门临铁三居!还是满配交付!元启一房一价来了!
扫描到手机,新闻随时看
扫一扫,用手机看文章
更加方便分享给朋友
西红门板块是通达到北京城区最便捷的板块之一,
今年5月御璟星城·元启的《星空》主题生活艺术馆开放无疑让西红门这个本身超高热度的板块又是眼前一亮,7月元启“元创”美学样板间实景呈现,登场即惊艳。今天,元启的预售证已下,大家可以期待一下开盘是否会有更多的惊喜!
【土拍回顾】
售楼处官方电话:4001560036 转 450626
2月22日,大兴区西红门镇DX04-0102-6035地块迎来现场竞价,最终中建壹品以48.76亿元摇中该宗地,成交楼面价4.15万元/㎡,溢价率15%,销售指导价6.6万/㎡定名:壹品兴创·御璟星城·元启。
【规划】
项目位于南四环外的西红门板块,位于整个京开东板块的西南角,
占地约4.7万㎡,地上建筑约11.76万㎡,地下建筑约6.24万㎡
容积率:2.5
楼栋:19栋 / 户数:1052户
产品类型:4—15层洋房、小高层
建面约80-168㎡三-四居
是区域销冠御璟星城的升级的迭代新作
【板块进度】
橡树湾一期和御璟星城一期今年就交房了;玖玥府和橡树湾的二三期还在建设中; 6030地块将在9月19日下午开拍。

【配套】
· 全能配套:家门口名校+6大商业体+三甲医疗+超20座公园
商业:北京荟聚中心、鸿坤广场、万达广场、绿地缤纷城、大悦春风里、元创大都会(建设中)
教育:
·北京市首批示范性普通高中—— 北京四中
·西城区总校直接承办——黄城根小学,建成后可提供960个学位,计划今年9月开学
·集幼/小/初/高为一体的国际化私立学校——北京金融街润泽国际学校
·多所幼儿园——理想城幼儿园/首师大学前教育附属幼儿园/蓝色未来幼儿园等
医疗:
· 三甲医院:北京大学第一医院南院区、中医科学院广安门医院南区、首都医科大学附属天坛医院
其它医院:大兴区人民医院、北京市仁和医院、大兴区妇幼保健院、北京南郊肿瘤医院和西红门镇医院等
环境:
城市公园:西红门生态文化体育休闲公园、南苑森林湿地公园、兴海公园、海子公园、国际露营公园、南苑湿地公园等
特色公园:鸿坤体育公园——昆仑决、美式棒球、冰球等多重体育运动
【户型】
户型面积是80平的东西向、88/99/110平的南北向三居,142/168平的南北四居。

80平三居室,东西偏东南向,共138套房。很刚需,全明格局,主卧入户门放到南侧,保护了隐私。

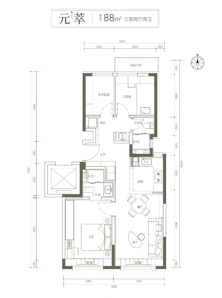
88平南北通透三居,共186套房,在西红门非常稀缺的,一梯两户,尺寸设计合理,得房率高,收纳空间也大,对刚需很友好。

99/102平的三居双卫,三个户型共168套房,这个面积段跟玖玥府类似,因为一梯两户,得房率比两梯两户的玖玥府要高一些。
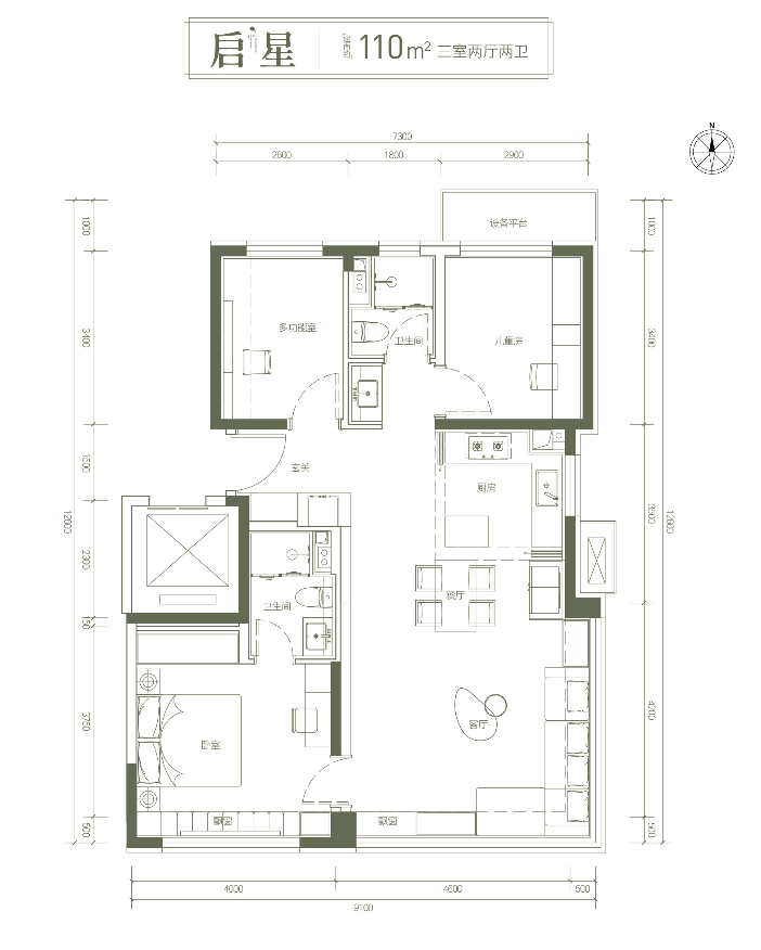
110平三居共195套房,两梯两户,入户独立玄关,南向主卧及独立卫生间,干湿分离,270°转角宽厅,南向面宽9.1米,L型厨房,独立家政间,北向两侧双次卧,中间客卫,三个房间互不干扰,私密性好。

127/142平的四居,分中户和边户,中户小边户大,但都是全明格局,共292套房,经典四叶草设计,改善家庭可选。
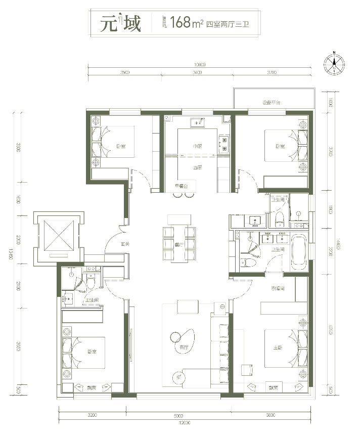
168平分布在小区北侧的2号楼和3号楼,也是洋房产品,只有52套,一梯两户,7-8层,得房率高。

【一房一价】
售楼处官方电话:4001560036 转 450626



















声明:本文由入驻焦点开放平台的作者撰写,除焦点官方账号外,观点仅代表作者本人,不代表焦点立场。







