北京发布今年第三轮拟供商品住宅用地清单,共5宗约30公顷
扫描到手机,新闻随时看
扫一扫,用手机看文章
更加方便分享给朋友
3月31日,北京市规划和自然资源委员会网站发布2025年度第三轮拟供应商品住宅用地清单,共涉及5宗地,土地面积约30公顷,建筑规模约52万平方米,上述用地将于2025年4月底前供应。
本轮推出的地块均位于市场需求突出、基础设施和公共服务配套较完善的区域,其中3宗位于地铁6号线站点周边、1宗位于地铁昌平线站点周边。从区域分布来看,5宗地块分别位于海淀区(2宗)、石景山区(1宗)、昌平区(1宗)、怀柔区(1宗)。

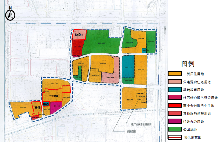
微信公众号“北京规划自然资源”消息显示,海淀区2宗地,为宝山村棚改项目0016地块及0017地块,位于四季青镇西南部,四环至五环之间,临近阜石路及地铁6号线廖公庄站。周边有清华大学玉泉医院、万达广场购物中心等资源,教育、医疗配套较完善。
海淀区宝山村棚改项目0016地块及0017地块2宗地

石景山区西黄村棚改项目1606-640等地块,位于苹果园街道,五环至六环之间,临近地铁6号线杨庄站、西黄村站,距离城市干道西五环、阜石路约1公里。项目紧邻苹果园商圈,周边教育、医疗及商业配套资源较为丰富。
石景山区西黄村棚改项目1606-640等地块

昌平新城东区土地一级开发项目CP00-1101-0026等地块,位于南邵镇,北六环外,临近地铁昌平线北邵洼站,交通便捷。西侧为白浮泉公园,东南侧临近路劲世界广场,南侧临近中关村科技园区昌平园东区,周边生活设施完善、教育配套齐全。
昌平新城东区土地一级开发项目CP00-1101-0026等地块

怀柔区HR00-0103-6012地块,位于怀柔城区,北六环外,距大广高速怀柔收费站入口约5公里。东南侧临近怀柔汽车总站,可直达东直门公交枢纽站。西侧临近怀柔水库,东侧临近怀柔城市森林公园,景色优美,生态宜居。周边有北京中医医院怀柔医院、京北大世界购物中心、青春万达广场等,教育、医疗、生活配套较为完善。
怀柔区HR00-0103-6012地块

来源:澎湃新闻
声明:本文由入驻焦点开放平台的作者撰写,除焦点官方账号外,观点仅代表作者本人,不代表焦点立场。







