京北新晋“卷王”,据说得房率在100%以上...
扫描到手机,新闻随时看
扫一扫,用手机看文章
更加方便分享给朋友
往年的小阳春,成交量上来,价格会跟着向上拱一拱。
今年,根据中指研究院数据,3月北京二手住宅价格环比下跌0.76%,跌幅较2月再扩大0.27个百分点。
二手房价格稳不住,新房也难立。
今年三四月份开盘的项目,不管是当红板块还是郊区,开盘基本都要拿出诚意。
比如,今天要说的这个项目指导价4.3万/平米,开盘价约在3.8万/平左右;并且听说得房率干到了100%以上...
它就是,保利·颐璟和煦。
NO.1
去年12月28号,保利以 19.9亿元拿下顺义新城0601、0603等地块,住宅楼面价1.93万/㎡。
项目位置在 顺义区双丰街区道,顺兴街和仁安路交叉口;属于潮白墅区 , 顺义新城中央公园组团。
顺义新城中央公园组团算是顺义的金融中心,一批国央企银行总部数据研发中心在板块内。
比如项目南侧有民生银行总部基地、中信银行数据中心、北京银行科技研发中心,还有金蝶软件园。
板块有一定的产业支撑,同时也是老牌别墅区。
作为传统墅区,项目周边生态环境非常不错。
在颐璟和煦西侧是马坡新城城市森林公园,东侧紧邻潮白河,再往东是顺义奥林匹克水上公园,南侧有北京乡村高尔夫球俱乐部。
现有的生活配套方面,项目直线约1公里左右有金宝park天阶,2公里左右鲁能美丽汇,3公里内有鲲熙汇LOMO可满足日常娱乐购物所需;
医疗上,2公里左右有三甲北京中医院顺义医院;教育上,1公里内有首都师范大学顺义实验小学向阳分校,2公里内马坡小学。
生活配套还算完善,不过,项目附近没有地铁。
最近的15号线俸伯站也在5公里以外了,日常出行主要依靠自驾。
所以比较适合本地工作或是养老选择。
NO.2
颐璟和煦项目分为南北两个地块,共15栋住宅,低密洋房社区。
北侧较大的0601地块规划11栋住宅楼,9-11层,容积率1.7,共650户左右。
南侧较小的0603地块共规划4栋住宅楼,均为6层洋房,容积率仅1.2,共108户。
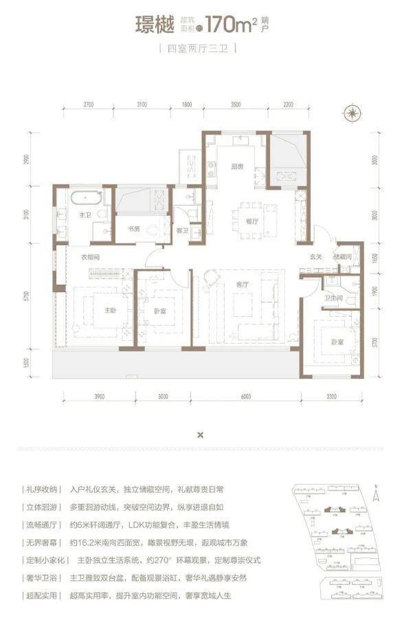
产品方面,主打户型建面约为120-170㎡的三至四居,包括120㎡的三居以及143㎡、150㎡和170㎡的四居。
建面约120㎡三居两卫,南向三面宽,方正通透,客厅面宽约4.4米,LDK一体化设计;主卧套房奢侈双台盆,改善氛围拉满。
另外,可以看到图中灰色区域的黑科技,据说户型得房率已经超过了100%...要说敢干还得是顺义!
建面约143㎡四居三卫,入户玄关+独立衣帽间,出行起居更加便捷;超大客厅面宽约5.8米,轻松实现在家开party;南向双套房,北向书房+多功能厅,以及抢眼的黑科技,多口之家首选。
建面约150㎡四居三卫,约15.1米南向四面宽设计+5.5米宽厅+LDK等宽+三卧朝南+双套房+270度观景星级主卧...这个户型属于buff叠满,采光更优秀,空间布局更加出众!
建面约170㎡四居三卫,喜欢大尺度并且想要一步到位的家庭看这里;私密入户玄关+储物间、6米宽超大客厅+餐厨空间、星级主卧配备浴缸...这个户型相当于150平的升级版。
总体来看,颐璟和煦的户型设计确实nice,并且据说项目配置豪华精装!
在格局打造以及黑科技赠送上,顺义一直是走在前沿,看重居住品质的同学建议可以往这边看看!
No.3
项目指导价4.3万/平米,据说开盘均价在3.8万/平,算下来总价约在450-650万之间。
目前项目附近的二手别墅,均价在3.5万/平米左右。
颐璟和煦,更优秀的居住品质+更出色的得房率+合适的价格,本地工作or养老的同学,还是可以考虑的。
大家觉得这个项目如何?
声明:本文由入驻焦点开放平台的作者撰写,除焦点官方账号外,观点仅代表作者本人,不代表焦点立场。







