北京认房不认贷落地,这3个项目可考虑!
扫描到手机,新闻随时看
扫一扫,用手机看文章
更加方便分享给朋友
上周五,认房不认贷放开后,市场瞬间沸腾。
近三天,很多售楼处24小时营业不打烊;周末的到访情况也确实多了起来。
就师妹周六出去带看房团的同事反馈,东边某两个刚开不久的新盘,现场客户多到销售有点顾不过来...
据中原地产数据,9月2日北京二手房实时成交约1200套,环比上个周六上涨超过100%;
当日新房成交超1800套,新政后一天的成交已近8月网签量的一半。
靴子落地,加快了一些本有就意愿的购房人决策速度。
同时,一些想要置换的群体也开始挂出自己的房源,我们看到二手房挂牌量也瞬间升了上去。
这种时刻要不要出手,按需出发,永远不会错。
如果是刚需的同学,近期下场寻找笋盘机会,会有一些置换人群想要快速卖出;
如果改善,一定要向优质地段,优质房源靠拢,未来市场分化会越来越严重。
咱们群内有不少小伙伴在咨询新盘情况,今天正好给大家说说,近期入市的三个项目。
NO.01
大热的朱辛庄:大华启宸府
今年昌平各新房板块中,朱辛庄可以说是头牌。
京北的购房人为什么要选这里,再给大家捋捋。
一是近地铁;
昌平新盘最重要的通勤优势,朱辛庄板块完美匹配。
在距大华启宸府500米左右,是地铁8号线与昌平线双轨交汇的朱辛庄站;
到西二旗仅两站地,上地四站地,去往海淀或中心城区通勤非常方便。

二是朱辛庄自身有产业;
除了抱上海淀大腿,在板块内有小米产业园、好未来、慧聪、紫光数字经济等产业园。
看下图,位置都离大华启宸府不远。

两个北京买房比较重要的点,产业+地铁,朱辛庄板块项目可以满足。
并且,在京北满足这样条件的项目,并不是批量生产,可选项不多。
9月底即将开盘的项目,大华启宸府,是今年朱辛庄板块内唯二新盘,另一个越秀星樾,4月份开盘已经卖的差不多了。
所以建议大家可以拼一拼手气,主要冲小户型,80平两居、90平三居。
整个项目房源一共338套,80平两居(66套)+90平三居(22套)一共88套。
狼多肉少,拼人品的时候到了。
NO.02
西红门:橡树湾三期
橡树湾的名号,在北京应该算是打响了。一南一北,去化情况都不错。
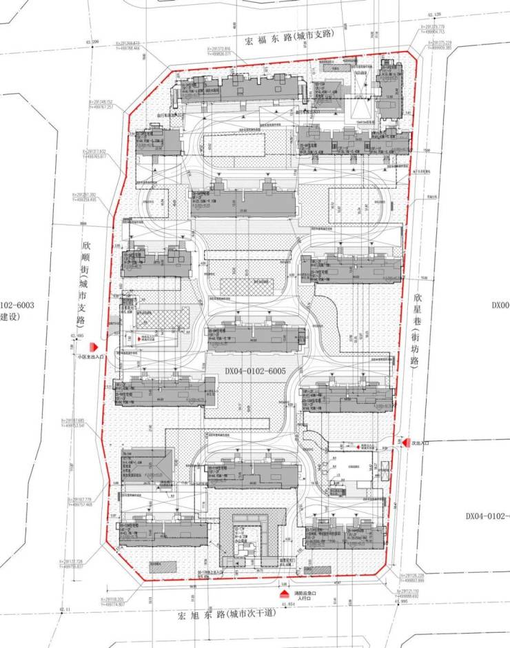
最近华润+中铁拿下的西红门6005地块,产品信息出街了,这块地将做橡树湾三期。
前几天项目官宣案名为橡树湾文园。
树湾产品定位,也从前期的刚需向改善偏移。
网传这次的户型面积段约为77㎡(仅30套)、107㎡三居、128㎡四居、148㎡四居、168㎡四居。
百平以上户型居多。
公示信息显示,该项目共规划14栋住宅楼,8-15层,容积率2.5,总户数为739户,车位配比为1:1.2。

对于西红门之前有专门分析过,整个板块是典型的先规划后建设。
随着地铁19号线南延站点的逐渐清晰,加北京四中及皇城根小学的落地;
这两项配套利好让西红门板块翻了身,成功跻身大兴前排梯队。
目测随着东区成片住宅的开发建设,及西区荟聚宜家等大型商业的加持,未来会成为比较宜居的区域。
同样,没抢到前两期小户型的,大家可以拼一拼手气。
目前准确的户型图还没释放,后期会第一时间给大家同步。
NO.03
朝阳豪宅“平替”:中建璞园
中建璞园这个项目,在北京认房不认贷政策落地第二天开盘。
项目海报官宣,开盘当天卖出218套,合计21.8亿。
市场对这个项目的评价处于两极分化状态,爱的非常爱,要么喷的很厉害。
主要的纠结点在于区位上。
下图可以看到在项目对面即是九章别墅,北侧有远洋LAVIE和财富公馆;南侧不远处即是朝阳一墅和青云上府。

这个位置属于金盏和孙河交界处。
在孙河墅区边,地块是容积率1.5的低密条件,怎么看都是做改善的地。
不过今年朝阳楼市的现状咱也都知道,多家改善去化速度都很慢。
所以中建璞园,选择做了刚需户型,主打500多万即可上车“朝阳墅区”。
但就配套来讲,刚需最需要的地铁方面就没啥优势了,这也是很多人不看好它的主要原因。
很拼的是,项目为了拉升自己的竞争力,户型做的很卖力。
不管大小,全部配备落地窗,装标给的也不低,实地去看产品还是很给力的。
所以,这个项目,我的建议是如果你依赖地铁通勤,别买;如果有车自驾,可以实地考察看看。
朝阳上车800万+是常态,500万+上车的机会,多少要考虑一下的。
声明:本文由入驻焦点开放平台的作者撰写,除焦点官方账号外,观点仅代表作者本人,不代表焦点立场。







