新年收纳怎么做?房型太奇葩怎么破?统统看这里!
扫描到手机,新闻随时看
扫一扫,用手机看文章
更加方便分享给朋友
新的一年,总是让人充满希望和想象。2018年的“新年Flag”你立了嘛?
不想再忍受家里物件乱成堆?抑或是想在新年里给家中奇葩户型一次重生、点亮的机会?还是想要走家居北欧风,却被醒目的红色地板绊住了脚步?又或者只是简简单单就想让家看上去更明亮温暖?
这一期,尖叫智囊团统统给你解决方案。2018年,答应尖叫君,不要再凑合住了!人生苦短,家这个港湾,必须温暖。

我们一家3口,现租住在一个50多平米的一室户里;因为是租的房子,所以不能大面积改造。家里宝宝今年3岁,他的东西就很多,还有很多我们的衣服和舍不得扔掉的物品。希望尖叫智囊团的设计师可以不可以给一些收纳布局的建议。

尖叫智囊团

格蕾丝 职业收纳师
首先我们还是要先系统检视家中的空间布局和真正需要收纳的物品量。把所有物品按照衣物/书籍/文件/小物/纪念品几大类,从原有的存储空间里拿出来,然后按照“留下的/不要的/待定”三大原则进行分类处理。这样一次性的整理,至少可以帮你节省1/3的空间。

TIP 1 请记住,一定要先从过季不穿的衣物开始整理,一次只整理一类,这样会简单很多。
另外,许多出租房由于空间布局不合理及家具不足,可能会导致使用功能和物品存储上的不便,这时候较需要做的就是变更布局,增加储物空间。

如果你的房间只有简易的单门衣柜,建议你去宜家购置一个的双门甚至四门衣柜,或者尽量把橱加高来扩大储衣空间;如果你觉得封闭式橱柜太过拥挤,可以试试开放型的衣架,或者干脆利用墙面和挂钩把衣物收纳起来。

请记住,一定要根据自己实际的存储需求来追加收纳用家具,否则大件家具只会吞簇你本来就局促的生活空间。

TIP 2 带有转角功能的三脚置物架和转角书桌+书柜的组合,也是很不错的选择。
总之,小户型的收纳需要注意的是尽可能地减少不必要的物品囤积及家具,利用合理的空间分层,(向上走/向下走/合理利用少有墙面)把寸土寸金的面积尽可能地利用来储物。

此外,由于孩子生长发育特别快,小时候已经用不到的衣物、玩具和物品需要尽快处理,更新周期较好在3-6个月一次,这样可以避免物品囤积。

3岁应该是孩子对自主性和物权较敏感的时期,可以在整理过程中培养孩子选择自己物品的能力和爱物惜物的意识,让孩子自己选择想要保存和舍弃的物品,这样也会让整理工作顺利很多。

我们家90平米,两室两厅一厨一卫,但是户型不太好,扁担造型的房子,两头卧室中间客厅。作为楼层的中间户,客厅没有阳光,尖叫专家团的设计师们,有没有什么的建议,可以改善我们家客厅采光的不足的问题呢?

尖叫智囊团

盛彦明 照明设计师
光说故事(北京)新媒体科技有限公司
设计总监
遇到没有窗户的客厅,的确让人烦恼,作为照明设计师,我觉得可以通过“引光”“造光”等方式来间接照明,创造或模仿出自然光源透入到室内的效果,在室内空间上通过视觉感官的改变,来产生与户外联通的心理影响,弱化全暗的空间。
#方法一#将客厅与房间之间的隔断进行改造,使用玻璃隔断,让光成为房间与房间之间的联通桥梁。无论是从外面窗户照射进来的自然光,或卧室里的灯光,透过玻璃隔断都能给黑暗的客厅带入光感,同时亦营造了空间上的通透感。



#方法二#面对这样的采光条件,在客厅天花安装灯池也是常见的解决方案之一。灯光照射在天花上,经过漫反射投亮整个空间,给整个空间营造出自然光照射的感觉,同时也增加整个空间层次,为客厅增加设计感。


#方法三#客厅墙身上也可以增加光源,以此来改造光环境。如在侧墙的上方安装灯具将墙面打亮,让光好似从屋顶天花上倾泻下来一般,既有意境,又可以柔和地照亮客厅。

#方法四#在墙壁上安装背投灯具,或使用落地灯在较暗的区域,也可营造出自然光源的效果。一盏充满设计感的落地灯,更可以成为重要的氛围灯,营造出温馨的家居感受。


#方法五#如果不喜欢在墙面或天花做文章,在装饰柜、书柜或壁柜的上下安装灯带也是不错的。灯带会将光投向天花和地面,既解决了客厅的采光问题,又将局部其作为空间重点突出,成为视觉焦点,弱化采光不足带来的不适感。


设计师,你好!我们家客厅与餐厅相连,区域还是蛮大的,也相对独立,较近我想把客厅做成可变式客房(即有朋友来时,这里是个临时客房,平时又是一家人的活动区),中间用什么隔断好呢?临时床这个又要怎么安置比较合理呢?

尖叫智囊团

李诚默 设计师
上海悠玓建筑设计咨询有限公司(UD studio)
创始人&设计总监
你好,不管是家庭空间,还是公共空间,我们都会强调一个“灵活空间,模糊边界”的概念。“灵活空间”顾名思义,就是在已有空间内,将各种功能灵活转换。以我们之前设计的2个户型案例为列,与你分享,希望可以给你一些启发。
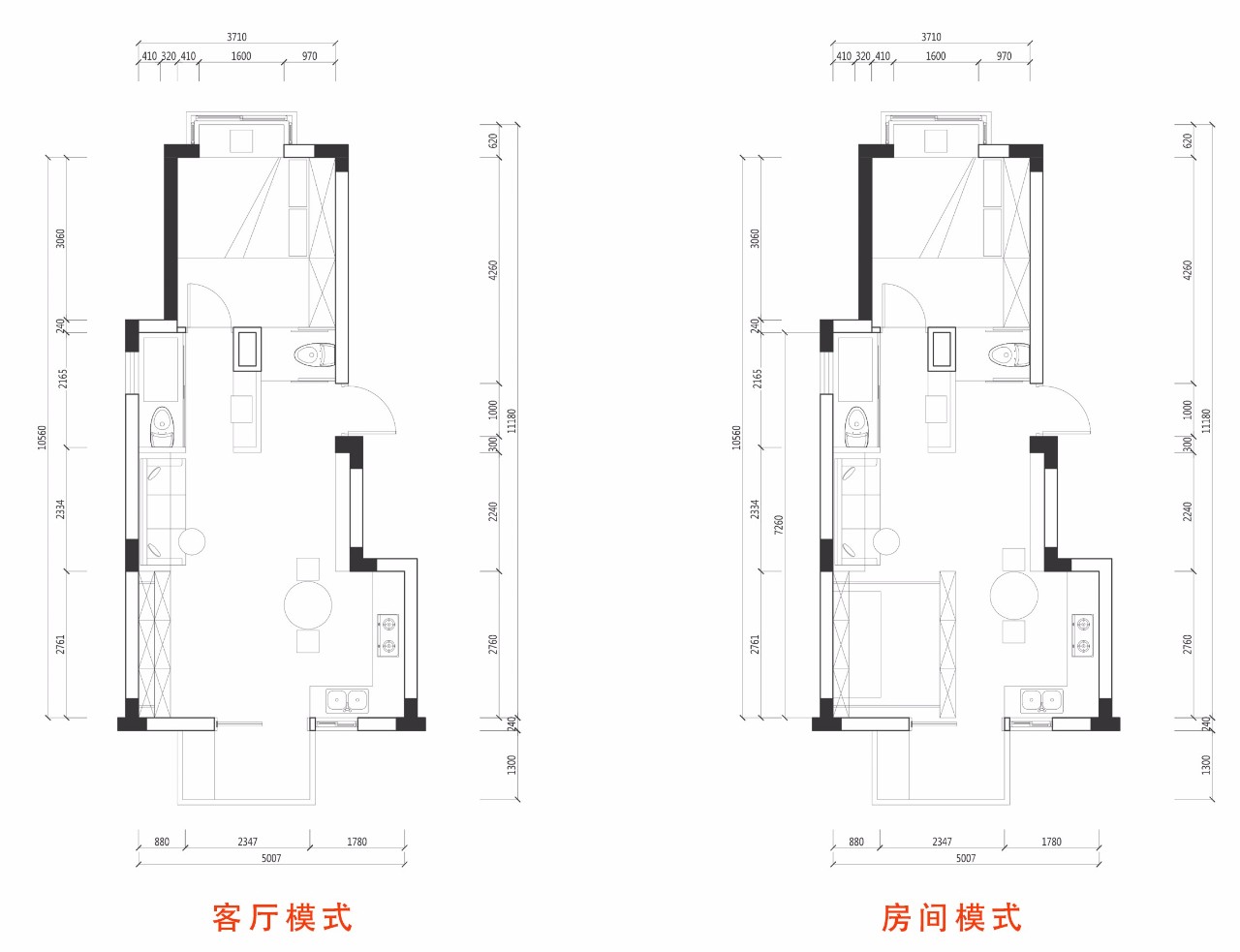
排名前列个房型的特点是房间在两边,中间连着厨房和卫生间,本来就不大的面积被过道占据了1/3。我们较终将卫生间以及厨房区域和过道空间做结合,将功能灵活化,从而达到空间的合理运用。

原平面
考虑到家人原来常常在厨房区域聊天休憩,所以我们将这里作为基点,发展出全新的家庭核心区域。模糊边界也是这个意思,不去固化功能空间。改造后的核心区域,既是做饭的“厨房”,也是社交的“客厅”,也是学习工作的“书房”。

改造后平面
你想将客厅变成临时客房的需求,正好我们较近有个案例接触到。
家中现阶段的客厅区域,两年后可能要成为孩子的房间,于是我们就设计了一个“未来”的房间。用柜子形成墙体隔断,将床和书桌隐藏在柜子里面,用的时候将柜子拉开,不用的时候推进去就是完整的客厅空间。

但要注意轨道和五金件的选择,还有柜子的加工细节,五金件和衣柜的板材都要选择好的品质,以保证使用的方便、舒适性和持久性。

全能的设计师,我较近疯狂地迷恋上了北欧风,想让家里将“北欧风”进行到底,但是有个问题,家里的地板是深红色,请问我还能通过其他软装手段来营造“北欧风”嘛?总觉得深红色地板有点扎眼…

尖叫智囊团

滕淼 旅挪建筑师
挪威Rambøll集团公司卑尔根建筑设计部
想要将北欧风进行到底,首先就要说说北欧风的内核。和现代主义运动一脉相承的北欧设计,在功能主义的基础上既摈弃了多余的装饰,又不走向极简主义的极端,营造一种刚刚好的舒适氛围,追求有趣和明快的格调,就是北欧家居设计的主流。
所以呢,看似难以处理的深红色地板并不是太大的障碍。
#与“狼”共舞#
深红色的地面容易让整个氛围变得沉郁,选择家具和配饰的色彩和材质要和深红色地板平衡,做到与“狼”共舞。
浓烈的深红色可以搭配饱和度较低,明度较高,清醒明快的色系。如纯粹的白色,带有色彩倾向的高级灰,以及黄绿色系或粉色,都是很好的选择。

木材家具和配饰宜选择白橡木一类的明快木材。但在北欧风室内常见的点金之笔柚木中古家具,因为颜色太深就不合适了。
#以柔克刚#
在餐桌和沙发的位置搭配地毯,一直是北欧家居常见的做法。地毯不仅仅能削弱大面积的浓烈深红色块的体积感,更能在浅色家具与深色地面之间形成缓冲。地毯柔软的质地和光面硬质的木地板形成很好的对比。


不同形状的地毯选择也能削弱深红色地板带来的刻板印象。同时,在夜间,配置一些柔和的落地光源,也能很好的柔化和亮化深色的地面。
#斗转星移#
室内空间的塑造,在水平上分成三个层面,天花、墙面、地面。深红色的地面存在感过强,太过抢眼,适度的将注意力引导向墙面,也是一种可行的策略。装饰性强,配色明快的挂画或者壁挂的雕塑等艺术装饰是很好的选择。



我家装修以原木为主,但是家里采光不是很不好,请教设计师怎么能够通过软装搭配营造出明亮温暖的感觉?

尖叫智囊团

方日新 室内设计师
山水空间装饰 首席设计师
想要通过软装为家营造明亮温暖的感觉,其实一般来说把握住“色彩”“材质”以及“灯光”这三大基本面,再考虑家中原木色系的装饰风格如何平衡,以及采光较弱的空间短板如何改善。

#色彩#墙面建议采用简单的白色即可,以白色做为整个空间的主基调,来搭配原木色系,呈现出让人觉得温暖的色彩性格。同时,白色墙面,相较于墙纸等,更可以提亮整个空间的明暗度。

将白色和原木色作为主基调,在家具布艺等软装元素方面,建议用一些饱和度低,明度高的中性色,调来作为中间色调过度。较后,在抱枕、饰品、装饰的选择上,需统一一个母色系,挑选纯度较高的色彩作为点点缀,墨绿色、橙色都是不错的选择,可以让整个空间活跃起来!

#材质#在硬装材质的选择上,局部可以加一些镜面和玻璃,让采光效果更加明显,亦提高空间的通透性!软装材质,如窗帘布艺的选择,则建议亚麻材质为主,提亮整个空间的同时,也可以整个家庭温暖的氛围。



#灯光#当色彩和材质都平衡得当后,可以在灯光设计上,可以采用一些间接辅助光的处理,如灯带,氛围灯等,达到平衡明暗过于跳跃的空间氛围,起到柔和过度、营造氛围的效果。


设计师们和尖叫君只能帮你到这里了,
欢迎大家继续提各种家装问题,
来挑战尖叫智囊团队权威~
声明:本文由入驻焦点开放平台的作者撰写,除焦点官方账号外,观点仅代表作者本人,不代表焦点立场。
