超硬核—户均空间使用率超100% 顺义再上刚需好盘,一房一价速观
扫描到手机,新闻随时看
扫一扫,用手机看文章
更加方便分享给朋友
9月21日,据“星悦时光AURORA”视频号,其发布了北京城建+深圳南山在顺义仁和的新项目案名及部分信息:星悦时光,户型面积段为77-107㎡,精妆纯洋房。
9月30日住建委就公示了他的预售信息!惊我呆!这速度真是前所未有堪比火箭,甚至他的售楼处都还没来的及开放!

【土拍回顾】
今年6月末,北京城建与南山地产联合以11.9亿元底价,拿下顺义区仁和镇临河村棚改项目SY00-0702-15、26地块R2二类居住用地、SY00-0702-16地块A334托幼用地,住宅销售指导价为44000元/平方米。
【规划】
2个居住地块共规划23栋住宅楼(其中北地块11栋住宅楼,南地块12栋),7-11层,户型面积段为77-107㎡,容积率仅1.6。项目本身将配建一个幼儿园。
【交通】
项目位于顺义仁和镇,临近东六环路和通顺路,未来西侧有R4线临河站,约2.6公里。南侧为仁和三兄弟:路劲御和府、公园都会、龙湖云河砚。
【配套】
商业:拢聚祥云、山姆、日上、上品、奥莱、华联等
医疗:北京友谊医院顺义院区及顺义区医院、顺义中医院、顺义妇幼等
教育:府学胡同小学、顺义一中,规划社区幼儿园、九年一贯制学校等
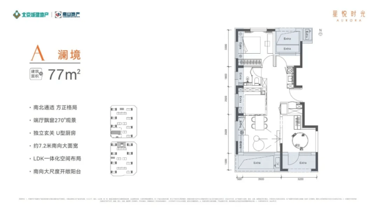
【户型】
77㎡户型,小户型也做到南北通透,约270度的观景。

87㎡的有中户和边户两种户型,南向三面宽+开敞阳台的格局,南北通透。

107㎡的四居户型,使用面积约135平方米,也是南北通透,拥有侧边四联飘窗实现270°观景视角、独立玄关与家政间设计等。

【一房一价】





















声明:本文由入驻焦点开放平台的作者撰写,除焦点官方账号外,观点仅代表作者本人,不代表焦点立场。







