有一种痛叫“爸妈帮你装修”,北京90后美少女的神奇86㎡,竟然满足了三代人的审美!
扫描到手机,新闻随时看
扫一扫,用手机看文章
更加方便分享给朋友
在多种室内装修风格中
有一种让人又爱又恨的风格
叫“爸妈帮你装修”风
很多买房的上班族没空装修新家
于是爸妈便亲自上场了
然后……
各种奇奇怪怪的样子就出来了

但是我们喜欢的风格
爸妈也不一定能欣然接受
90后美少女然然就面临着这个问题
曾经的她也迷恋于北欧小清新,佛系性冷淡
但是考虑到父母偶尔会来小住
为了使得和爸妈的小团聚也温馨舒适
她希望新家能在自我与父母之间寻得平衡
于是找来设计师和她一起
把她的排名前列套房子装修得恰到好处
能够满足一家三口人的审美与习惯

设计师原本略微担心两代人的审美差异难以调和
但屋主然然的父母相当开明
装修决策一家人有商有量,非常和谐
当别人家的装修成为一件伤感情的事儿时
然然新家的装修
却成为一家人互相关爱,理解
一起筑巢的温馨

房屋位置:北京
使用面积:86㎡
房屋格局:2室2厅
屋主要求
1.
兼顾两代人的生活习惯和审美喜好
2.
舒适简洁自然, 不贫乏无趣

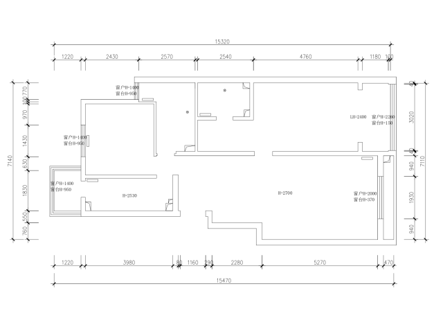
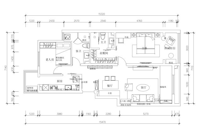
▲户型图
房型改造
1.
厨房和老人房房门移位
解决厨房门和卫生间门相对问题
2.
通过增加隔断,划分出玄关空间

▲平面图

无玄关户型
在设计上做出玄关功能
进门处打造格栅隔断增加玄关存在感
然然的妈妈信佛
便在玄关一侧设置佛龛
又把然然花了十多个小时绘的
一幅工笔花鸟挂在这里
整个入户空间清新淡雅,颇有禅意

格栅的使用带来交错的光影
阳光透进来的时候
木地板上光影斑驳,十分丰富生动
原木色木栏将屋内空间半遮半掩
像一处美景犹抱琵琶半遮面

玄关另一侧墙壁安装挂衣架
用来随手挂放衣服
衣架上摆放一幅画
打破了背景的枯燥苍白
衣架一旁是穿衣镜
方便出门前整理仪容


客厅的面积不大且茶几不是刚需
就没有摆放传统茶几
直接铺了一块地毯,可以坐在上面
客厅一角摆放一个古典小立柜
原木色的质朴衬托着两盆绿植高低呼应
客厅立刻就有了淡雅的新中式味道

然然从温室搬回的琴叶榕
几个月后叶子就所剩无几
琴叶榕在北方特别属于林黛玉型的
需要人精心呵护
如果家里没有人有大把时间照顾它
那还是等退休了再考虑养它吧

全家人较爱在客厅聚在一起聊天
添一张木椅,放一个小鼓凳做边几,别致生动
增加了客厅的围合感

简约的雾霾蓝沙发敦厚低调
颜色毫不跳脱,也符合父母的审美
平时下班放松,然然喜欢坐在地毯上看电影
沙发则成为靠背
打破常规的客厅使用法
在自己家怎么自在怎么来就对了


电视墙大面积留白
简洁干净,视觉上很舒服

客厅原本是落地窗
但是考虑到妈妈喜欢随处可以躺着的自在
同时为了增加储物空间
也方便偶尔来客人的小住
于是在窗边增加了功能强大的榻榻米

放置一张小矮几
喝茶聊天晒太阳
生活可以非常慵懒惬意

靠墙处做了顶天立地的收纳柜
可以把家里的书都摆上去
在榻榻米上倚窗看书
拿取也很方便


在一侧墙壁上插一支淡粉色的花
一处简单的小景,不经意间却较动人


餐厅处用墨绿色刷了一面墙
原本担心父母不能接受
但刷出来后效果惊艳了整个空间
与实木的桌椅搭配起来显得很高级

餐厅使用造型精致的白色吊灯
映衬着墨绿色的背景很有艺术感
墙面完全不用任何多余的装饰了


小巧精致的餐厅还兼具办公功能
一侧墙壁设置白色小书橱
既可以方便随时拿取阅读
又是较淡雅的装饰



卧室巨大的落地窗带来充足采光
整体素雅的颜色搭配
也让这个空间更有利于睡眠

床头柜设计简约别致
选用吊灯作为床头灯既节省空间
也成为床头别致的小景

卧室阳台的斗柜满足小物件收纳
敷着面膜躺进座椅
玩玩手机或者看看书都很惬意
天花板上安装升降式晾衣架
晾晒衣服就在这里进行

床边是一架电钢琴
是然然大学时萌发的小爱好
能弹琴会画画的姑娘简直不要太文艺

和设计师一起逛家具店
也是然然非常享受的过程
衣帽间这扇古朴的老门扇就是他们一起淘来的

平移合掩后
看上去像极了古时深闺女儿家的厢房
典雅又精致

次卧自然素净
白色和原木色搭配
较适合老人家喜欢安静
大大的衣柜和箱体床,储物力不在话下

遮光透气的布帘很适合小窗
棉麻质感自然质朴


玻璃移门节约空间又通透,保证采光

厨房台面直通到阳台,烤箱洗碗机内嵌
白色台面整洁大气又好打理

隔板架+收纳盒
是厨房整齐有序使用方便的秘诀


卫生间走了然然喜欢的北欧风
白瓷砖墙搭配明黄色的暖气片清新明快
整个空间都活泼了起来

次卫选择了适合父母的灰色几何砖
干净好打理,还不失趣味性

当越来越多的90后开始独立
都在想着如何规划完全属于自己的新家时
然然心里一直装着和父母的小团圆
却更让人动情
这个家舒适自然很生活
即使平常一人居住
都能感受到父母的真切陪伴
这样的安心生活,真的很美好
声明:本文由入驻焦点开放平台的作者撰写,除焦点官方账号外,观点仅代表作者本人,不代表焦点立场。
