昌平朱辛庄又上新了!多个新房扎堆 到底应该如何选?
扫描到手机,新闻随时看
扫一扫,用手机看文章
更加方便分享给朋友
昌平朱辛庄一直以来都是北部购房者非常看重的一个板块,集地铁、商业、产业与一体,目前板块内新房价格已在6万+。最近又有新盘亮相和土拍新地块加入,所以今天给大家简单梳理一下。
之前卖的都还不错,这个月又有新动静,预计本月月底加推234套房源,以中小户型为主,包括60平一居17套,79平两居89套,101平三居106套,127平四居22套,小户型单价耀高一点,预计均价6.5万/平。
相比竞品,优势是准现房,可以去小区实地看实景,样板间也在实体楼,所见即所得,适合着急入住的家庭。

2024年10月22日,越秀+未来科学城联合体以25.33亿元的底价拿下昌平区小沙河村及周边地块棚户区改造和环境整治项目CP00-1802-0005、0007等地块,指导价6.6万/㎡,后来定名:星耀未来。
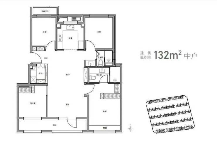
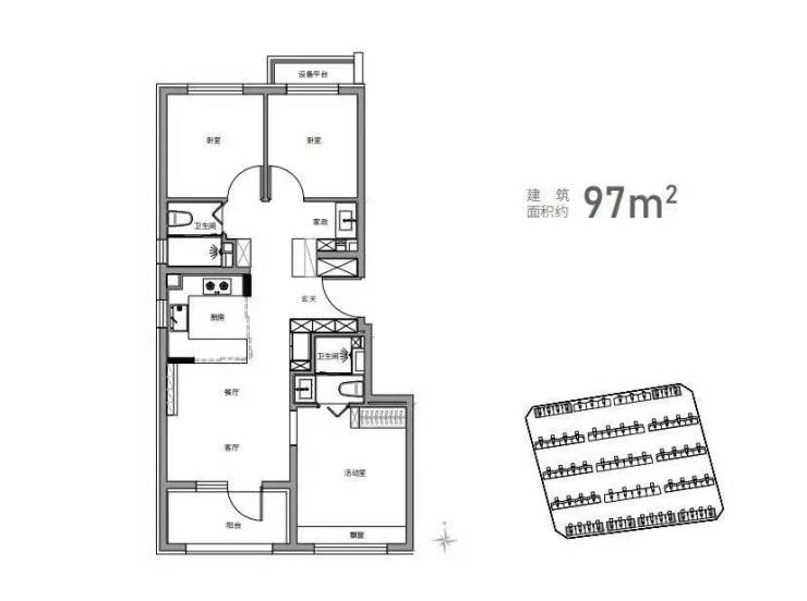
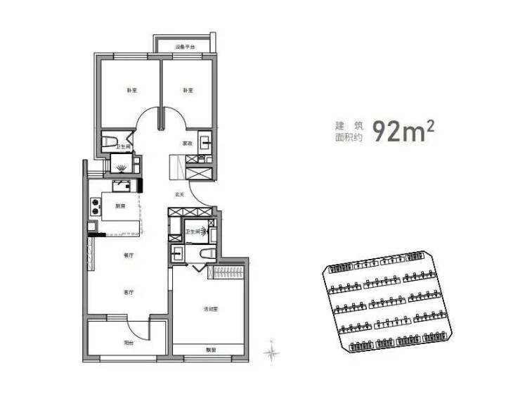
从位置上看,项目直线距离朱辛庄地铁站约1.8公里,骑个自行车过去问题也不大。周边的商业、交通和产业资源基本可以共享。项目规划6-8层洋房,容积率只有1.8,总计978套房源,小区体量适中,未来居住舒适度很高。主力产品92-97-107平三居和132平四居,低密洋房,适合想在朱辛庄附近上车但预算有限的家庭。
户型展示:
解析:两面宽三居,中间户92平,边户97平,南侧客厅带阳台,主卧套房设计
107平南北通透三居,三面宽朝南,客厅带阳台,南向两个卧室带飘窗,厨房、餐厅、客厅一体化,通透性好,主卧套房设计。整个户型比较方正,全明设计
朱辛庄新区(二期)土地一级开发项目CP01-0801-0029地块
2月18日,中海+未来科学城联合体以12.8亿元竞得昌平朱辛庄0029地块、回龙观国际信息产业基地二期(二)地块CP01-0801-0041地块,住宅地块楼面价约3.06万元/㎡。地块位置十分不错,在大华·启宸府的东侧,紧邻朱辛庄地铁站,旁边就是TBD住总万科天地、万达等商业,还有产业集群,没有设置销售指导价,但是社区体量比较小,期待产品会有惊喜。
总结
如果想买现房的家庭,不用犹豫,直接看越秀星樾吧,现房实景来的更真实一些;如果是预算有限但是也想在朱辛庄买房的朋友,可以重点关注一下 星耀未来,如果不着急的话那就等等0029地块吧。
声明:本文由入驻焦点开放平台的作者撰写,除焦点官方账号外,观点仅代表作者本人,不代表焦点立场。







