大兴瀛海均价2.9万/平共产房星光里全装修设计方案专家评审意见回复
扫描到手机,新闻随时看
扫一扫,用手机看文章
更加方便分享给朋友

2022年1月24日,市住房城乡建设委会同市规划自然资源委组织召开了“集体建设用地区级统筹大兴区瀛海镇YZ00-0803-2009、2012A、2012B、2015地块”项目共有产权住房全装修设计方案专家评审会,专家组及相关部门实地查看了A-75、B1-90、B2-90、B3-90、C-110、D-120户型六套装修样板间,听取了建设单位北京兴瀛置业有限公司的汇报,并就有关问题进行了质询。经讨论形成如下评审意见:
1.原则通过全装修试错样板间评审。
2.应确保施工图、样板间与最终交付产品保持一致,并满足共有产权住房导则要求。
回复:经复核样板间与施工图实际尺寸一致,保证样板间与最终交付产品保持一致,并满足共有产权住房导则要求。
(1)B1-89、D-119户型共计2处卫生间洗衣机龙头高度原为1000mm,现统一调整为1200mm,与施工图纸保持一致;
(2)样板房概算书中“智能马桶”一项,与实际样板间马桶不一致,对概算书中该项进行调整,保证后期交付与样板间一致。

3.应按设计图纸结合外窗选型安装防护栏杆;优化厨卫空间吊顶与管线综合;所有部品应按照实际交付标准全部安装到位。
回复:1、A-78、B1-89、B2-89、B3-89、C-113、D-119户型共计6种户型南向阳台及飘窗增加护窗栏杆,飘窗外窗防护栏杆高度距可踏面高度0.90m,阳台外窗防护栏杆高度距可踏面高度1.10m
2、已对厨房集成吊顶进行优化,重新排布烟道上方吊顶龙骨布局,确保排烟管道安装至吊顶内;3、A-78、B1-89、B2-89、B3-89、C-113、D-119户型共计6户厨房下水安装到位,A-78、B1-89、B2-89、B3-89、C-113、D-119户型共计6户增加阳台晾衣杆、卫生间置物架、窗帘盒滑杆。



4.应补充公共区域装修、完善部品及工艺工法展示。
回复:公共区域增加电梯及门套做法;工艺工法在后期实体楼栋内展示,预计展示时间2022年12月份。

5.其他意见和建议详见《专家评审意见表》。
回复:详见《专家评审意见表》回复意见。

一、专家意见一
(一)应表达电梯、工法,指示牌应无误(户型平面示意位置)。
回复:1、公区墙面增加电梯门及门套;
2、工艺工法在后期实体楼栋内展示,预计展示时间2022年12月份;
3、B3-89户型平面图原在工具间旁,为明确指示相应户型样板间,现由工具间位置调整至B3户型样板间入户门旁。

(二)户门过门条高度应适当降低以符合规定。
回复:本项目入户门开启方式有内开及外开两种开启形式,且均采用下图门槛节点做法。其中外开及内开入户门门槛顶部至地砖装饰面垂直高度原设计较大值为50mm,最小值为35mm;现将样板间(A-78户型、B1-89户型、B2-89户型、B3-89、C-113户型、D-119户型)共计6种户型入户门进行优化,门槛顶部至地砖装饰面垂直高度较大值调整为35mm,最小值为20mm;调整后门槛节点详见下图。


(三)补充表达洗衣机、冰箱位置。
回复:原硬装户型中D-119户型、B1-89户型、A-78户型卫生间及厨房共计5处缺失表达洗衣机、冰箱位置,现补充上述户型洗衣机、冰箱位置贴纸示意图,现场整改如下图所示。

(四)暖气与窗帘选型宜再优化表达。
回复:根据《民用建筑供暖通风与空气调节设计规范》 第5.3.7条条文说明中指出“散热器布置在外墙的窗台下,从散热器上升的对流热气流能阻止从玻璃窗下降的冷气流,使流经生活区和工作区的空气比较暖和,给人以舒适的感觉,因此推荐把散热器布置在外墙的窗台下”。同时考虑到窗帘对暖气片的遮挡,对窗帘选型进行优化,抬高窗帘下摆高度至暖气片上方,减小对散热的影响。
(五)干湿分区后,过门石兼挡水可优化。
回复:为防止干区地面存水溢流,现有设计在洗手台下方地面设有地漏,并在卫生间干区与客餐厅、卧室交界处设置过门石兼挡水,故建议保留这两处过门石。

(六)卫生间D、F台面直角边与浴室门关系需细化处理。
回复:D-119主卫淋浴隔断左侧固玻宽度由400mm调整至470mm,右侧固定玻璃由400mm调整为330mm,使其圆弧门扇开启角度避开卫浴柜台面直角边。

二、专家意见二
(一)所有部品安装到位(下水、排烟管等);厨房抽油烟机排烟管道调整并安装。
回复:现所有部品均已安装到位,包括厨房洗菜盆下水管、抽油烟机排风管,窗帘杆,晾衣杆,卫生间置物架等。
(二)6.35㎡卧室标准是否符合规范(请核准文件)。
回复:根据北京市《住宅设计规范》DB11/1740-2020第5.2.1条,单人卧室不应小于6.0㎡,该房间为儿童房,设1.2m宽单人床,满足规范要求。

(三)防水坝调整为淋浴区及卫生间门下口处。
回复:为防止干区地面存水溢流,现有设计在洗手台下方地面设有地漏,并在卫生间干区与客餐厅、卧室交界处设置过门石兼挡水,故建议保留这两处过门石。
(四)概算与样板间一致(例:智能马桶)。
回复:概算书中“智能马桶”一项,与实际现场马桶不一致,对概算书中该项进行调整。
三、专家意见三
(一)应保证图纸与现场样板间尺寸、标识、标牌保持一致,建议明确软装与图纸关系。
回复:已复合样板间尺寸、标识、标牌等,确保一致。
(二)部分客厅、卧室的外窗开启扇建议保证防护高度及通风采光要求下,优化开启扇设计。
回复:按北京市《住宅设计规范》DB11/1740-2020第8.3.3条,卧室、起居室 ( 厅 )、明卫生间的直接自然通风开口面积不应小于该房间地板面积的 1/15。同时,外窗必须内开,且窗台距楼面净高低于0.90m时,应设置防护设施,防护高度从窗台面起算不应低于0.90m,并应贴窗设置。阳台防护高度1.10m,飘窗外窗开启高度必须在窗台面0.90m以上,阳台外窗开启高度必须在距地高度1.10m以上,本项目在满足通风面积、防护高度的要求下,已合理进行开启扇设计,同时结合设置防护栏杆,保证了整体美观性。

(三)部分卧室床布局与暖气片布置冲突,建议调整暖气片位置。
回复:B2-90户型北侧客卧房屋进深较小,窗台下暖气片影响卧室床具布置,现对暖气片位置调整至窗台侧墙。

(四)厨房
1.灶台与冰箱应满足300mm距离。
回复:经核实精装施工图纸及样板间现场情况,A-78户型、B2-89户型、B3-89户型灶台旁冰箱预留位置轮廓距燃具边缘水平间距均大于300mm(其余户型冰箱预留位置未在灶台旁),满足设计规范要求。

2.部分外窗开启扇与龙头冲突。
回复:B1-89、B3-89户型共计2户厨房外窗为满足北京市《住宅设计规范》DB11/1740-2020第8.3.3条中对于最小通风面积的要求,无法设置下亮窗(其他户型无该问题),故该两处开启扇与后期预留净水器水龙头存在碰撞可能,现将净水器龙头预留孔调整至另一侧,规避碰撞。

3.未见检修口,应优化管井包覆墙做法。
回复:原所有户型卫生间及厨房无检修口,现所有户型统一增加检修口。






(五)卫生间
1.建议淋浴区设置物篮;优化淋浴花洒选型。
回复:1、原A-78户型、B1-89户型、B2-89户型、B3-89、C-113户型、D-119户型共计6户卫生间无置物架,现增加置物架;
2、分体式花洒属于常规款式,项目招标选用同类型高品质花洒套装,能够满足日常使用功能。

2.洗衣机龙头高度建议统一优化。
回复:现已统一洗衣机龙头高度为1.2米。
(五)应复核共有产权住房导则设置标准,明确窗帘杆、晾衣架是否包含。
回复:现已根据共有产权住房设计导则要求所有户型已配置晾衣杆和窗帘滑杆。
(六)概算中依据有误,建议调整。
回复:1、修改编制说明中概算编制依据,将编制依据由“《某商业金融项目室内设计方案》初步设计图纸及设计说明书”改为“《北京市大兴区瀛海镇集体建设用地共有产权房项目样板间装饰工程》初步设计图纸及设计说明书”。
2、根据评审意见和现场施工概算书中各户型中增加阳台及飘窗护窗栏杆、阳台晾衣架、卫生间置物篮。
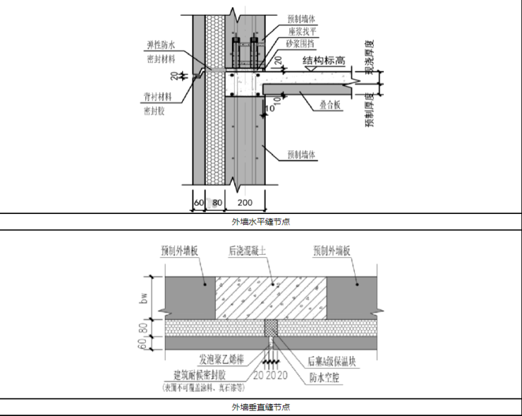
(七)建议结合三明治外墙板深化设计,应保证节点防水效果。
回复:预制三明治外墙板接缝,有多道防水措施,可保证防水效果,具体为水平横缝采用企口形式,最外侧采用聚乙烯棒及建筑耐候密封胶防水,中间部分为物理空腔形成的减压空间,内侧采用现浇混凝土及灌浆层封堵的结构防水措施。节点图如下:

四、专家补充意见
(一)保证部品、工艺工法样角与样板间同期开放展示。
回复:营销中心部品、工艺工法样角增加布置展示淋浴间置物架、窗帘滑杆、晾衣杆、马桶、洗手盆龙头、暖气片、抽油烟机、燃气壁挂炉、瓷砖等部品实物以及卫生间降板地面做法展示模型,保证与图纸、样板间保持一致,并与样板间同期开放。




(二)复核凸窗栏杆可踏面,优化栏杆选型,尽可能扩大外窗开启扇。
回复:按北京市《住宅设计规范》DB11/1740-2020第7.1.3条,“当设置凸窗,且窗台距楼面净高低于0.9m时,应设置防护设施,防护高度从窗台面起算不应低于0.9m,并应贴窗设置”。考虑到装配式建筑的特殊性(有120mm宽的内窗槛),栏杆贴窗设置则位于内窗槛上方,为避免儿童登踏窗槛发生危险,充分保证防护安全,将窗槛视为可踏面,目前护窗栏杆顶部距窗槛平面900mm以上,在满足日照及通风的前提下,现设计已尽可能扩大外窗开启扇高度。
声明:本文由入驻焦点开放平台的作者撰写,除焦点官方账号外,观点仅代表作者本人,不代表焦点立场。







