丰台、大兴两大限竞房即将入市 金融街融府均价6.6万
扫描到手机,新闻随时看
扫一扫,用手机看文章
更加方便分享给朋友
今日,住建委官网公示了两个项目的预售许可信息,二者同为限竞房,分别是金融街·融府(金丽嘉苑)和首开保利·熙悦林语(悦享和苑 )。


下面是两个住宅项目的具体信息
金融街·融府
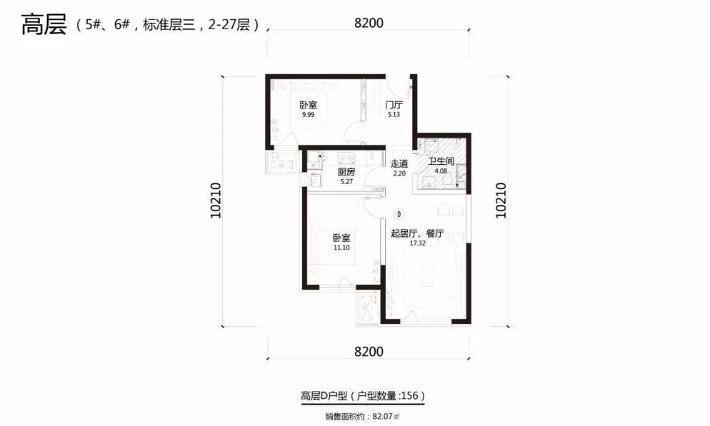
金融街·融府位于丰台区丰管路与泥洼路交汇东北角,此次是项目首次取证。项目目前均价为66555元/平米,预计推出的户型是82平米两居,87-89平米三居,150平米四居。



小区容积率为2.4,一共有6栋楼,2栋高层,1栋小高层,3栋叠墅,属于典型的高层+叠拼的高低配模式。
周边项目情况:新房方面,与其一路之隔的九龙仓西城天铸,均价为77800元/平米。周边二手房均价在6万上下浮动,房龄17年以上的盛鑫嘉园、丰益花园均价为5万9;北侧次新的西宸原著,均价在12万左右。
交通:距离地铁10号线泥洼站200米,距离10号线、14号线西局站600米。并有西四环、西三环、丰台北路环绕,公交和自驾出行都很方便。

配套:学校包括星星天地幼儿园、北京市丰台区排名前列小学、北京十二中、丽泽中学;紧邻的商业有亿潼隆丰益购物中心、恒泰中心;休闲场所包含丰益公园、丰台花园、丰台体育中心等。
首开保利·熙悦林语
首开保利·熙悦林语,位于大兴南五环与德贤路交叉口东南侧500米,此次已经是项目今年第四次取证。该项目为70年产权限竞房,均价52315元/平米,产品类型包括80-89平米两居、138平米三居洋房以及200-280平米叠拼。



周边项目情况:该项目周边限价房和普通商品房产品都比较多,限价房有和悦华锦、万和斐丽、瀛海府、禧瑞天著,均价都在5.2万/平米左右;普通商品房项目有中铁华侨城和园、亦庄金茂府等,均价在6.7-6.8万/平米;另外,旧宫10月二手房均价 45630 元/平米。
交通:距离8号线五福堂地铁站约1000米,距离德茂地铁站约1200米,另外还有7条公交线,无缝链接北京各功能区。京开高速、南中轴路、德贤路、京台高速快速链接大兴现代服务新城、亦庄产业新城、航空新城及北京各大经济发展极。

配套:项目距离北京较大的湿地公园南海子公园二期不足百米,仅一渠之隔。周边还有宣颐公园、旺兴湖公园等8大公园以及熙悦林语绿化带环抱。自然资源的优势提升项目的居住品质与生活舒适度。商业配套有住总万科广场、世界之花等。
特别提示
如您有相关购房咨询事宜,可添加微信——买房大家帮小秘书(maifangdjb01),免费加入“买房大家帮”购房群。购房群内有全国各地的资深地产人士和买房人,随时为您答疑解惑。
—原创文章 未经授权 谢绝转载 欢迎转发—
声明:本文由入驻焦点开放平台的作者撰写,除焦点官方账号外,观点仅代表作者本人,不代表焦点立场。







