最后3套城区共产房,本周五补选!京籍非京籍都有机会!
扫描到手机,新闻随时看
扫一扫,用手机看文章
更加方便分享给朋友


朝阳区澜悦景苑共有产权住房项目经过第二轮选房签约后,退出房源共计3套。
如有新的退出房源,将一并纳入本轮可选房源。本次选房活动将由北京市方圆公证处全程公证。现将具体安排公告如下:
一、房源概述
(一)项目基本情况
中交世茂(北京)置业有限公司开发建设的澜悦景苑项目,位于朝阳区将台乡,产权性质为共有产权住房。
(二) 可选房源
本轮可选房源共计3套,全部为二居室户型;
其中面向非京籍家庭销售的房源共计1套;面向京籍家庭销售的房源共计2套。
京籍房源明细:
· 单元:二单元
· 房号:402
· 楼层:4层
· 建筑面积:80.34平米
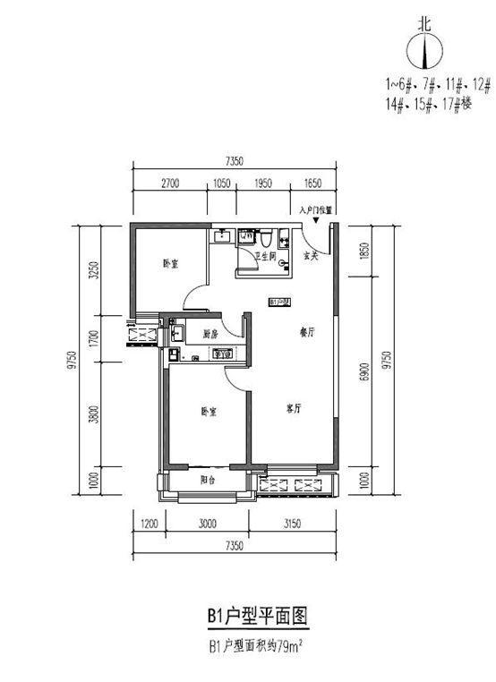
· 户型:二居室、B1反户型、朝南
非京籍房源明细:
· 单元:一单元
· 房号:203
· 楼层:2层
· 建筑面积:79.82平米
· 户型:二居室、B1户型、朝南

B1(B1反)户型图
(三)销售均价
本项目销售均价为43000元/建筑平方米,包含全装修费用(根据具体楼层、朝向、位置等因素在±5%的范围内调整销售价格)。
(四)共有份额比例
本项目的房屋产权由购房人与政府按份共有,其中单套住房的购房人产权份额比例为65%,北京市朝阳区保障性住房发展有限公司持有剩余35%产权份额。
(五)规划设计标准
本项目于2019年2月取得国有建设用地使用权挂牌出让成交确认书,挂牌出让文件约定本项目为共有产权住房。本项目适用《关于印发<北京市共有产权住房规划设计宜居建设导则(试行)>的通知》(京建法〔2017〕20号)相关规定。
(六)房源详细情况咨询电话
咨询电话:010-64310120、010-64310130 (上午9:00-11:30,下午14:00-17:00)
二、选房工作安排
(一)分组选房
根据本项目销售对象及房源的不同,本轮选房将按照非京籍家庭普通组(首轮选房时非京籍家庭优先组已全部通知完毕)、京籍家庭组的顺序进行,且依照各组别已经摇出的选房顺序号分别安排选房。
(二)选房范围
· 非京籍家庭普通组:1405号 -1434号。(第二轮递补选房中,截至1404号选房家庭,房源已售罄 ,1405号及后续家庭未获得入场机会)
· 京籍家庭:6539号- 6738号。(第二轮递补选房中,截至6538号选房家庭,房源已售罄 ,6539号及后续家庭未获得入场机会)
(三)选房时间
2021年4月30日上午9:00(非京籍家庭普通组)
2021年4月30日上午10:00(京籍家庭)
各申购家庭具体到场时间请参阅下表:

注:申购家庭应按选房到场时间表中通知的选房开始时间提前30分钟到场等候选房。
(四)选房地点
本轮递补选房在上东郡(澜悦景苑)销售中心进行,具体地址为北京市朝阳区酒仙桥中路10号星科大厦C座,选房场地位置及相关提示信息如下:
(1)选房地点:

(2)行车路线
· 公交路线:
乘坐847、专123、专124路至七零一厂站,下车即是
· 地铁路线:
14号线将台站下车,出A口往东直行900米至酒仙桥中路与酒仙桥路交叉口右转直行900米路北即是
· 自驾车路线:
百度地图或高德地图导航直接搜索“上东郡销售中心”即可
(五)其他注意事项
若房源提前售罄,可能会出现后续到场家庭无可选房源情况。
各申购家庭请随时关注北京市方圆公证处开发的“公证选房”App软件,可在线查询实时选房情况。
三、选房现场须提交的材料
申购家庭应服从选房现场工作人员管理,自觉遵守和维护选房现场秩序。
(一)须提交的纸质材料
申购家庭应携带以下材料到场选房:
1.申购家庭提交全部家庭成员身份证、结婚证(离婚证、离婚协议、法院判决书或调解书)、户口簿、有效的北京工作居住证或北京市居住证原件和复印件(一式两份)。
2.驻京部队现役军人和现役武警家庭成员,还需提供军(警)身份证原件和复印件(一式两份)。
3.港澳台家庭成员还需提交身份证件(香港居民身份证、澳门居民身份证、台湾居民来往大陆通行证等)、结婚证(离婚证、离婚协议、法院判决书或调解书)原件和复印件(一式两份)。
4.外籍家庭成员还需提交护照和护照中文译本公证、结婚证(离婚证、离婚协议、法院判决书或调解书,婚姻证件为境外的,需提供境外婚姻证件中文译本公证)原件和复印件(一式两份)。
5.集体户口家庭成员(包含申购人)需提供集体户口首页复印件(一式两份)并加盖公章、本人页原件和复印件(一式两份)。购房人及配偶(如已婚)提供的户口本中的婚姻状态应与提交的婚姻证件保持一致。如家庭其他成员身份证件为护照,需提供护照中文译本公证。
6.选房必须申购人本人亲自到场,如确因特殊原因不能到场的,可委托他人代为选房。受托人除上述须携带的资料外另须携带经公证过的授权委托书(可参考附件7)原件一份及受托人本人身份证原件及复印件一份。夫妻间代为选房不需公证,除上述须携带的资料外另须携带授权委托书、双方身份证、结婚证原件及复印件一份。
(二)须交纳的购房定金
完成选房后,购房人应同时交纳人民币100000元(壹拾万元整)定金并签订认购书。待资格审核完毕后,由工作人员通知签订正式合同。如购房人未能在选房当天12点前交纳足额定金,则视为放弃本次购房资格。
注:选房现场只能刷购房人本人名下“银联”标记的借记卡,且只允许刷一张借记卡。为保证顺利付款,除定金100000元外请多存10元,由此给您带来的不便敬请谅解。现场不收取现金、支票及存折,定金计入购房款。
四、注意事项
(一)购房款计算方式
购房人的购房总价款=房屋建筑面积×销售价格。以本项目为例:如果申购家庭选择了一套建筑面积为80平方米,销售价格为43000元/建筑平方米的房屋,该家庭需要支付的购房款为80平方米×43000元/建筑平方米=3440000元。
(二)请按时到场选房
申购家庭应按选房到场时间表中通知的选房开始时间提前30分钟到场等候选房。选房时,工作人员按摇号顺序号呼叫已通过资格审核的选房人姓名。选房人未到场,视为迟到,由工作人员呼叫下一选房人,顺序选房。迟到的选房人在选房截止时间前到场的,其选房顺序轮至其到场之时正在选房的家庭组末尾。
申购家庭到场时间安排当日有效,在当日选房截止时间(当日11:00)前仍未到场的申购家庭,视为放弃本次购房资格。
(三)所选房源不得更换
所选房源一经签字确认,不得更换、调换。购房家庭应与我司、政府代持机构共同签订三方购房合同。
(四)选房时间有限
每个申购家庭不得超过2人进入选房场地选房。每组申购家庭选房时限不超过3分钟,如在规定时间内未完成选房的,后续申购家庭可同时进行选房。
(五)约定时间内交纳购房款
选房家庭完成所有选房手续后,应在《认购书》中约定的时间内与我司签订北京市共有产权住房预售合同并交纳购房款,未在约定时间内签订预售合同并交纳购房款的,则视为放弃本次购房资格。
(六)珍惜选房机会
根据《暂行办法》规定,申请家庭放弃选定住房或选定住房后未签订购房合同,视为放弃本次购房资格,累计两次及以上的,3年内不得再次申购共有产权住房。
(七)复核通过方可签订合同
我司在选房现场对选房家庭申请材料进行核对,留存相关复印件,符合条件的,将联机打印的《家庭购房申请表》和《购房承诺书》经申请家庭签字确认后,一并报朝阳区房屋管理局复核,复核通过的选房家庭可签订购房合同。
(八)诚信申购
根据《暂行办法》、《朝阳区澜悦景苑共有产权住房项目申购登记公告》,对通过隐瞒家庭信息、伪造证明材料等方式,弄虚作假,骗购共有产权住房的家庭,一经查实,我司将与其解除购房合同,购房家庭承担相应经济和法律责任。
(九)其他
请申购家庭详细了解北京市共有产权住房相关政策,具体可查阅北京市住房和城乡建设委员会官方网站(http://zjw.beijing.gov.cn/)和北京市朝阳区人民政府网站(http://www.bjchy.gov.cn/)。
(十)特别提示
根据疫情防控需要,按照市、区主管部门防疫规定,选房现场所有人员应服从统一指挥,全程正确佩戴口罩,人员间隔距离不少于1米。
选房现场每个申购家庭不得超过2人进入选房场地选房,进入场地时,请配合工作人员进行体温检测、手机“健康宝”出示及信息登记工作。
凡未佩戴口罩、体温异常或正处于隔离期的人员,我们将谢绝进入。

声明:本文由入驻焦点开放平台的作者撰写,除焦点官方账号外,观点仅代表作者本人,不代表焦点立场。







