祥云赋:临湖合院 独门独院 瞰湖3居洋房
扫描到手机,新闻随时看
扫一扫,用手机看文章
更加方便分享给朋友


院墅起源传统四合院。从规划设计角度看,中国自古以来就是最善于设计高品质、高舒适度居住产品的国家,从江南古镇院落到北京的四合院,均有私密性高、空间感大于实际的特性。正是基于这种优势特征,合院产品作为中国四合院的一种形式,被各大开发商所采用。
遵循居住的本质,重新定义人居空间
在中式传统建筑文化中,家庭始终是十分重要的考量。不断追问居住的本质,才是解决居住设计的良方。祥云赋遵循居住的本质,设计团队奔赴南方学习,历经50多轮改图,反复雕琢,最终在有限的土地上重新定义了人居空间。

效果图
从街坊至里巷、至院落、再至居住空间,由开放逐渐趋于封闭。传统院落是中国传统家居中的生活空间,是居住活动的中心场所,有很强的归属感和聚合力。祥云赋的合院产品更是将这种归属感体现地酣畅淋漓。


东方人居智慧,未来居住理念
目前市场上的合院多主打中式,片面复刻的古代建筑标识让整体建筑设计过于沉重,难以满足现代生活的居住要求。因此,在此次产品设计中,祥云赋首先将产品设计理念定位为回归美好生活本源,注重园林意境与现代生活的结合,化繁为简,保留了东方格栅的轻盈通透,融合祥云纹饰,让整体建筑更加现代。
产品设计另一大特点就是装配式建筑,迎合未来居住理念,大量使用标准建筑构件,利用装配式技术实现大量落地玻璃窗,并通过多项精工品质实现现代品质家居,同时统一化的标准技术使得房屋也更加安全。

示意图
祥云赋临湖合院户型
祥云赋建面约400㎡合院产品匠心打造归家层、逸趣层、会客层、家庭层、主卧层、观景层六维空间,层层套房,用设计让居者在各层空间都能提升幸福感。






祥云赋位于低密的中央别墅区罗马湖畔,离望京仅有10公里,背靠温榆河与罗马湖的两大优质生态资源,是低密宜居的佳选。项目周围环聚中粮祥云小镇,荣祥广场等8大商业中心,友谊医院分院、空港医院、和睦家医院等10家知名医院,更有北京70%的国际名校坐落于此。
目前合院产品已经发售,建面约400-500㎡,价格仅1500万起——这是中央别墅区中。

效果图

六维空间,层层套房,用设计提升幸福感
祥云赋建面约400㎡合院产品匠心打造归家层、逸趣层、会客层、家庭层、主卧层、观景层六维空间,让居者在各层空间都能自得其乐。
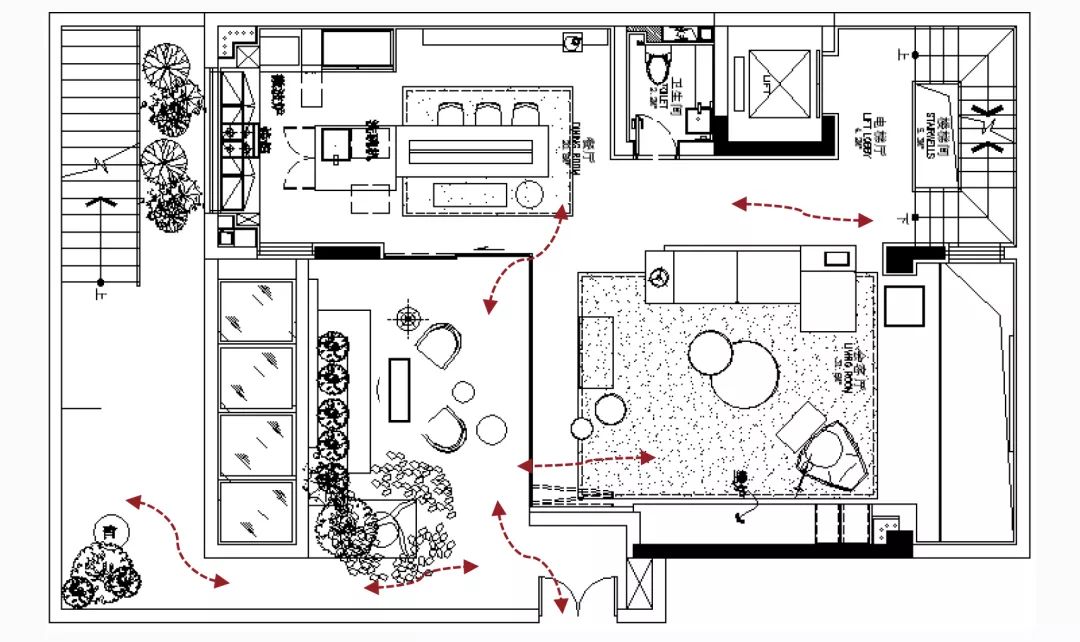
270度落地采光窗+厅院共生+餐客厨一体化
在会客层,270度大面积落地窗,突破传统承重结构,加大采光和通风面积,室内外厅院相互共生,满足全家人的活动需求;一体式的餐厨设计则大大提高了空间的利用率,可供6-8人就餐。


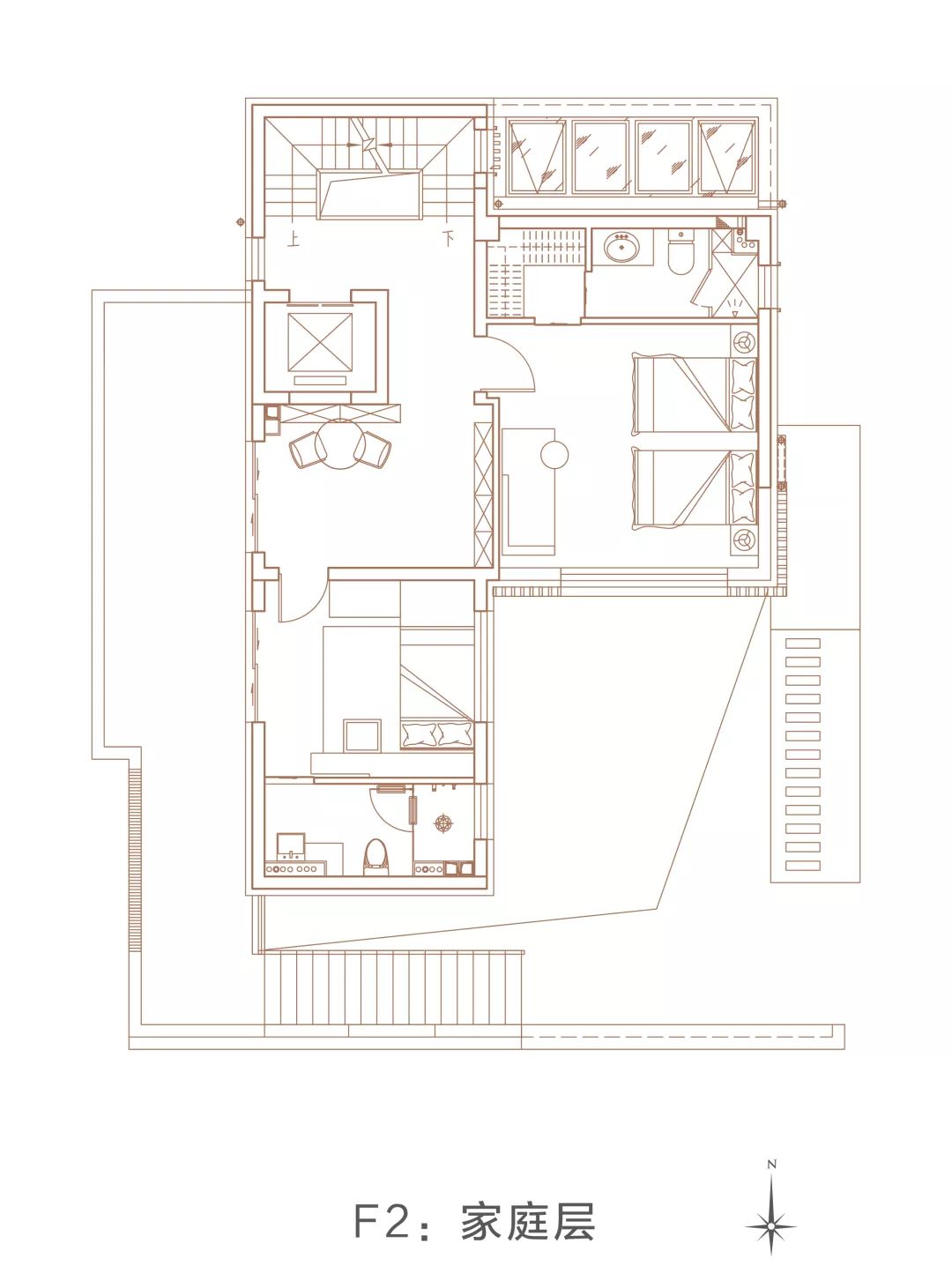
双套房设计+独立家庭厅
在家庭层,设有双重套房,值得一提的是在套房中间设计了家庭厅。家庭层的意义不只是休憩,这里也是孩童间相互嬉闹,父母陪伴,一起成长的地方。家庭厅既方便祖孙互动同乐,又可以让祖孙独立休息互不打扰。


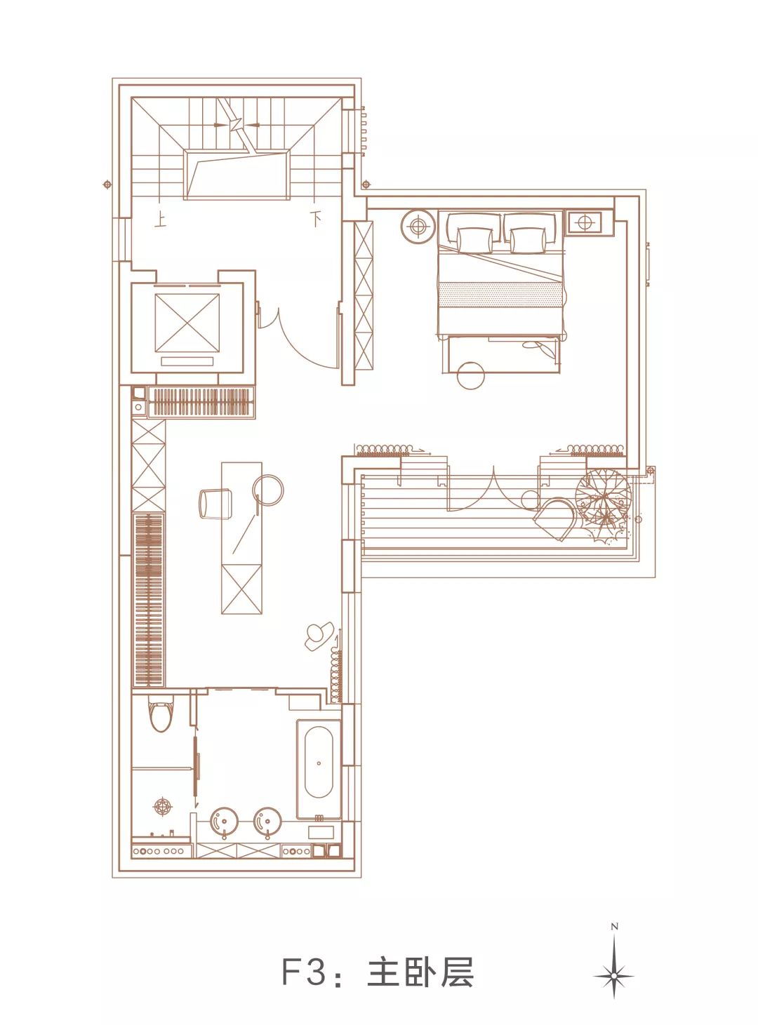
独立主卧层,私密性与尊贵感优质融合
主卧层,不仅拥有南向大面宽卧室、,书房、独立卫浴也一应俱全,更有可变空间可随心设置功能,任意打造成衣帽间或工作间。步入其内,关门,室外的吵闹戛然而止,轻松与惬意的气息扑面而来。


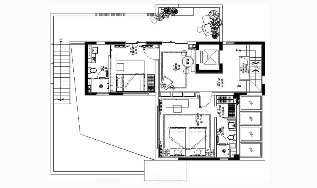
观景大+多功能房
在观景层,采用隔热保温效果很好的坡屋顶设计,让居者可自由打造专属私享空间,它可以是、书画室,同时也具备成为另一间套房的功能。此外,南向的观景是附赠的惊喜,可以在这里种植空中花园,也可以享受夏日傍晚微微清风,好不惬意。

示意图
地下空间:错层设计+竖向采光井
逸趣层是家庭成员共同休闲、娱乐的空间,采用错层设计,使整个地下空间得以延展,同时竖向采光井实现地下全天候采光,可打造成影音室、游戏室等。
归家层则打造成为一个功能空间,在作为车库的同时,还可以将其余的空间打造为私人健身房。


中央别墅区 1500万起 独门独院
祥云赋位于低密的中央别墅区罗马湖畔,离望京仅有10公里,背靠温榆河与罗马湖的两大优质生态资源,是低密宜居的佳选。项目周围环聚中粮祥云小镇,荣祥广场等8大商业中心,友谊医院分院、空港医院、和睦家医院等10家知名医院,更有北京70%的国际名校坐落于此。




<< 向右滑动查看下一张示意图 >>
在中央别墅区,拥有这样一套独门独院、有天有地的合院居所,对于想进入中央别墅区,享受其核心湖居生活和优质居住体验的新贵阶层来说,是一次难得的升级机会。
目前合院产品已经发售,建面约400-500㎡,价格仅1500万起——这是中央别墅区中,一个多年未见、令人心动的合院产品价格。
要知道,早在十年前,在中央墅区这个区域,这类产品的售价都至少都得在1500万—1800万左右。
所以,如果现在有这个经济实力的话,祥云赋合院产品不得不说是个非常好的选择。1500万,你就可以中央墅区拥有一户一院,看花开花落,望云卷云舒,自在惬意。

效果图





免责声明
开发商:北京正德瑞祥房地产开发有限公司 本项目推广案名为祥云赋,政府备案核准名为云赋家园。
本资料为要约邀请,所载文字以及图片仅供参考用途,买卖双方权利义务均以《商品房买卖合同》及政府等相关部门的批准文件为准,出卖人保留对宣传资料修改的权利。
本页中对项目周边环境、交通、教育及其它配套设施的介绍,旨在提供相关信息,不意味着本公司对此作出了承诺和保证。
本资料部分图片来源于网络,版权归原作者所有;
预售许可证号:京房售证字(2018)116号。
出街日期:2018年11月9日
声明:本文由入驻焦点开放平台的作者撰写,除焦点官方账号外,观点仅代表作者本人,不代表焦点立场。







