曾有2.8万人抢破头 玉景阳光还剩少量房源
扫描到手机,新闻随时看
扫一扫,用手机看文章
更加方便分享给朋友
较新消息,石景山共有产权房玉景阳光将于本周六进行递补选房活动,项目还剩7套房源,其中,面向京籍(排名前列组)的房源共6套(5套两居室,1套一居室); 非京籍人才家庭(第二组)房源1套(两居室)。通知前往的是京籍(排名前列组)第1501号-2000号申购家庭、非本市户籍人才家庭(第二组)第93-150号申购家庭。(微信搜索“pinfang6666”添加拼房帝小助理微信,可解决所有共有产权房问题哦~)
选房时间:2019年6月29日上午9:00
选房地点:北京市石景山区玉泉西路玉景阳光售楼处一层
剩余房源明细如下↓
去年,玉景阳光的申请人数达28819户,申购比高达64:1,火爆一时,下面就具体介绍一下项目情况。
01
居住环境
小区环境 + 户型 + 装修
小区环境
石景山区玉泉西一路X-18160地块(玉景阳光)共有产权住房项目位于北京市石景山区玉泉西一路(长安街以北),项目规划地上建筑面积43409平方米,其中共有产权住房地上建筑面积37105平方米,容积率1.6,绿化率30%,共计452套共有产权住房,全部是6层电梯小板楼,但楼栋分布设计欠佳,存在大量东西向房源。
另外,社区内配备有健身房、阅览室、警卫室、便利店、活动中心等,大大方便业主的生活需求。
户型
项目共建设共有产权房452套,其中,约86-89平方米两居室408套,约64-74平方米两居室25套,约42-67平方米一居室19套。
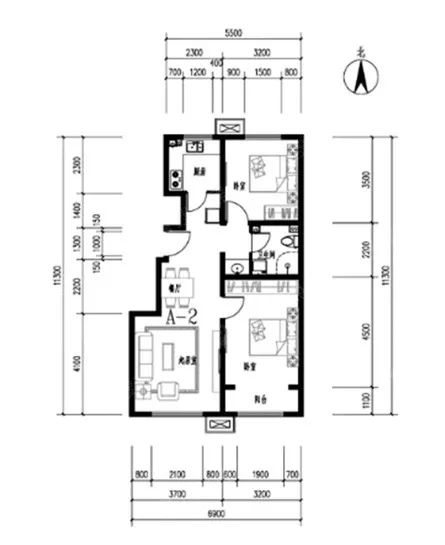
本次剩余的7套中,有3套A1户型,3套A2户型和一套H户型。
▽A1户型两居室
▽A2户型两居室
▽H户型一居室
装修
项目是全装修交房,预计2020年12月31日交房。
02
价格对比
玉景阳光单价:35000元/平,购房人产权份额比例为50%。
对比周边二手房:距离项目最近的园林小区售价在6.2-6.5万/平之间;建于1986年的玉泉西路甲3号院售价在5.4-5.8万/平之间。
03
生活配置
交通 + 商业 + 教育 + 医疗
交通
项目距离1号线玉泉路大约1公里,附近也有多条公交线路供选择。项目临近长安街,距离阜石路约4.3公里、距离莲石路约5.8公里,距离西四环路约9.5公里,距离西五环路约4.1公里,自驾出行道路的选择性较多,也很方便。
交通干道:长安街西延线、莲石路、阜石路、西四环路、西五环路。
公共交通:地铁1号线、专11、76、337、373、941、运通120线等。
商业
玉景阳光对面就有一些便民超市、餐厅、药店、加油站等基础配套,周边还有万达商圈、五棵松华熙LIVE商圈等大型商业配套。项目内部也配备了健身房和便利店。
教育
项目一街之隔的就有中国科学院附属玉泉小学、石景山区实验小学分校区。还有北方之星双语幼儿园、中国科学院大学、北京应用技术大学艺术设计学院等。
医疗
周边有清华大学玉泉医院、航天中心医院等。
项目评分
该测评分值由【拼房帝专家组】根据多项测评指标,总结概括为【三大范畴-8个细分角度】综合评定,仅代表本平台立场,仅供参考。
玉景阳光
居住体验专项得分:8.5
价格对比专项得分:9.0
生活配置专项得分:8.9
综合评分:8.8分
微信搜索“pinfang6666”添加拼房帝小助理微信,共有产权房咨询,有问必答!
声明:本文由入驻焦点开放平台的作者撰写,除焦点官方账号外,观点仅代表作者本人,不代表焦点立场。







