1号线旁纯新房仅剩少量房源 首付64万起
扫描到手机,新闻随时看
扫一扫,用手机看文章
更加方便分享给朋友
最近石景山楼市真的很热闹,纯商品房中海寰宇天下抓住6月的尾巴,将在6月30日开盘,加推最后3栋楼,限竞房新城首创禧悦学府城市展厅已经对外开放,共有产权房就更热闹了。西山荟景嘉园7月3号至6号选房,玉景阳光6月29日进行递补选房活动。焦点君给大家整理了石景山共有产权房较新动态,包含待网申项目,其中不乏地段还不错的,比如说阜石路1603-616地块,距离地铁金安桥站仅400米,想必会吸引一波购房者的关注,今年年初刚拿的地,目前还没太多动静。今天给大家重点说说玉景阳光,微信搜索“goufang02“,添加购房置业小秘书入群,房产咨询,有问必答!

较新动态:6月29日递补选房
玉景阳光位于石景山区玉泉西一路(长安街以北),递补选房活动将于6月29日进行,剩余7套房源,其中面向申请人为石景山区户籍无房家庭和在石景山区工作的本市其他区户籍无房家庭(排名前列组)配售的房源共计6套(5套两居室,1套一居室); 非本市户籍人才家庭(第二组)配售的房源共计1套(两居室),以下为剩余房源明细:

从价格来看,剩余房源中最小户型为 61.97平户型,总价在213万/套,首套首付64万,在长安街沿线买一套新房,而且周边有地铁,有配套,可以说十分友好了。
配套情况:商场公园全都有
玉景阳光的地段在石景山新房里来说算不错的了,哪怕是跟限竞房比也不逊色。轨道交通方面,直线距离1号线玉泉路站约800米,周边还有多条公交线路;路网方面,项目临近长安街,距离阜石路约4.3公里、距离莲石路约5.8公里,出行线路选择众多,。从环线上看,玉景阳光在四环和五环之间,不管是公共交通出行还是自驾出行都是十分方便的。
地段好自然配套也不会差,在玉泉路版块基本上可以享受石景山以及海淀的部分配套,商业方面,小区对面就有一些便民超市、餐厅、药店、加油站等生活配套,大型商业可以去到五棵松商圈、万达广场等,值得一提的是,五棵松商圈已晋升为京西年轻人必去的吃喝玩乐之地。医疗资源方面,在玉泉路到项目的路上就有清华大学玉泉医院,3公里左右还有301医院,满足看病所需。除了这些,北京国际雕塑公园距离项目也不远,大概900米,饭后散步的好去处。
总体来看,周边生活配套成熟,地段优势较为明显,居住起来还是十分舒适的。微信搜索“goufang02“,添加购房置业小秘书入群,房产咨询,有问必答!
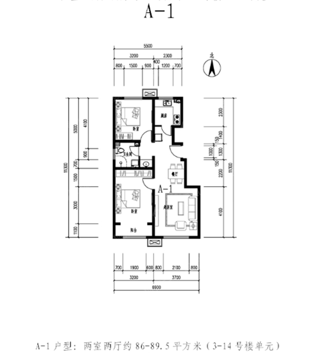
户型

户型点评:86平两室两厅设计,南北通透,全明格局,客厅面宽3.7米,采光面充足,主卧有内嵌式阳台,方便晾晒衣服,卫生间干湿分离。整体来看,这个户型设计合理,浪费面积少,居住舒适度高。
微信搜索“goufang02“,添加购房置业小秘书入群,房产咨询,有问必答!
延伸阅读:
声明:本文由入驻焦点开放平台的作者撰写,除焦点官方账号外,观点仅代表作者本人,不代表焦点立场。







