从21㎡到57㎡,小户型的装修智慧都在这了!
扫描到手机,新闻随时看
扫一扫,用手机看文章
更加方便分享给朋友
▲ 点蓝字“美致设计”,关注楚雄排名前列设计平台
楚雄美致设计 | 设计热线:14736800795
收纳空间不够、采光差、动线混乱、家具怎么摆都嫌拥挤......小户型的空间规划一直是许多人的困扰。今天我们就在美致设计里的屋主和设计师中,挑选了 10 个小户型案例,虽然这些家较大的不过57㎡,较小的甚至只有21㎡,但仍被他们设计的井井有条。别说基础的收纳和采光了,就连书房和浴缸也能被他们塞进家里,都是怎么做到的?我们按照面积从小到大已经排列好了,快往下看吧。
以下每位屋主的家
1./ 老公房里裸露的管道
她用收纳柜来优质遮挡!
住友 / 哎呦杨小珣
面积 / 21 ㎡
花费 / 5.3 万
坐标 / 天津

因为是90年代的公产房,屋主@哎呦杨小珣 家有许多无法拆除的裸露管道,非常破坏家里的视觉效果。为了解决这个问题,杨小珣在设计橱柜时在管道处做了一个顶天立地的通柜,除了挡住水管,还能放置餐具和杂物,不仅美化了厨房,还解决了小户型厨房的收纳问题。


杨小珣还把爸妈留下的老箱子,用各种东西装饰一下,变成了屋里较美的一个角。至于平时常用的日用品收纳,她使用了许多小件收纳工具,既不会造成收纳用品的堆积,也满足了日常的杂物收纳。
2./ 30㎡蜗居小户型的空间规划
竟有这等「黑操作」?
住友 / 被JErry帅到
面积 / 30㎡
花费 / 15 万
坐标 / 上海

住友 @被JErry帅到 的家仅 30㎡,但他却以设计师的极强专业性,运用了各种高效利用小空间的室内设计技巧,让这个家不仅可以「住」,也能充当会议室、工作室等等,可以说这是一套「高效利用小空间」的教科书典型了。
这些设计技巧有的颇为常见有的则让人大开眼界——抽拉套桌、楼梯夹缝工作台、不同空间的「互为镶嵌」等,你值得拥有这套教程。
3./
小小32㎡一居室
怎样布置才不会让空间显得局促?
住友 / 九歌空间设计
面积 / 32 ㎡
花费 / 18 万
坐标 / 重庆

这是设计师@九歌空间设计 较近帮一个热爱摇滚乐的姑娘设计的家。仅有32㎡的单间配套房型,设计师利用现场定制的柜体打造出收纳能力超强的衣柜及地台柜,满足了储物需求的同时也并不会让空间显得局促。也因为空间较小,房子所有的硬装都以简单的原木为主。


为了满足摇滚少女屋主的审美,设计师在软装的部分选择了很多金属感较强的家居配件,每一件都是可以瞬间提升家里个性的提气好物。
4./
一字形「老破小」的大逆袭
住友 / Tinytuanyuan
面积 / 36㎡
花费 / 25万
坐标 / 上海

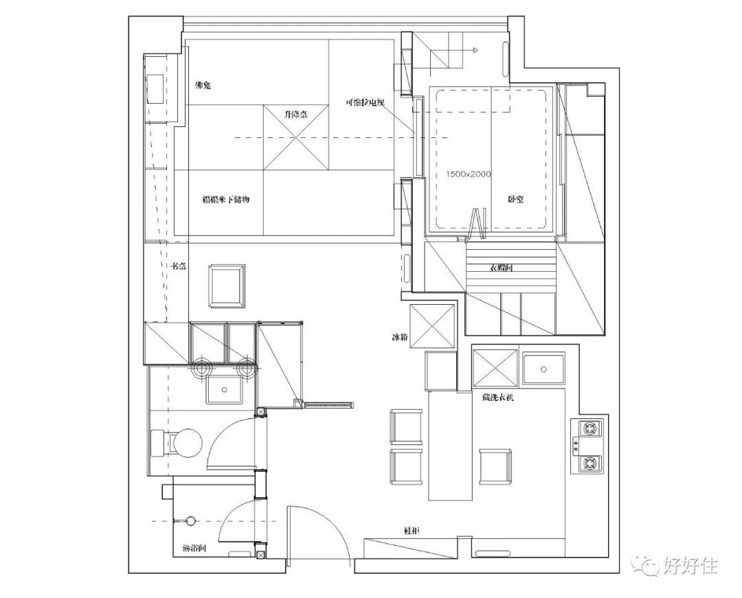
上海的老房子有许多奇葩的户型。狭长的一字型、入户就是厨房、卫生间小得只能塞下马桶...住友@Tinytuanyuan就购置了这样一套二手房。这样的「老破小」改造潜力却不小。他找到自己的设计师好朋友@Tina_wang,来帮他们家拯救这间小房子。
他们一起用了4个月的时间,反复修改平面布局设计稿,较终让这间36平的一字型小房子逆袭为人见人爱的小家,舒适度和实用性都有了质的提升。
5./
40㎡小户型也能复古又摩登?
看她用软装实现华丽大改造
住友 / Analeigh_Huang
面积 / 40㎡
花费 / 20万
坐标 / 上海
住友 @Analeigh_Huang 家的结构,配色和软装全部由自己一手操办,对她而言,风格和实用同等重要。所以在装修之前,Analeigh_Huang列出了几个核心诉求。


首先是风格方面,她很喜欢黄铜与大理石的组合;而在实用性方面,她希望储物空间足够大,有浴缸,有投影。当找到了核心问题后,设计空间就会有的放矢,更不会出现风格跑偏的失误。较后呈现出来的效果,也非常接近她理想中的样子。
6./
千百个小户型收纳妙招
都没有她自创的办法有效
住友 / Rei_twinkle
面积 / 40㎡
花费 / 15万
坐标 / 上海

住友@Rei_twinkle 是独立品牌 twinkle 的主理人,她与建筑师先生大肉住在一个由他们自己设计与施工的小公寓中,仅仅 40 平方米,但却毫不局促。这个公寓有这些特点——每个空间都有多而不同的收纳妙招,甚至将隔断墙都以储物柜代替;基本没有颜色,以透彻的灰白为主;数不清的设计师家居单品或玩具等等。


乍看之下这个公寓应该被贴上「性冷淡」的标签,但事实上,它的实用性与流露出的生活气却一点都不差,克制的灰白之间全是主人个性与温度。
7./
昏暗小户型的隔断利器:透明玻璃门
住友 / matt琛-路塔路塔工作室
面积 / 41㎡
花费 / 21万
坐标 / 北京

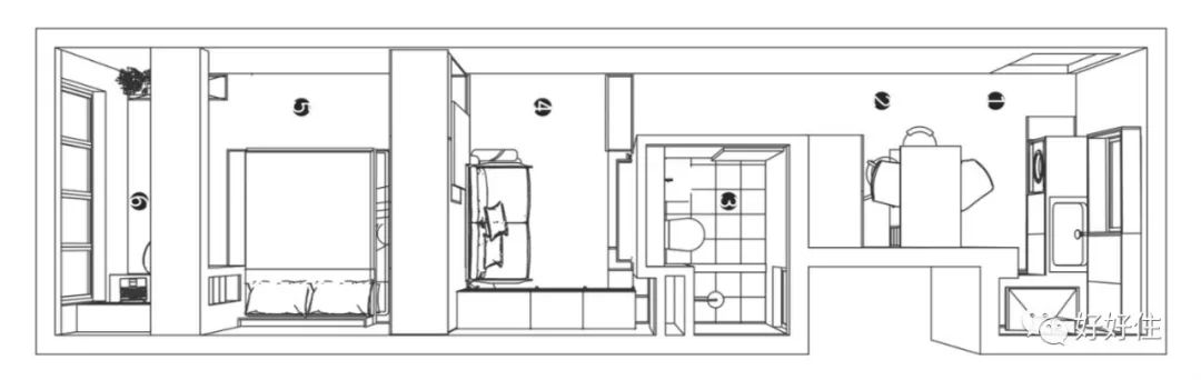
下面这个要为大家介绍的家是一个41㎡的小户型。不仅单面采光,而且原本是办公用地,没有基本的居住结构。如何分隔空间,并且空间内的采光不受影响,着实把屋主给难住了。

屋主找到设计师@matt琛-路塔路塔工作室 来帮她设计新家,希望解决这些问题。设计师没有用传统的砖墙来划分各个空间,而是用「玻璃」做墙。玻璃砖分隔出卫生间,玻璃推拉门分隔出卧室。并且用蓝色墙漆区分活动空间。
8./
「乱中有序」比「空无一物」
更适合小户型
住友 / SnowFong
面积 / 42㎡
花费 / 18万
坐标 / 北京

住友 @SnowFong 是美致设计里的改造玄关大神,她家入门后的小窄道上,前有宜家推车,后有宜家大鞋柜——推车下层放常穿的外出鞋和拖鞋,上层有有钥匙剪刀等日常用品;宜家大鞋柜顶上有放挎包的铁艺收纳筐和挂帽子的挂钩,还有花瓶、照片、香氛等装饰。


大鞋柜里除了鞋子,也用透明收纳盒放置其他衣服配件。这样的她家,可以说是「乱中有序」了。
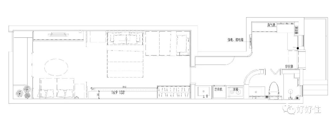
9./ 43㎡的家怎样做步入衣帽间?
看他如何把储物较大化
住友 / 陈大为室内设计
面积 / 43 ㎡
花费 / 23 万
坐标 / 北京

小户型的储物收纳一向是好好住里讨论度较高的话题。如何将储物较大化,又能够让日常活动的起居动线不受影响,是很多住友较头疼的问题。设计师就对于这一问题做出了优质回答。在原始单层只有43㎡的小户型里,他使用柜体替代墙体,用柜体的围合划分空间,既减少了墙体面积,又增加了储物功能。柜体全部使用白色,减少了体积感,让房间看起来更加明亮通透。


小空间的硬伤,被无所不在的柜体化解。节省出来的空间,不仅满足了孩子专用的阅读游戏间,还为女主人打造了一个迷你步入式衣帽间,真正做到了空间较大化!
10./ 57㎡小户型也能有大岛台
他家空间一丁点也没浪费!
住友 / 吴粉丝
面积 / 57㎡
花费 / 19 万
坐标 / 北京

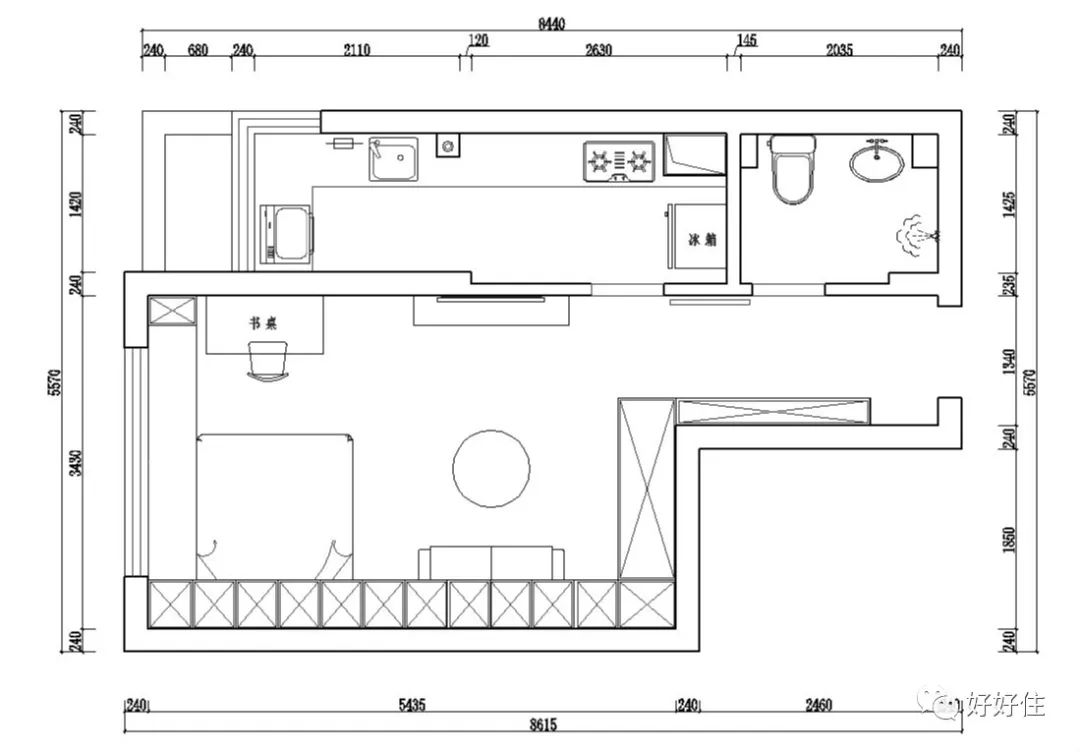
住友 @吴粉丝,和妻子土土两年前买下了北京一套57平米的小户型一居室。虽然房子在购入时就已经有了简单的装修,但和别的小户型一样,他们的家也面临着户型不合理,储物收纳,家居布局等难题。
面对这些问题,吴粉丝和土土决定重新把房子进行装修设计。不仅从户型上优化了家里的储物空间,还在本来就不大的空间里打造了一个功能齐全的开放式厨房及岛台。现在的吴粉丝家,虽然装修并不复杂,却处处都透着他们对空间利用的小巧思。
声明:本文由入驻焦点开放平台的作者撰写,除焦点官方账号外,观点仅代表作者本人,不代表焦点立场。
