总价200万起步,直接上车三居首置红盘,得房率100%+ |一房一价查询
扫描到手机,新闻随时看
扫一扫,用手机看文章
更加方便分享给朋友
9月28日,由北京住总集团祥业公司打造的住总·青年ONE项目盛大开盘,首期推售房源劲销207套!据说现场多次加推,非常火爆。今天咱们就来盘盘这个盘!
【土拍】
24年3月15日,北京顺义新城第31街区SY00-3101- 0808、SY00-3101-0809地块R2二类居住用地、A334托幼用地土拍。仅有北京住总一家房企报价,最终该地块由北京住总以6.2亿元底价摘得,住宅楼面价约1.61万元/平方米。
【区位】
地块位于东北六环外4.8公里,潮白河东侧,顺义区南彩镇,距离地铁15号线俸伯站约400米。
【规划】
“青年ONE”建设用地面积3.06万平方米,规划建筑规模4.28万平方米,包括住宅与配建托幼,容积率为1.5。住宅销售指导价4.5万元/平方米。产品涵盖72㎡、89㎡、105㎡灵活温馨2+1室和宽敞四居精装户型,其中72平米户型分布在3#、7#和11#楼;89平米户型分布在1#、2#、4#、8#、10#楼;105平米户型分布在5#、6#、9#楼。
共计11栋9-11层住宅, 444套房源均朝正南方向。
【配套】
商业:新世界百货、顺义华联金街购物中心、山姆会员店、祥云小镇等
医疗:顺义区医院、北京儿童医院顺义妇儿医院、文昌中医医院等
教育:配建约3000㎡幼儿园,伯中心小学、牛栏山一中实验小学、皇城根小学顺义分校、顺义三中等优质学校。
生态环境:潮白河森林公园,顺义公园、减河公园、仁和公园、双兴公园等
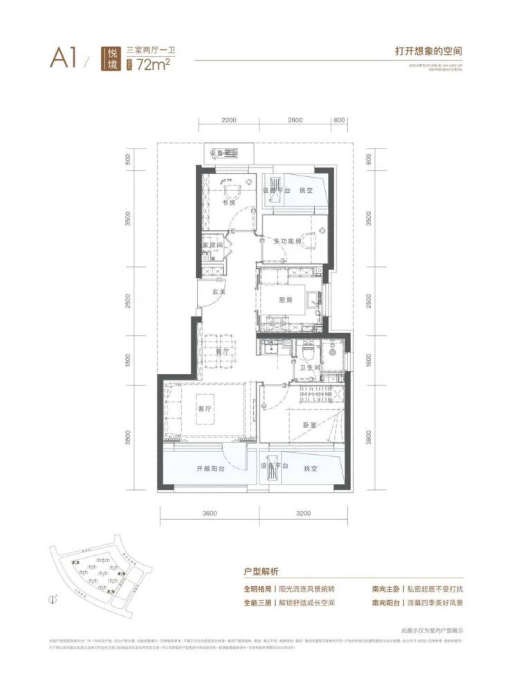
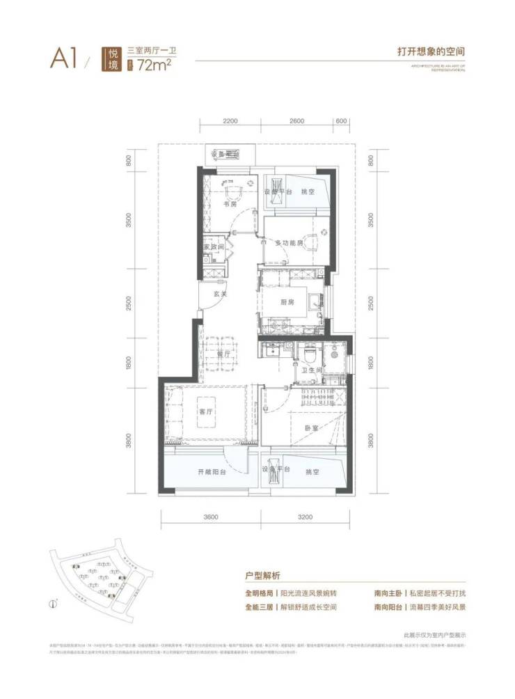
【户型】
72㎡三室两厅一卫:
户型客厅+主卧面宽到达了6.8米,总进深12.4,面宽和进深对比接近2比1,在北侧书房边,还有家政间,U型厨房,卫生间干湿三分离。
南向1个开敞阳台,1个挑空空间,北向1个挑空空间,阳台赠送2.7平,南北挑空赠送8.7平。三处赠送共计11.4米,赠送率15.83%。
89㎡三室两厅两卫:
进深面宽比 1:1,南向三面宽。在北侧书房也可以扩展成一个次卧,采用了U型厨房的设计,在餐厅边还有一个接近3平米的家政间。南向1个开敞阳台,2个挑空,北向1个挑空,阳台赠送2.6平,挑空赠送大概14平左右。四处赠送共计16.6平米,赠送率为18.6%。
105㎡四室两厅两卫:
户型南向三面宽,进深与面宽的比例为1:1.2,整个户型较为方正,布局合理。此外,该户型设有独立的玄关和家政间,增强了私密性和实用性。次卫更是实现了干湿分离的设计,进一步提升了居住的舒适度。南向2个开敞阳台,1个挑空,北向2个挑空,阳台赠送5平,挑空赠送大概15平左右。四处赠送共计20平米。赠送率为19%。
【一房一价】











声明:本文由入驻焦点开放平台的作者撰写,除焦点官方账号外,观点仅代表作者本人,不代表焦点立场。







