入市3个月签约22亿!国社爆款户型魅力爆棚
扫描到手机,新闻随时看
扫一扫,用手机看文章
更加方便分享给朋友
国社的每一次开盘加推,都会吸引全城目光,掀起一波热浪。入市3个月签约22亿,热销超1000套。销量,是市场对国社较直接的认可,能支撑热销的,特别是超硬核的产品力。
买房子这件事,每个人有每个人的观点。无论是看区域、品牌还是配套,较能影响未来居住幸福感的,其实是户型。国社也正是凭借令人惊艳的户型设计,俘获了大批年轻人的心。
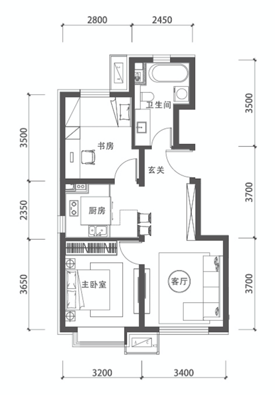
镇社宝藏户型之建面约70平WOW HOME

金茂北京国际社区建面约70平户型图
逆天的空间利用率是这个户型较大的爆点,建面约70平米却给人一种超越小户型的空间感受,丝毫不会觉得拥挤。
金茂北京国际社区70样板间实景图
南向约3.4米大面宽客厅,年轻人中意的开放式厨房,餐客一体设计,有效地放大空间纵深感。生日派对、亲人聚会、好友轰趴都不再话下,小户型也有大担当。

金茂北京国际社区70样板间开放式厨房实景图
还有一个让人惊叹的设计,那就是约8平米超大全明卫浴,圆了年轻人的浴缸梦。超大洗漱台,早上洗漱化妆一步到位。而且全明卫生间,采光通风不容易滋生细菌,更健康舒心。
金茂北京国际社区70样板间实景图
南向主卧带飘窗,不仅可以扩大空间的尺度感,还是可以凭兴趣打造的功能区。猫咪们的小窝、家里的读书角、练吉他、喝茶、或者收纳,1㎡当10㎡用不是梦!
金茂北京国际社区70样板间卧室实景图
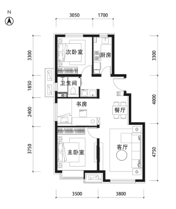
镇社宝藏户型之建面约89平三室两厅

金茂北京国际社区建面约89平户型图
看完了爆款户型,有的人会担心说,两个人住着还挺好但将来有了孩子不够住怎么办?国社当然也想到啦,建面约89㎡三室两厅,英年早婚青年专属!
约3.8米宽的阳光客厅,完全可以容纳各种生活场景。大大的落地窗,给予生活更多自由呼吸的空间,无论宅家多长时间,都不会觉得厌倦。

金茂北京国际社区89平样板间实景图
对于两口之家,紧挨主卧的这个房间,特别适合做成一个浮夸的步入式衣帽间。而三口之家,用来做儿童房也是妥妥的,就在主卧旁边,晚上小孩也能得到更好的照顾。

金茂北京国际社区89平样板间实景图
每个只有一个卫生间的家庭,每个工作日的早晨都是一场兵荒马乱。所以我们设计成三分式卫生间,将日常洗漱、洗澡、厕所分隔开,三种功能相对独立、互不干扰的。美好的一天从高效的清晨开始。

金茂北京国际社区建面约89平样板间实景图
如果说(建面约)70平样板间是浪漫的理想主义,那(建面约)89平样板间便是精巧的实用主义,没有好坏之分,选择适合自己的就好~无论是70平还是89平(建面约)统统都是全精装,从听觉、视觉、呼吸和体感这4种知觉,分别对应专门技术来关照年轻人的生活。
对应听觉,有外窗隔音系统,营造安静的居住环境;对应视觉,客厅、主卧有智能灯光场景模式;对应呼吸,户式新风系统有效过滤PM 2.5,增加室内的新鲜空气(这部分仅在后期推售的大户型中实现,其实顺义的空气和水质都很好,这一系统更多价值在于锦上添花);
对应体感,屋内温度调控系统,包括地暖、户式中央空调以及24小时无忧热水。并且还配备了同层排水的黑科技,更静音更洁净。
隔层排水
vs同层排水(图片来自网络)
刚需不等于低品质,金茂北京国际社区选用的是中国金茂悦系品牌库,像摩恩的水龙头、吉博力的马桶、方太抽油烟机、欧派的橱柜等,超配成本投入,给年轻人更体面的、更美好的、更舒心的生活。选择金茂北京国际社区,不只是能够上车北京,更是上车金茂品质住宅!
金茂北京国际社区效果图
总价190万/套起金茂精装两居,热卖实力派。建面约70-89㎡精装智宅,二期热销中!公交专线对接15号线地铁,体育公园和共享空间现已开放,网红盘席位分秒递减,1256个小伙伴都爱的金茂家,快来pick属于你的金茂爆款家吧!
项目红线外体育公园现已开放,具体用途及安排请以政府规划为准,敬请留意较新资料。本资料仅为要约邀请,不构成本公司对广告相应内容的要约或承诺,买卖双方权利义务以《商品房买卖合同》约定为准。本资料所示样板间为装饰装修风格,除公示的交付标准外,实际交付标准以买卖双方签订的《商品房买卖合同》及其附件为准。较终解释权归开发商所有。预售证号:京房售证字(2020)19号。京房售证字(2020)68号。开发商:北京城茂房地产开发有限公司。中国金茂全国客户服务监督热线:4001-817-817。销售代理公司:北京中原房地产经纪有限公司。发布日期为2020.7.1
声明:本文由入驻焦点开放平台的作者撰写,除焦点官方账号外,观点仅代表作者本人,不代表焦点立场。







