三环新房价格倒挂!门槛或不到120万
扫描到手机,新闻随时看
扫一扫,用手机看文章
更加方便分享给朋友

北京五环新房已经不够看了,
因为三环不仅出了刚需刚改户型,均价还开始倒挂了!
以前看广告总觉得三环这个位置「不能被辜负」,怎么着都得整个「城市封面」出来,户型面积150平起步,不豪都对不起三环?现在好了,
都老实了。
99平起步,主打一个实用。
价格也不飘了,据说3.7环的丰台岳各庄,楼面价5万/平,这次售价预计7.5-8.5万/平,
怎么理解这个价格呢?
隔壁熙华台楼面价5.28万/㎡,网签均价8.15万/㎡,相比
4.8环的海淀宝山均价8.5万/平。一万的差价,给了书包资源,见仁见智。
项目近日公布案名,网传「嘉棠璟樾」
户型面积段99-176平,预计本月底开放售楼处,年底就开盘!
此外这个项目配套咋样呢?
01 西三环-四环的“熟地”
岳各庄位于西三、四环之间,具体位置在西三环约2公里,西四环约1公里。
项目规模不大,占地面积约2.18万平,地上建筑规模5.8万平,容积率2.66,控高60米(局部80米),绿化率30%,预计就400来户。
这一区域最大的优势是配套成熟,堪称“熟地”。
商业方面,北侧一路之隔是千禧商业街,附近还有永辉超市、翠微百货和华熙五棵松;医疗资源,直线700多米就是三甲医院解放军总院第五医学中心(302医院),301医院也在2公里内;学校有丰台靛厂小学、北京第十中学等,都在1公里范围内;公园有岳各庄城市森林公园、万丰公园,不远处还有莲花池公园。
交通上,地块位于岳各庄东路西侧,上西三环非常方便,10公里内可达金融街、丽泽、中关村、总部基地等核心区域。
目前主要的短板是地铁——距离现有的10号线和9号线交汇的六里桥站约1.8公里,步行稍远。
但规划中的11号线二期青塔站距离地块仅800米,这个距离就比较理想了,当然需要耐心等待规划落地。目前消息,地铁11号线二期已经开始环评,目前基本定在靛场路和西四环的交叉口。
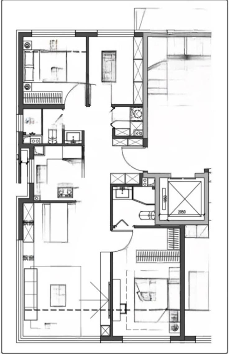
02 得房率超90%
岳各庄项目户型面积段已确定:99平、116平、136平、155平、176平,
涵盖三至四居,明显偏向改善型产品。
建面约99平户型预计为两面宽,其他户型均为三面宽。整个项目预计有400多套房源,样板间听说做4个户型展示。
99平户型目前曝光了草图版本,跟大家分享一下,最后还是以开发商公示版本为准吧,这个版本没有标尺,但是看得出阳台送了将近四分之一,西侧飘窗也送了一排,感兴趣的朋友可以扫码加小助理,蹲一个标尺版本。
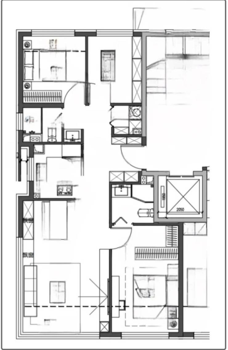
百平以上户型设计,可以说是熙华台的升级版2.0。
首先户型尺度比熙华台更大,赶上“好房子”风口,增加了配置。特别是加上阳台等赠送面积后,得房率预计超过90%。
116平户型参考了熙华台118平户型,155平户型参考了熙华台154平户型,但都在原有基础上进行了优化升级。
给大家拿熙华台户型图参考下:
154㎡户型参考
03 “血色”丰台
丰台库存高企,去化缓慢众所周知,
互联网上更是“战绩可查”,其中最耸人的“破发”案例要数「分钟数三兄弟」,
据传当年开盘与海淀的圆明天颂同处12.5万起跑线,如今后者二手房价16万+,而分钟寺单价却已击穿8万。
我去查了真实的情况,可能没有传言那么夸张,
当年三兄弟的网签均价基本在10万+,如今暂未查到成交价,但是挂牌最低价格确实有7万+的,平均挂牌价基本也在10万附近,
所以确实降了,但是不能用审批的最高价(12万)和挂牌最低价(7万)对比,有失公允。
观察丰台改善盘去化情况,
最核心的筹码,其实就是紧邻西城或海淀的区位,
主打「抱大腿」
像西四环几个新盘,如熙华台,即便紧邻铁轨也能快速清盘,凭的就是“海淀”二字的光环。
而大瓦窑的两个项目,主打“丽泽概念”却效果不佳,即便单价探至6万依然遇冷。根源就在于,丽泽尚且自顾不暇,其价值也需依附西城。同理,万泉寺和冷库项目名称带“丽”,却未能真正受益。
唯一例外的是南四环边的建发·观宸,凭借顶尖产品力与市场口碑杀出重围。但细究其保值逻辑,19号线直抵金融街的“西城链接”仍是关键。不过二期能否复制成功,也尚待观察。
所以,岳各庄项目最大优势,在于与海淀仅一公里之隔,仅凭“近海淀”这一点,就足以支撑其热销预期。
且岳各庄拿地楼面价仅5万元/平,比两年前的熙华台5.28万/平更低,周边城市界面比熙华台更好,也没有熙华台紧邻铁路的硬伤。
目前风放价是7.5万起,最低价对比2023年已经倒挂了,如果均价控制下8万以内,那妥妥性价比到位了,毕竟熙华台均价8.1/平。
要抱紧海淀西城大腿,要价格合理,产品也得符合市场需求。
毕竟丰台的竞争激烈程度是全北京都排的上号的。
板块的上游对手有中海丽金府、中海丽泽叁號院,
正面对手有北京隅西颂、中建云境、建发观宸,
下游还有京能西贤府、和颂九里、森与天成等项目。
目前丰台市场库存量大,明年还有大量土地待出让……
嘉棠璟樾 区位上有三环概念加持,抱紧海淀大腿,但公共交通暂时不够便利,对偏刚需客户来说户型两面宽产品和轨道交通是抗性;但是一味讨好高端客群,又面临中端市场红海竞争。
而且嘉棠璟樾地块太小,很难展开把园林做出花,而且旁边还有一宗地待售,02地块更大,未来背刺可能很大。

目前看,还是「价格定生死」的路子,项目只有抱紧海淀大腿,走改善性价比的路子,没准能杀出一条血路。
声明:本文由入驻焦点开放平台的作者撰写,除焦点官方账号外,观点仅代表作者本人,不代表焦点立场。







