北五环临铁“双子座”上新!两个新房均价相差千元,买谁?
扫描到手机,新闻随时看
扫一扫,用手机看文章
更加方便分享给朋友



红色是项目位置,蓝色是附近新房

图中左侧圆点是北清云际,右侧是奥森春晓
不仅如此,就规划看,这两个项目还在生命科学园街区,北侧是国家下大力气打造的全球先进“生命谷”。

综上你会发现,西侧的北清云际 被生命科学园环保,东侧的奥森春晓 更靠近地铁站和北清路。
奥森春晓 位于马连店家园北侧,西侧是流星花园三期,东侧是新二手商品房项目公园悦府,北侧为在整治中的城中村,距离北清路很近。
东有未来科学城,西有生命科学园。奥森春晓又占位北清路沿线约700米的位置,可辐射两大生命科技产业大园区,如此一来,想象空间就大了。
北清云际位于二拨子新村北侧,东临龙城花园的老别墅项目,北侧是二拨子工业园,西侧隔着京新高速就是永丰产业园区,不过东西两条高速,噪音是个需要考虑的问题。
这个位置更靠近生命科学园,产业很高端,未来居住环境应该还可以。而且还有一点需要注意的,西侧的项目也更靠近海淀,中关村产业园的一众码农应该会喜欢。
项目距离周边最近的地铁站也有1.3公里,未来13号线拆分,建材东站似乎也不近,不过好在公交车不少。
都说到公交地铁了,这俩项目的配套赶紧来看看,其实挨这么近,也没啥好PK的了,都能共享。
PK一下交通吧
奥森春晓:妥妥的地铁盘,距离地铁8号线平西府站直线距离仅400米。此外,临近北青路,与京藏高速、京新高速相连,惠南北路和京藏高速相连,与北五环快速相连,开车30分钟也完全可以到达海淀中关村。
北青云际:距离最近的地铁站生命科学园站直线距离约1.2公里,公路方面,北清路快速连接京新高速,京藏高速,半小时通达海淀。

两个项目到生命科学园、中关村软件园距离都很近,堪称码农通勤之光。到望京、国贸地铁通勤也很方便,不过时间在1~1个半小时左右,毕竟距离有那——么远。
商业
商场不少,可逛可吃可玩乐。
值得一提的是,北青云际将自带2100㎡下沉式商业配套,北边规划有中粮大悦城。
同时,中关村生命科学园还规划有合生汇购物中心和太古里商街,至于什么时候能兑现,咱们再等等。

医疗
板块内医疗资源一般,附近有多家综合医院,可以满足日常看病需求。缺少三甲医院,需要借助其他板块。

教育
奥森春晓:周边有清华大学附属中学昌平悦府校区小学部、首都师范大学附属回龙观育新学校、中关村外国语学校、人大附中昌平学校等学府等。
北青云际:项目自建6500平18班幼儿园,南侧紧邻回龙观中心小学;周边有首都师范大学附属育新学院小学中学、南侧161中学回龙观分校、华北电力大学附属中学、北京市中关村外国语学校。
PS:最终能上哪个学校需要等教委划片,以上内容仅供参考
奥森春晓,户型有93平、110平、118平三居,133平四居,约624套房源,销售指导价6.3万/㎡,预计总价580万起。
奥森春晓楼层24-27层,总共6栋,东南角有两栋公租房,全部是2梯4户的设计。

据项目透漏,还有一些67平左右的变异户型,这样总价就拉倒422万左右了。
再回到上图,据哥们了解,项目93平左右的户型在中间,边户是133平、118平的,另外,93平户型北侧有连廊,介意的朋友可以重点关注一下,毕竟近些年,连廊的设计也在改进,现在玻璃质地的也不少,平时不开隐私也还可以。
目前官方公布了93-133平户型图,血拼哥给大家看看建面约93平和110平的吧。


戳此看大图



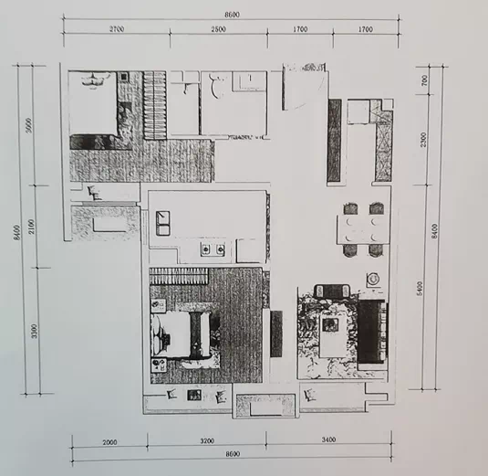
81平两居纯南朝向,南北通透,客厅和主卧面宽都很可以。


93平三居设计也不错,南北通过,南向三面宽,没辜负这块地。
总结产品看,北清云际的户型更好一些
北清云际占生命科学园两宗地块,地块距离较远,中间含有基础教育用地、幼托用地和绿化用地。社区自带2100㎡下沉式商业配套,自建6500平18班幼儿园。
最后咱们再聊聊这俩项目周边二手房吧,俩项目其实属于回龙观的二手房板块,均价5.2万左右,不过奥森春晓附近有次新房能选,北清云际附近基本都是楼龄几十年的老房子,对新房的需求应该不少。
这俩项目其实房源不多,加起来也就一千五百多户,关键都是中交和先进联合拿地,只是操刀主体不同,所以人家怎么卖,钱都是一起赚,不会出现内卷。
这个价格,大家还是按需评估吧。售楼处都开了,周末不妨去转下,拿着哥们给你捋的信息,有侧重的了解,希望能帮到你。
声明:本文由入驻焦点开放平台的作者撰写,除焦点官方账号外,观点仅代表作者本人,不代表焦点立场。







