暴改再升级!350㎡简欧大别墅,这才是京城较美大宅!
扫描到手机,新闻随时看
扫一扫,用手机看文章
更加方便分享给朋友

谁说房子大就不用拆改布局了
今天小编要跟爸爸们分享的是
350㎡的3层简欧大别墅
动线流畅/分区明显/动静皆宜
这才是较美的大宅案例!
欢迎各位金主爸爸投稿
户型解析 / 风格建议 / 动线规划 / 家居风水
专业资深设计师每周五准时问诊
本月宅姐

高颜值美宅设计专家,擅长利用各种美学手法,软装搭配方案,打造超高颜值美宅,各种“问题房屋”经过她的花式暴改,都是宜居美宅。
孟雪娇
实创家装首席室内设计
预约设计师孟雪娇/投稿专栏
享受设计费满3000元立减1000元优惠
「每周仅限3户」
户型信息
小区名称:北京香山艺墅
建筑面积:350㎡
房屋信息:4室3厅1厨4卫(3层)
风格建议:简约欧式

装修需求

品质/舒适/功能/扩容/颜值
户型点评

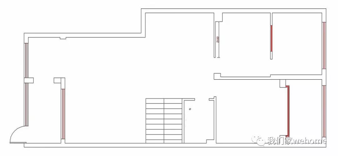
▲原始户型图-1层
▲原始户型图-2层

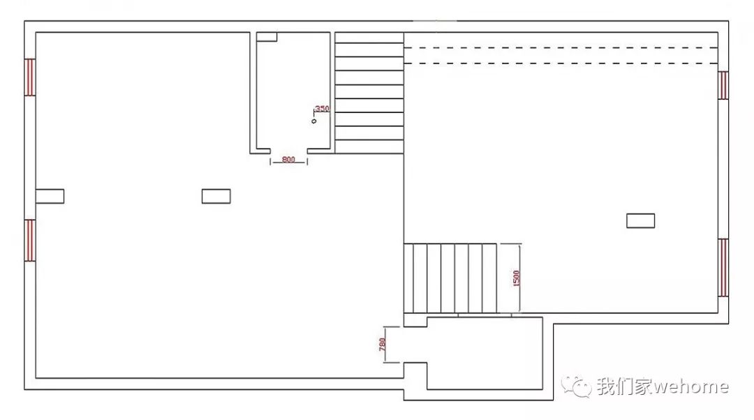
▲原始户型图-地下室

户型优点

户型格局:户型方正完整,格局通透。
空间分配:空间配置合理,面积适中。
改造潜力:空间开阔,改造潜力较大。

户型缺点

格局缺陷:承重墙较多,空间拆改受限。
空间缺陷:空间功能规划不清晰,需后期改造。
功能缺陷:功能分区动线较拥挤。
收纳死角:整体缺少储物空间,无法满足收纳。
空间延展:空间功能无法满足屋主居住需求。
设计建议

设计理念

通过对家居空间的整体把控,优化动线,进行功能分区与整合。让房屋满足屋主的居住需求,在保证功能的前提下,加大储物的同时,增加娱乐设施项目,为生活增添情趣。

风格色彩

简约 欧式
配色指南:奶茶白/暖黄色/香槟金/牛皮棕

1层改造建议

1层主要功能定位为会客+休闲,配备厨房+卫生间+餐厅+客厅+客房,方便招待朋友,休闲娱乐,满足屋主聚会需求。
▲1层平面布置图
门厅+玄关:进门设计门厅+玄关,让整个房子更有仪式感,动线流畅不拥挤,玄关配置衣帽柜加大储物,门厅进行造景,提升整体家居的品质感。
客厅:客厅面积充足,有足够的空间可以进行舒适度的改造。
餐厅+休闲区:餐厅采用圆桌式设计,能够容纳更多家庭成员同时用餐,多口家庭较适合的餐桌形式,搭配整面定制餐边柜,收纳的同时,起到了强大的展示作用。
厨房:厨房采用封闭式,围合的动线让烹饪更加舒适,符合人体工程学设计,操作动线行云流水。
卧室+卫生间+阳台:既分隔又相连的3个区域,可以形成独立的客卧空间,阳台可以晾晒衣服,休闲阳台让卧室更加通透,舒适感增强。

▲门厅效果图

▲餐厅效果图

2层改造建议

2层主要功能定位为满足屋主日常起居,为不同的家庭成员打造不同风格的舒适入眠环境,每个卧室都匹配卫生间,功能齐全。
▲2层平面布置图
书房+卧室:屋主的卧室设计,配备了独立卫生间及书房,超大面积的书房藏书量惊人,安静舒适,方便阅读与日常加班。
卧室+地台:儿童房的设计,考虑到孩子的成长需求,增加地台设计,一个空间多种利用,既可以是阅读区也可以是玩耍区,同时还增加了储物功能,地台也可以睡临时来家做客的小朋友。
卧室+阳台:老人房的设计,配备了功能性阳台,阳台打造阳台柜增加储物的同时,放植物架造景,满足老人养花草,喜欢晒太阳的生活习惯。
卫生间:将原本的大卫生间一分为二,分别分配给2个卧室使用,让每个卧室都配有独立的卫生间,家人之间互不干扰,提升生活品质,保护隐私性。

▲卧室效果图

地下室改造

地下室的改造分为两个功能区:客卧区+休闲区,客卧区的2间客房,可满足临时过来聚会的朋友居住,或日常的保姆房,休闲区配备影音室+吧台,让生活更有品质,大面积的储物间满足收纳。

▲地下室平面布置图
卧室:卧室的设计简约简洁,主要功能为保姆房/客房,满足居住需求即可。
卫生间:干湿分离设计,干区主要有收纳和盥洗功能。
影音室+吧台:地下室较大的区域留给休闲区,影音室的设计方便全家看电影放松心情,吧台方便调酒及制作简餐与水果,增加整体空间的功能与实用性。
储物间:封闭式储物间,扩大储物功能,让地下室的功能性更强。

▲影音室效果图
认真侃户型,专业搞装修
不出设计图,偶尔看风水
欢迎各位金主爸爸投稿“聊宅”专栏
享受专属设计费1000元优惠
YOUNG板房 新品排名前列
精装修+氧吧+定制厨柜+网红主材+优质服务
新品排名前列 999元/㎡
签单立减 300元/㎡
氧吧→健身柜 送2000元健身柜
有样→定制厨柜 趋E0级进口板材
时尚→主材 黑色开关/把手/灯筒
颜值→高颜主材 网红方砖/六边形瓷砖/唯宝洁具
新品排名前列 限时限量699元/㎡

↓
阅读原文,领微信报名优惠
声明:本文由入驻焦点开放平台的作者撰写,除焦点官方账号外,观点仅代表作者本人,不代表焦点立场。







