门口就是6号线!65平极致两居首付最低35%拿下!户型图曝光!
扫描到手机,新闻随时看
扫一扫,用手机看文章
更加方便分享给朋友


哈喽大家好,我是血拼哥。
随着地产行业的越来越卷,房地产销售也越来越困难,对于开发商来说也是考验。
而当下目前北京市场较为活跃的开发商,大多都是央企国企。
虽然也有以“产品力”表现突出的,但总是缺乏“审美”、“生活”、“服务”等其他方面的精造。
这就造成了,一旦有情怀的开发商拿地,“会讲故事”+“产品硬实力”,就会把其他新房打的措手不及。
时隔四年,最近万科·东庐样板间已经开放了,几乎得到了业内与消费者的一致好评。
血拼哥也带大家见识下!
01/
低密社区
今年8月份,招商、首开、城建、中海、华润、中建玖合(二局)、万科等7家房企参与竞拍,最终万科以27.4亿竞得通州永顺6004、6005地块,规模约7.44万平米。
案名定为:「万科·东庐 」
地块位于通州永顺镇物资学院西侧,南侧就是6月刚开盘的国誉朝华。
临近地铁6号线物资学院站约800米,25分钟可直通首都机场。
项目一共规划25栋住宅楼,总层高7-11层,整体限高36米,楼间距40米左右;而托幼用地整体限高16米,规划了12班的幼儿园。
销售指导价为6.5万元/平
小道消息称,实际成交均价预计在6.2万左右,参考隔壁的国誉朝华,指导价同样也是6.5万/平,但实际成交均价在5.8万/平。
02/
小户型普宅
万科·东庐户型面积段为约65-120㎡二至四居,产品分别为65、73平两居,89、95、98平三居,120平四居。
其实就户型设计来看,就已经秒杀很多其他开发商了。
首先,户型分布上可以观察到,基本只稍稍牺牲了小户型的采光,但都保证了一面的通透,大部分户型采光是毫无问题的。
其次,在户型设计阶段就已经都标配开放式厨房,这在北京目前市场上很少见。
接着,万科已经将收纳体系做到满分,在户型规划上就已经将每个空间利用到极致。
最后,品牌背书摆在这里,后续的物业服务也基本上是住宅领域top级水平的。
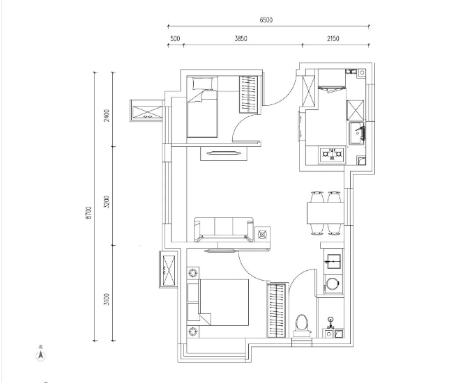
65平两居,门槛户型中规中矩,部分是东西朝向,适合想急于上车的小家庭。
这些小户型卖的非常快,房源不多,还是普宅。

73平两居,南向两面宽,餐客厨一体。
北侧儿童房可做家庭的灵动空间,开放式厨房采用L型设计,与餐厅客厅形成完整的动线。
南向两个飘窗不浪费每一寸空间,不足之处就是卫生间是暗卫。

89平三居,南向两面宽,户型设计中规中矩。
南向主卧配置干湿分离的卫生间和飘窗,北向卧室和次卫也能形成一个小套间,让多代同堂的家庭互不打扰。
两个北次卧也可以打通,延展更多生活的可能性,无面积浪费。

95平三居,南向三面宽,南北通透,经典的四叶草布局(需要注意,与过程稿不同)。
主卧套间设计配置干湿分离卫生间,而且明卫。整个空间动线上不算流畅,好在每个卧室采光都不错。
且配了独立的家政空间,能满足大部分家庭的需求。

另外一种95平户型,第三个卧室儿童房的开窗有所改动,设在侧面,其余与上面户型设计理念一致。
如果预算控制在600多万,可以考虑考虑万科·东庐的95平米三居户型。

120平四居,户型是最方正的,空间布局也更合理。
挑不出什么毛病,独立入户玄关、双卫生间都是明卫,户型的舒适度满分。
按照指导价6.5万元/平米计算,120平米户型总价在780万左右。

03/
能否为情怀买单?
万科拿下这块地时,外界的评论就褒贬不一,毕竟也是直接面对面和竞品打架。
稍不注意,两个新盘优惠力度不一样,最后就是谁便宜买谁。
可是,万科东庐样板间开放后,不少人真的开始期待这个项目了。
毕竟,户型做的完美+不错的开发商+不错的周边配套,基本没任何硬伤,稳稳能跟上大盘。
在商业方面,周边有常营龙湖天街、北投爱琴海、华联超市、万达广场(通州店)、朝阳大悦城。
在医疗配套方面,有首医大附属北京友谊医院(通州院区)、首医大附属北京胸科医院、首都医科大学附属北京潞河医院、解放军总医院京东医疗区等。
在教育方面,周边有北京物资学院、北京市新教育实验学校、永顺小学、北京小学、西马庄小学、师范中学等,教育资源丰厚。
在生态方面,周边三公里范围内有温榆河滨河森林公园北区、常营体育公园、五里桥公园、永顺城市公园等。

地块南侧就是北京城建·国誉朝华,产品面积段为65-115平二至四居,按照销售指导价6.5万元/平计算,总价约为390-748万。
周边二手房市场庞大,且价格压的很低,普遍均价4-5w,最低能到均价3w+,竞争环境很卷。
结论还是和上次测评结果差不多,万科东庐对首置、预算不是很高的人群也比较友好。
小户型(65/73)闭眼冲;大户型(89/95),建议再等等,改善户型(120)要抢。
目前万科东庐处于预约排卡登记中,预计下月中旬开盘。
声明:本文由入驻焦点开放平台的作者撰写,除焦点官方账号外,观点仅代表作者本人,不代表焦点立场。







