孙晋昌家居展厅系列:175平米CIVRO希洛系统门窗展厅,演绎德系工艺理性与匠心
扫描到手机,新闻随时看
扫一扫,用手机看文章
更加方便分享给朋友
门窗系统,不只是满足于通风采光的基础功能,更被赋予了心灵寄托、文明的沉淀,拉近了人与自然的距离。此次,中国著名家居展厅设计师,江苏见素·己禾原素家居展厅设计总设计师孙晋昌通过兼具理性和感性的空间设计语言,为大家呈现了一台时尚有品位的系统门窗展,将专业性、趣味性、知识性渗透到175平米的展厅当中,让人们在设计师引领下,深入感知到一个德系工艺与系统门窗相结合的品牌——CIVRO希洛系统门窗。
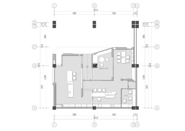
对比改造前后的展厅平面图,设计师无论从空间布局还是整体路径规划方面都做了很大的调整。多变的造型,共享的空间和新奇有序的观赏路径,全方位展示了希洛门窗系统的与众不同。设计师在仅仅175平米中,便巧妙的设计了三个展示区、一个装置区和一个独立的办公区,创造了一个全新的、与商业效率和自然文化对话的品牌环境,令人难以忘怀。
我们把一粒水放到一个碗里。那么。你找不到那粒水?但是如果我们把一粒颜料放到碗里,就可以把水染成你想要的色彩。整个展厅的背景色的选取,来自希洛企业经典的红黑配色,设计师孙晋昌将它作为原点去发散做成整个展厅的背景色,不仅令人印象深刻,又代表着CIVRO希洛独有的品牌调性,远远望去,醒目而高贵,指引着大家走进一个全新的世界。
透过橱窗展示,每个区域的布局设计呈现出与众不同的时尚感和既视感,让人充满期待和向往。走进CIVRO希洛系统门窗展厅,首先映入眼帘的便是门窗剖面展示,迅速让人感受到德系工艺的理性与匠心,精心设计的迷宫式路径超乎人们对展厅的常规想象,似乎让人置身于门窗的剖面当中游走,让每个人都想不断探索CIVRO希洛展厅每个角落。
为满足产品较大优势的呈现及专业化空间尺度的视觉感官,设计师专门以门窗剖面的亚克力灯作为艺术装置进行场景氛围的渲染,在封闭的空间来进行展示,设计师别出心裁的表现手法,呈现出一个神秘感和炫酷的品牌形象,表达出企业专业展厅的品味以及韵味。
系统门窗是一个配套项目,它的精髓在于将节能环保、以及型材玻璃配件的巧妙选择和精准组装实现和谐统一。设计师将这些精髓进行特质化拆分展示,并特别构思出一系列的视觉情景,通过冷色调的灯光,将门窗工业化的美学,通过技术、灯光和情景展现出来,搭配精简的设计把人的记忆不断的召唤到CIVRO希洛系统门窗是关注于技术、机械、工艺的空间场域里。
步入展厅排名前列个多功能洽谈区,设计者力求构筑空间几何科技感,富于动感和想象,镭射灯、镂空、几何线条,让人们感受到的是一种既协调又不觉得压抑的视觉效果。结合品牌风格,透过不同的材质和色彩,创造出和谐的空间比例,形塑出空间的艺术。
从一定程度上来说,洽谈区设计好可以提升企业的品牌形象,增加来访者对企业的信任感与认同感,还可以提高企业的核心竞争力,增加项目的合作概率。设计师将每个洽谈区,都沿袭着整个展厅科技、时尚、几何的设计风格。不断营造空间重叠和立于其他物件之上而形成的交错感,并以此来强调产品本身的属性,不啰唆、不刻意、不将就,符合现代大众消费的心理。
展厅,尽管它不会说话,但是可以通过各种各样的物料向外界、客户展示品牌实力和感受力。设计师大量应用门窗的组合,既展示CIVRO希洛的技术、工艺实力,同时表达出设计师对时间与空间、人与自然、自我和外界的理解和认知,彰显空间延展与安稳的力量。
无论是洽谈区还是办公区,不管客户在展厅参观的过程中走到哪儿,一直伴随着延展和安稳的视觉感受,这些感受是可以“说话”的,就像无声的导购员为客户默默地介绍产品,优质的诠释出“此处无声胜有声”。
孙晋昌
中国著名家居展厅设计师
江苏见素装饰&己禾原素家居展厅设计总设计师·执行董事·创始合伙人
江苏银雀山战略咨询总经理
中国设计居家艺术周艺术总监
上海国际设计周艺术总监
无锡市室内设计师学会副会长
专业资质
·室内高级建筑师
·中国建筑装饰协会设计委员会委员
·IMOLA瓷砖/VIFA威法/TROTANOY束木/POLIFORM设计顾问
·中国设计空间美学奖导师及评委
·中国设计有新人导师
·老宅新生设计奖/2022IAF锋建筑节城市沙龙/2022金住奖主旨嘉宾
·中国金梁奖国榜设计师
·中国私宅设计行业学会联合发起人
·红星美凯龙整装汇签约设计师/M+TALK讲师
·新浪地产户型设计顾问
·2020中国设计居家艺术周十大原创设计人物
·创新中国十大原创设计师
·IEED国际生态设计联盟年度十大青年设计师
·海峡两岸杰出设计师
·江苏20位杰出青年设计师
荣誉奖项
·德国ICONIC Awards 2022-BEST of BEST(德国标志性奖优质奖)
·第三届日本IDPA AWARD国际先锋设计大奖
·BDA包豪斯现代设计奖金奖
·创新中国-较佳设计作品金奖
·中国国际空间环境艺术设计大赛金、银奖
·台湾《当代设计》年度金琮奖
·筑巢奖别墅工程类银奖
·筑巢奖商业空间二等奖
·江南之韵-室内设计大赛别墅住宅类金、银奖
·IAI亚太室内设计(住宅空间)住宅工程类优秀奖
·I-Ding Award国际设计大奖住宅空间类优秀奖
江苏见素装饰围绕终端用户,整合国内外高端供应链资源,提供生活体验规划、空间逻辑规划、投资管理规划、产品设计规划、软装陈设规划、人文美学规划、家族文化规划等在内的别墅大宅全案整体规划服务。己禾原素家居展厅设计则提供以家居展厅设计为核心业务版块的商业空间整体设计服务。
见素以一体化、场景化、高端化、专业化的技术平台为支撑,为精英仕绅阶层带来全新的生活体验、格调体验和文化体验,引领新东方人文特色的生活方式。
声明:本文由入驻焦点开放平台的作者撰写,除焦点官方账号外,观点仅代表作者本人,不代表焦点立场。







