临铁700米!均价3万?北五环外百余套共有产权房有望入市?!
扫描到手机,新闻随时看
扫一扫,用手机看文章
更加方便分享给朋友


哈喽大家好,我是血拼哥。
今天跟大家说说几个共有产权房的最新消息。
老规矩,后台回复【1月】,查收北京当前待售共有产权房房源情况。

👆🏻戳文章开头蓝色血拼北京楼市可快速跳到后台
No.1临铁700米!昌平百余套现房或转共产房?
最近老粉一直追问的昌平 国瑞熙墅 转共的消息。
血拼哥了解到,目前项目尚未正式转共,还在走流程。最终到底是否成功转为共有产权房,售价多少,产权比例等等一切都尚未可知。
当前可以明确的是,国瑞熙墅 原本是限价房,此前已经开盘,目前剩余尾房100套+,按照政策应该是转共有产权房性质后继续销售。而且项目西南侧1.5公里就是均价3万的未来砚园,如果转共,价格应该会参考……
总之,大家还得再耐心等等。
国瑞熙墅 位于定泗路与岭上西路交汇处东南角,属于昌平未来科学城范围。
项目临近地铁,距离17号线未来科学城站,东区步行1.3公里;教育方面小区南侧就有中关村二小昌平学校,东北侧是北京十一未来城学校(中学);大型商超和医疗资源目前稍显匮乏,要去挤回天板块的资源。

小区分东西两区,中间是别墅区。东区六栋楼,西区两栋,目前得到的消息是东西两区都有待售房源,且一居到三居都有。

周边别墅区较多,二手房均价5-6万/平,国瑞熙墅 家园部分房源已经拿到房本,但是依据政策,正规途径还不能交易,均价4.3万/平左右。
昌平除了这个项目,未来科学城未来砚园还有200套+房源待二申,申购资格不知道会不会有所调整。好消息是,这个项目应该快有消息了,关注昌平的朋友年前年后可以蹲一下。
记得给血拼哥标星⭐️,网申了第一时间喊你!

未来砚园剩余房源两居A户型、低楼层居多。

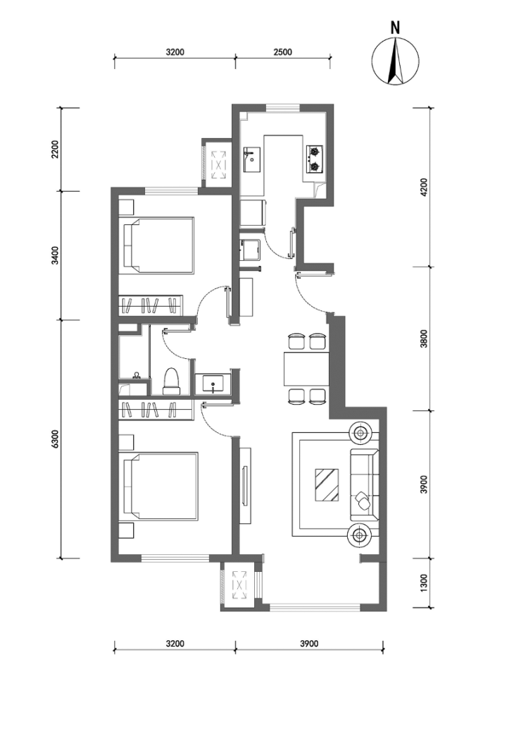
No.2 大兴2224套共产房户型图流出!
大兴魏善庄项目 熙悦新语 户型图流出。
看得出来项目设计的户型以舒适为主,所以并没有像其他项目那样卷多居室,89平做了两居,112平做了三居。
目前血拼哥还没有拿到带标尺的户型图,不过就当前的户型参考看,阳台面积确实不小,户型设计也不输当下热门户型,可以期待一下。




项目价格是2.9万/平,但是小道消息,正在申请下调,咱们也等等看情况,有消息血拼哥会第一时间通知大家!
No.3 首批央产老旧小区改造名单公示
最后说说老旧小区改造的事。
老旧小区,俗称“老破小”,虽然多数楼龄老,但是位置一般都很好,配套齐全,总价低,所以也有很多刚需选择。
但是有些小区老化程度严重,居民生活品质,甚至安全都没有保障,北京近些年针对老旧小区改造力度一再加大。此次更是针对“难啃”的央产老旧小区下手,出了第一批改造名单。
15日,市住建委发布通知,确认了第一批央企在京老旧小区综合整治项目,首批纳入名单的央企老旧小区有70个项目,共234栋楼。
根据通知,为了解决这一问题,相关部门专门成立了央企在京老旧小区综合整治工作联席会,这次的第一批项目名单,就是通过了联席会的审议,纳入了老旧小区改造申请,未来应该还会有更多。
第一批名单中,大部分都是城六区的小区,70个项目中,有68个都位于城六区,其中海淀区最多,有26个项目。郊区中只有昌平和大兴区各有1个项目。
第一批在京央企老旧小区综合整治项目






声明:本文由入驻焦点开放平台的作者撰写,除焦点官方账号外,观点仅代表作者本人,不代表焦点立场。







