焕新朝阳北 立序主城心|星悦时光营销中心及美学空间全城公映!
扫描到手机,新闻随时看
扫一扫,用手机看文章
更加方便分享给朋友
当匠心筑作烙印时代光芒
与万千美好一同而至
城市炽热目光 汇聚于此刻
10月11日 星悦时光营销中心及美学空间
于万众期待中如约盛启
众多嘉宾齐聚 一场关于都市生活美学的理想人居序幕
耀世盛启 共鉴主城心生活新篇章
中芯之上再建中芯 人居封面未开先火
历经时光打磨,万众瞩目的星悦时光营销中心及美学空间开放盛典于10月11日隆重举行,集团领导及北京楼市各大媒体、邀约客户等百余人参加了开放仪式,大咖齐聚,共襄高光时刻。高雅的毕加索版画展和交响乐表演,更是为光影交错的开放盛典增添一道靓丽风景。
与其说本次盛典是星悦时光营销中心及美学空间的开放现场,不如将其称为一场都市人居美学样板的艺术之约。媒体嘉宾在现场轻松愉悦的氛围里,走进美学空间沉浸式品鉴,感受双国匠鼎力精筑的生活美学,现场热议好评不断,嘉宾纷纷表示对项目产品充满信心与期待。
双国匠联袂 刷新北京市场运营速度
从6月27日拿地,9月3日取得规划许可证,9月19日取得施工许可证,9月30日取得预售许可证,星悦时光五证齐全仅用了95天的时间,而项目营销团队自9月21日项目首次亮相暨案名发布、城市展厅开放,至10月1日营销中心启动试运营并启动排卡,仅用时10天,刷新了顺义区域甚至整个北京市场的运营速度。
快速推进的背后,彰显了北京城建地产、南山地产两家国资企业的实力与担当、协作与高效。星悦时光项目,正是在双国匠的紧密协作下应运而生,以高瞻远瞩的战略眼光,打造朝阳北、主城心国匠精装洋房,将这片土地的潜力与活力充分展现,让每一个人都能感受到生活的美好与未来的无限可能。
国际住区 超极规划 质价比王者户型
星悦时光择址主城心,规划R4快线引领,两轴三核驱动、高能产业磁聚,尽享国际住区醇熟生活配套。项目以约60m展宽的高定超享界面、约1500㎡超享庭院会所、沉浸式一轴七境|双环多园林的社区规划,营造舒适宜居的人本社区。匠心打造国匠精妆洋房,敬献区域品质新标杆。
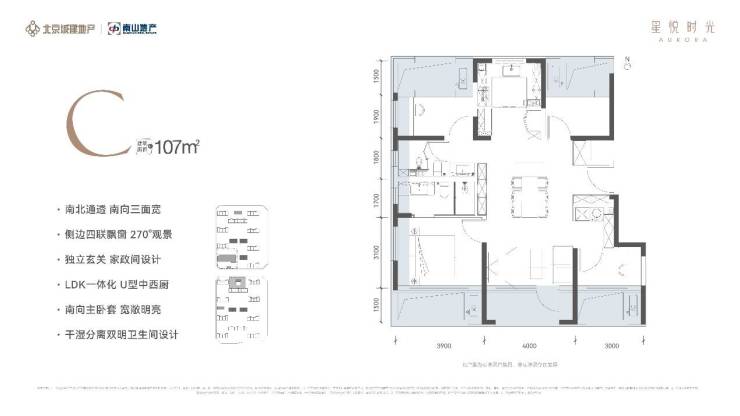
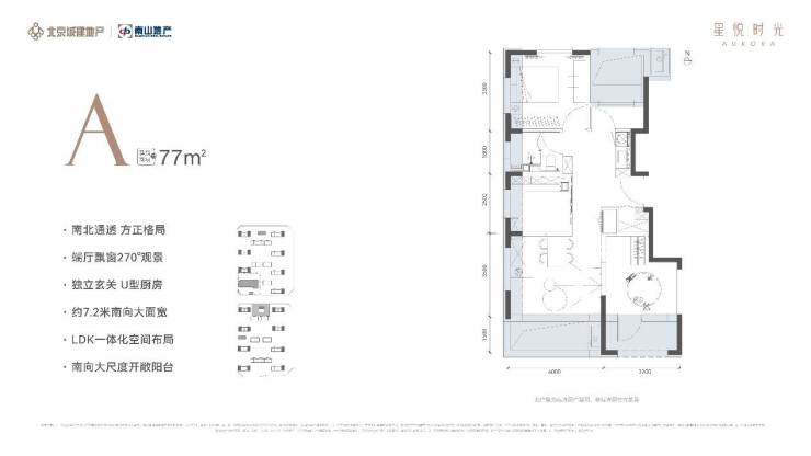
在户型设计上突破空间尺度,推出建筑面积约77㎡、87㎡、107㎡三种户型,并通过社区的错位布局,最大限度地释放270°全景采光,这一标准甚至超越了不少单价10万+的高端住宅。
针对业主的实际居住痛点,星悦时光特别优化了室内功能区,建面约77㎡的真三居设计、全屋收纳体系、全屋智慧科技系统串联、全明卫生间、独立家政间等惊喜空间,实现超强实用性、极高舒适性的质感生活空间,达成了主城生活享受与个人需求的完美共融。更重要的是超高的拓展面积让业主花同样的钱买到更优质的产品,是十年一遇的质价比王者户型。
朝阳北 主城心
建面约77-107㎡国匠精装洋房
星悦时光已启动排卡
爆款产品 爆火人气 恭迎品鉴
声明:本文由入驻焦点开放平台的作者撰写,除焦点官方账号外,观点仅代表作者本人,不代表焦点立场。







