樾启墅境平层全新生活想象 香山樾首开在即
扫描到手机,新闻随时看
扫一扫,用手机看文章
更加方便分享给朋友
这个时代,真正令我们心动的,除了稀缺的物质,更来自生活方式的共鸣,来自坚定信念的现实回响。一个项目在历史长河中想要刻画印记,并不是一个通透华丽的六面体可支撑,而应当是在空间之上,关于生活理念的塑造。空间与客群在精神层面的共鸣,于心中铭刻,提笔即是世界视野,落笔皆是时代标杆。

效果图
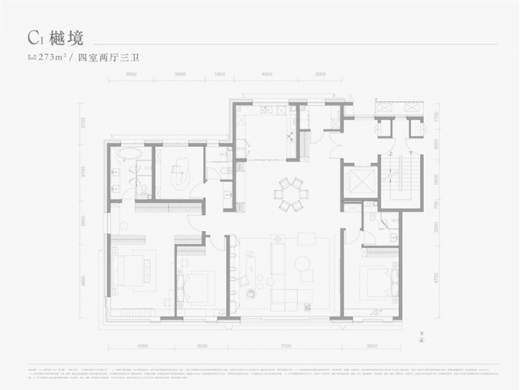
01
顶流隐奢大平层
涵养时代人居精神
在香山樾看来,家不应该是材料和设备的堆砌,也不应是各类墙地顶造型手法的炫技。它,应该是一个充满温度与情绪的地方。香山樾,以宋式美学的清逸、典雅为范本,以恰到好处的美学设计为导向,用不繁琐的空间和装饰语言,开创既独立又不浮夸的生活态度,让雅奢的生活艺术流淌在空间的情致之中。温和之力,贯穿始终。
香山樾在深研北京高净值人群需求趋势之后,提出大有可为的无界阔厅、恰到好处的面宽进深、自得其所的家政空间三大创新豪宅空间理念。
主力户型建面约231㎡,南向整体面宽约14.3米,拥有约6.6米的宽厅。采用旭格门窗系统,开窗面宽占比达到约78%,经过多次研发调教,两侧向中央开窗面积达到约50%,达到“IMAX巨幕级”落地窗效果。三玻两中空LOW-E氩气超白玻,透光效果更好,安全性能更佳,将香山景致无限纳入居家私享。

样板间实景图
不仅如此,在将香山“私有化”方面,香山樾秉承“创新无止境”的信念,通过主卧大尺度L型窗设计,尽最大努力实现“横卧仰面即香山”的舒适体验,实现了部分户型的引香山入户,这也就意味着在绝版香山脚下,居者在自家室内就可以欣赏不同角度的香山,可谓“足不出户,一步一景”,这在北京,是超越想象的惊喜体验。

样板间实景图
同时,通过近百平LDK一体空间的设计,使空间巡游更流畅、使用效率更高、更舒适。约0.9-1.37的黄金面宽进深比,内部空间的打造自由度极高,即使大家族的圆桌式家具也可以轻松布局。四叶草式格局,南侧奢阔双套房,主卧套内置展陈级步入式衣帽间,大幅提升平层的居住体验。



02
疏阔与细节交织
当代造园的营造法式
溯源巅峰宋式审美,以“园冶六观”为纲,成就当代园林标杆。以十字轴统领整个园区,在大社区内构建疏密有致、时空交汇的规划形态。摒弃“兵营阵列式布局”及“面宽最大化布局”,配合“五园十六景”,使归家之路成为一场惬意游园之旅。

示意图
有整体布局的朗阔,亦有具体景观节点营造的细节考量。围绕社区内三百年岁月的古树,打造社区中央公园,以古树光影变化刻录24小时的神性日常,以开敞空间将自然无声中引入生活。景观内大量选用天然石,通过高达6米的巨大石材复现《溪山行旅图》造景,使细节景观节点在方寸见体现传统文化的辽远与深邃。

效果图
03
大师联袂 建筑六法
匠著当代宋韵家府
香山樾联袂朱斌、刘骅、王少青、盛永娜等当代大师,以宋式审美为参照,通过意、形、色、韵、质、空“建筑六法”,构思区域罕见的全四层墅境大平层。

效果图
以九脊殿龙鳞瓦的形制,配合定制悬鱼樾,形成“鱼跃龙门、步步高升”的美好寓意。南向立面将传统文化引入,通过天青色仿汝窑定制陶板的创新性运用,配合雅奢金铝板的线条刻画,实现“石嵌金、金镶玉”的高贵感受。

效果图
低调而迷人的大平层人生,在时代香山脚下,落席精神世界的隐奢坐标。与空间中与时间共鸣,于生活中与圈层共鸣,无论物质还是精神,都得到妥帖的照护。香山樾,以当代隐奢豪宅生活范本,和融人生高峰的内敛,首开在即,争藏不待。
声明:本文由入驻焦点开放平台的作者撰写,除焦点官方账号外,观点仅代表作者本人,不代表焦点立场。







