紫辰院、北京金茂府、鸿坤林语墅,项目介绍
扫描到手机,新闻随时看
扫一扫,用手机看文章
更加方便分享给朋友
公司介绍

丽兹行是北京先进的高端房产经纪公司,连续8年北京高端市场占有率排名前列,拥有较丰富、准确的豪宅楼盘信息、房源信息,和较全面的豪宅市场分析,在北京,丽兹行提供270余个一二手公寓与别墅项目的一站式服务,覆盖了北京85.2%高端别墅和公寓项目,并且我们成立有先进四合院事业部,提供北京较全面丰富的四合院买卖与租赁服务。
除北京外,在上海的高端市场我们同样处于先进的位置,同时提供美国纽约、洛杉矶、波士顿、西雅图、旧金山五个城市的房产服务。每一位丽兹行豪宅顾问都能提供全北京的豪宅服务,您也可以通过app、公众号、小程序获取我们专业的服务。

位置图

一、紫辰院
1、位置:西四环岳各庄北桥东300米(四环内)

2、项目基本信息

a、项目地处西四环内少有地段,三环,四环,京石高速等多条主干道交通,还有1号线,9号线,10号线等多条轨道交通,15分钟内与金融街商圈、公主坟商圈、中关村商圈、丽泽商圈四大商圈无缝连接,全方位配套一应俱全。
b、1500亩公园环饲,东侧一路之隔即1200亩万丰湿地公园,是较大的城市湿地公园;北侧是300亩休闲运动公园悦泽园。
c、6万平古树园林,园区内11株500年以上古树,更有一株1300年的唐代国槐可谓镇园之宝,另外园区内蜿蜒流淌8000平水系;
d、社区配套2万平四大会所服务平台,分别是餐饮商超会所、商务接待会所、古色古香的茶室会所以及5000㎡的运动休闲会所;
e、北京较先进空气净化,加拿大BABT集团与北京大学医学院历时三年研发,设计专门针对北京空气的科技净化系统,过滤PM2.5达99.9%,使室内空气可以达到手术室的标准。
3、楼栋分布图

4、样板间照片






5、社区介绍
20000平米京城较大服务平台 全北京独此一家 1.艺术文化中心;2.运动休闲中心;3.茶文化中心;4.美食餐饮中心,四大服务平台规划健身 、spa、游泳、影院、书吧、网球、文化场域专注提供各种尊崇私享服务。

60000平京西较大私家园林 ,全城造价较贵的 中式园林
「紫辰院」借皇家园林之首-颐和园精髓,首创“新古典国学园林”,总面积达6万平米(90 亩),京西市区较大私家园林收纳水、石、树、花、亭、榭、楼、台、廊、桥等园林精粹,不仅 不惜人力、财力与物力,园林总造价超亿,为一般豪宅园林造价的3倍。

京城上百年臻稀古树较多的园林
园中之木非珍稀不入列,有近25棵百年古树,较珍罕的是1300岁唐代国 槐,除此之外尚有500年皂角树、木瓜树、藤抱连古树以及元宝枫、白皮 松、银杏、蒙古栎等臻稀名树,更将百年牡丹、紫薇等珍奇花卉移植一园, 另有水生植物诸如睡莲、荷花、鸢尾等点缀盛景,园内浓荫华盖、古木参 天,遍数京城难觅其二。

罕有5000平米水面,南北千米水系景观带
沿中央楼王南北两条水系自西向东,汇聚楼王东侧水榭湖区,湖面冬季可结冰, 营造三季为水一季结冰的全季湖水景观。且泊岸坡度大于45度,分解水面的张力, 水面结冰不会冻裂。


可游可赏可玩可社交的全家族休闲场域
为孩提建造了霍比特人小屋、儿童活动场地,为大人及老人建造了武术广场、太极广场,还有戏台、耕读 园、二十四节气广场、阳光花房等文化空间中,营造“可玩可休可社交”人本场域。

3000平米艺术文化中心
3000平米,分中西大餐厅、商务会客室、儒雅大书房、时尚咖啡吧等
红酒窖:600平米,能容纳5万瓶红酒。
雪茄馆:藏10万支雪茄 3000

5000平米京城社区较大运动休闲中心
25米6道恒温泳池
靓丽养生馆:SPA、香薰、纤体、美容、桑拿、按摩、理疗设施一应俱全
13米高综合健身馆,囊括网球场、器械健身、舞蹈、瑜伽等项目,运动器械采用进口一流品牌
30~40座VIP家庭影院


京城社区较古色古香的茶文化中心 >> 配备高档茶器,特聘专业茶艺师,提供多种名优茶的品评赏鉴。
>> 兼具茶餐厅、会谈室、娱乐室、书吧等多种功能,提供各种茶点,以及私房菜肴。

二、北京金茂府
1、位置:南三环宋家庄地铁站南200米

北京金茂府位踞天坛正南三公里,三环皇家石榴园,由中国铁建、中国中化两大世界500强企业以全球化的视野及建设能力合力共创。参照国际街区生活模式,基于中国金茂城市运营战略,整合与导入优质城市资源,打造金茂千步街区。在府系产品之上,全面升级12大科技系统,建造独院别墅、科技大宅,以适幼级健康标准样板,承兑一座城市的生活理想。

a.区域:三环内城,理想生活墅区,多维畅达交通,从容瞬达内外。出则繁华 入则宁静 ,低密宜居园林生活。
b.一平方公里城市理想,集成墅区、医疗、养老、学府、商业(会所)、城市公园、地铁、街坊空间8大城市功能。
c.产品:西技中魂 新现代主义建筑美学,在极简主义设计中,融入中式元素,彰显独特的国际东方韵味。
d.科技:全面焕新十二大科技系统,恒温、恒湿、恒氧居住环境,斩获中国排名前列BREEAM四星住宅认证。
e.品牌:金茂物业,金钥匙金质管家。世界500强实力共创中国中化/中国铁建,筑梦理想。
2、项目基本信息

3、样板间照片









4、园区照片







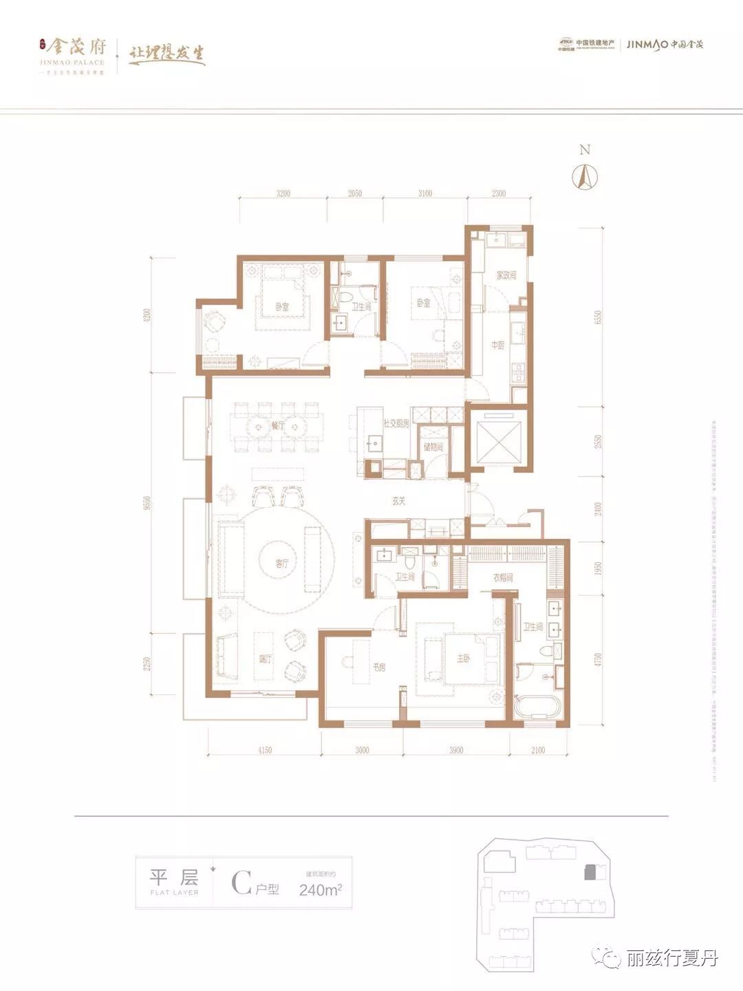
5、户型图


三、鸿坤林语墅
1、位置:地铁四号线西红门站东800米

本项目是鸿坤地产的代表作品,位置位于南四环地铁西红门站东800米(京开高速西红门桥西侧500米),容积率仅为1.02,由276余套联排和叠拼别墅组成的纯别墅社区,新古典原创风格立面,坐拥少有四环城市核心,毗邻宜家、大型购物中心两大购物商圈的国际级商都配套。

2、项目基本信息

3、产品类型
1、上叠户型:334-340平米产权,使用在400-450平米,花园30-40平米,地上2层、地下2层,四居室设计
2、下叠户型:377-380平米产权,使用在400-450平米,花园30-40平米,地上3、4层和、地下2层,四居室设计
3、联排户型:430-510平米产权,使用在550-600平米,花园50-100平米,地上3层、地下2层,四居室设计。目前已售罄
4、滨水楼王:643平米产权,使用在800平米,花园200平米,地上3层、地下2层,五居室设计,4800万起(毛坯现房)
4、园林照片




声明:本文由入驻焦点开放平台的作者撰写,除焦点官方账号外,观点仅代表作者本人,不代表焦点立场。







