金隅尚林家园总价279万 选房攻略抢先看
扫描到手机,新闻随时看
扫一扫,用手机看文章
更加方便分享给朋友
在上周一,海淀西三旗的共产房——金隅尚林家园结束了摇号,据焦点君了解,此项目最终确认申购家庭15468户,通过资格审核可参加摇号的家庭(含夫妻双方及未成年子女,其中单身人士需年满30周岁)共计12407户。
(咨询购房专家买房问题请添加小助理微信号:goufang02 有问必答!)

本次摇号共分为3组,排名前列组为京籍家庭,参与摇号的海淀区户籍无房家庭和在海淀区工作的本市其他区户籍无房家庭为9164户,第二组为非京籍优先组,共264户,最后一组为非本市户籍无房家庭普通组,共2964户。
很多购房者在排名前列时间纷纷查询自己的中签情况,有些朋友比较幸运,排名很是靠前,有些朋友则相对靠后,尽管如此,但大家仍然希望能在选房过程中找到属于自己的那套房。
那金隅尚林家园315套,在选择上要如何排序呢?今天,焦点君也给您分析分析下。
金隅尚林家园共计4栋楼,从楼层分布来看,1#为9层,2#为14层,3#及4#均为19层,从楼栋朝向来看,3#、4#为南北朝向,1#和2#属于东西朝向,选择的话,可以优先考虑南北向。
(咨询购房专家买房问题请添加小助理微信号:goufang02 有问必答!)
再来看细节方面,3#和4#南侧为规划的贺家村路,从两栋楼距离来看,3#距离马路稍远一些,而且重要的是,未来在3#楼西南侧还规划了防护绿地,未来视野感受会更加舒适。可以优先考虑3#。
再来说剩下两栋楼,从位置上来说,1#临近人行出入口,且西侧为办公厂房,2#临近车行出入口,东侧为幼儿园,此外,相比而言,2#则距离北侧建材城加密路较远一些,相对安静。在选择上,可以优先考虑2#。
说完了楼栋选择,再来看看户型分布,要知道金隅尚林家园虽然只有315套房源,但却是涵盖了64-89平的一至三居,无论您是单身,还是新婚夫妻,亦或是三口之家,都有适合的户型。
一居室

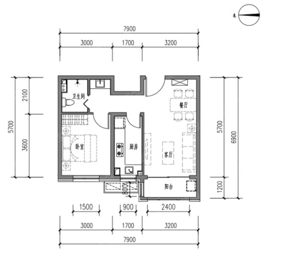
一居室共计有两种,其中A-4户型位于1#楼首层,仅1套,而C户型,建面65平米共计43套,分布在1#和2#,从位置来看,属于中间户,分别为C户型和C’户型,其中C户型阳台有侧窗,在通风上会更优一些,所以在选择上,可以优先考虑C户型。
(咨询购房专家买房问题请添加小助理微信号:goufang02 有问必答!)
两居室

再来说说两居,74平米两居就3套,位于3#楼和4#楼首层,至于80平米B户型同样位于3#和4#,属于中间户,共计114套,在分布上,相对来说4#楼会多一些房源,占比达到了66%,对于选房顺序号比较靠后的家庭来说,可以考虑下。
三居室

89平三居房源共计有三种户型,其中A-5户型位于2#楼首层,仅一套,咱们暂且不说,单说剩下的两个——A户型和A-3户型。两者从分布上来讲,A户型主要位于南北朝向的3# 楼和4#楼,A-3户型则位于1#楼和2#楼,虽说都是边户,但在选择上,可以优先考虑A户型。
(咨询购房专家买房问题请添加小助理微信号:goufang02 有问必答!)
文末总结:
由于受到北京疫情影响,项目目前还无法进展到选房阶段,但这对于购房者来说,未尝不是一件好事,大家可以通过这段时间,对项目有更深一步了解,为后期的选房做足功课。
延伸阅读:
声明:本文由入驻焦点开放平台的作者撰写,除焦点官方账号外,观点仅代表作者本人,不代表焦点立场。







