石景山“望坟”共有产权房你会买吗?
扫描到手机,新闻随时看
扫一扫,用手机看文章
更加方便分享给朋友
今天开启网申的石景山首个共有产权房项目,近期引发市场诸多关注,原因是其所处位置是迄今为止,北京共有产权房项目中距离市中心较近的项目,位于繁华的长安街沿线上,且临近地铁1号线。
但尴尬的是,他又紧邻革命公墓,紧邻火葬场。一时间被一些喜欢调侃的客户称之为“望坟房”、“墓景房”、“看坟房”……这想象力了我也是醉了。
虽然近期太忙,疏于更新,但是也收到了一些客户的留言,问如果符合资格,这个社区能不能入手。
关于住宅临近公墓的利弊,也是因人而异。
一方面,在国内老一辈人认为近坟场、殡仪馆、医院等住宅属于阴煞之地,不宜居住。但在国外,当地人对这些公墓位置并无太多芥蒂,有的公墓就坐落在住宅的对面,又是开放式社区,公墓也没有围墙,他们并不介意。
但是对华人而言就不同了,尤其是家有老人要一起生活的家庭,即使人已经在国外生活,但对这件事依然无法接受。
前不久,在美国加州洛杉矶橙县的尔湾大公园社区,华裔为美国退伍老兵公墓移址维权事件,闹得沸沸扬扬。
年轻人还好,老人们非常介意,随着当地华裔人口的增多,历经三年的努力,较终,尔湾市议会终于通过老兵公墓迁址决议。由此可见,家里有老人的华人对此事的重视程度。
另一方面而言,国内的这些阴宅的选址从古至今都非常挑剔,不仅需要具备“朱雀、玄武、青龙、白虎”四象齐全。
同时要综合来龙、案砂、明堂、水口、立向等因素来选取,这样选出的才是较适宜的阴宅安放的风水宝地,不是随便找块地就可以当公墓的。
八宝山革命公墓更是不同,他是我国较著名,规格建制较高的园林式公墓。其中很多国家领导人,革命战士等都葬在这里。这里依山傍水,素有龙脉之称,还流传着埋藏宝藏的传说,可以说是较佳的风水宝地。
因此,公墓和火葬场,个人认为对这个项目而言,影响不是很大,如果真的介意未来找个风水先生给破下就好。关键还是要看项目本身,下面先看看项目的基本信息,【政策房大搜罗】会结合这些信息分析给出建议。

石景山区中国铁建·玉景阳光项目开放申购登记,网申时间为2018年9月6日上午10:00至2018年9月21日下午17:00。共计452套,销售均价35000元/㎡(含全装修),个人产权份额比例为50 %。
此次依然未采取京籍70%、非京籍30%的配售比例。将结合石景山区功能定位和发展方向以及项目申购登记家庭数量等因素综合确定(具体情况将在摇号公告中予以公示)。
但是申购同样附加了两个条件:
在石景山工作的非京籍无房家庭,网申当月前3个月以上在石景山连续缴纳社保,且在京连续缴纳社保或个税满60个月;
在石景山工作的其他区北京户籍,网申当月前3个月以上在石景山区连续缴纳社保。
玉景阳光项目概况
中国铁建·玉景阳光项目位于石景山区玉泉西一路(长安街以北),东至玉泉西一路,南至现状园林小区,西至规划X-18246地块规划绿地,北至现状北辛安交警大队。是迄今为止距离市中心较近的一个共有产权住房项目。

项目用地为北京市石景山区玉泉西一路X-18160地块,在经过56轮的激烈角逐后,由中铁建12.35亿在2017年4月竞得,楼面价28450元/㎡,溢价率45.29%。
由于中国铁建·玉景阳光是由自住型商品住房转化为共有产权住房的。所以《关于印发<北京市共有产权住房规划设计宜居建设导则(试行)>的通知》不适用本项目。所以,目前小区内公共配套尚未明确。
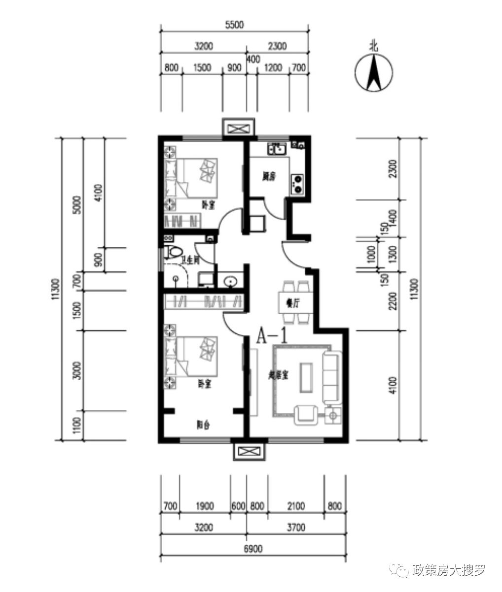
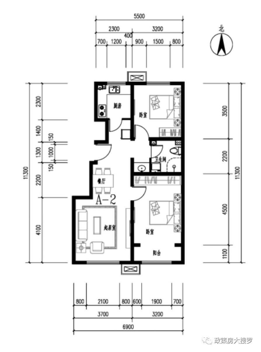
项目规划地上建筑面积43409㎡,其中共有产权住房地上建筑面积37105㎡,总套数452套。户型为85-89.5㎡两居室408套,约64-74㎡两居室25套,约42-67㎡一居室19套。
其中,1号楼1、2单元为1梯5户,1号楼3单元为1梯3户,2号楼为1梯4户,3-14号楼为1梯2户。

2居室A户型:建筑面积约74平方米,3套,位于1号楼1单元。

1居室B户型:建筑面积约66平方米,4套,位于1号楼1单元。

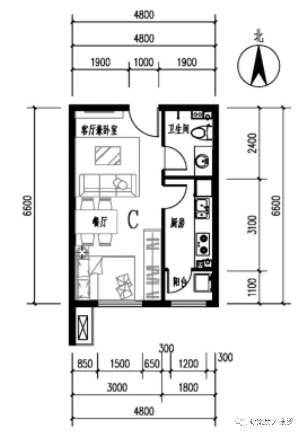
1居室C户型:建筑面积约42平方米,2套,位于1号楼1、2单元。

2居室D户型:建筑面积约71平方米,3套,位于1号楼1、2单元。

2居室E户型:建筑面积约71平方米,2套,位于1号楼1、2单元。

1居室F户型:建筑面积约60平方米,4套,位于1号楼2单元。

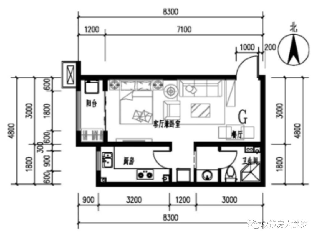
1居室G户型:建筑面积约51平方米,1套,位于1号楼2单元。

1居室H户型:建筑面积约62平方米,5套,位于1号楼3单元。

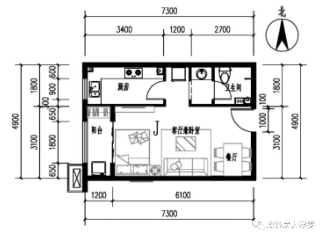
1居室J户型:建筑面积约47平方米,3套,位于1号楼3单元。

2居室C-1户型:建筑面积约65平方米,3套,位于2号楼1、2单元。

2居室C-2户型:建筑面积约64平方米,4套,位于2号楼1、2单元。

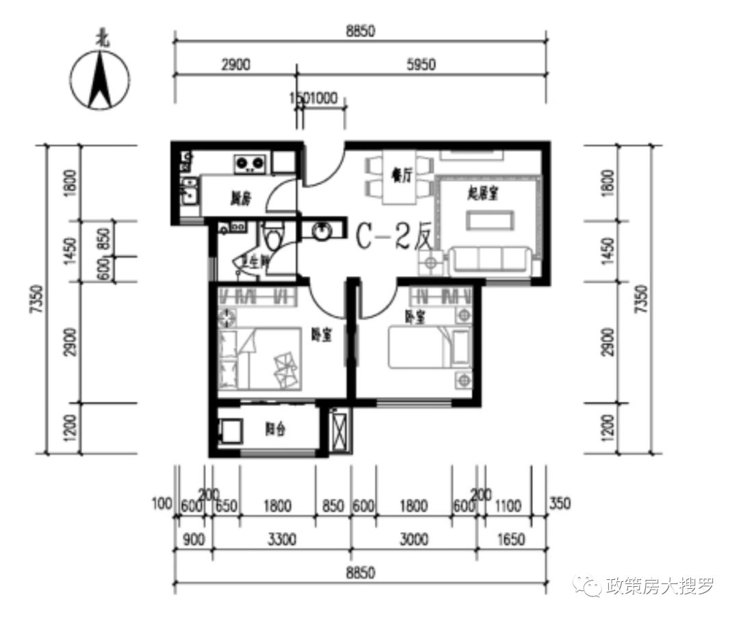
2居室C-2反户型:建筑面积约64平方米,4套,位于2号楼1、2单元。

2居室C-3户型:建筑面积约64平方米,6套,位于2号楼1、2单元。

2居室A-1户型:建筑面积约86-89.5平方米,138套,位于3-14号楼。

2居室A-2户型:建筑面积约85-89.5平方米,270套,位于3-14号楼。
同样该项目户型设计,也没能逃脱共有产权房的通病,一部分户型设计不够理想,B、C、D、E、C-2、C-2反、A-1、A-2户型相对设计合理。
但玉景阳光项目的地理位置优越,在西四环与西五环之间长安金轴线西段。临近地铁1号线八宝山站。
周边的公交线路有:专69路、961路、546路、76路、951路、914路、1路、527路、特10路、545路、941路、运通120路等几十条公交线路,交通非常便利。
教育医疗配套方面:学校有北方之星双语幼儿园、石景山区实验小学分校、玉泉路小学、中国科学院大学、北京应用技术大学艺术设计学院等;医疗配套有清华大学玉泉医院(二级甲等)、航天中心医院(三级)等。
生活配套方面:万达商圈、物美、五棵松华熙LIVE商圈、玉泉大厦等。
生态配套方面:老山城市休闲公园、北京国际雕塑公园。
石景山共有产权房

石景山的两个已经定价的共有产权房,【政策房大搜罗】在之前的文章中做过对比,这里不过多赘述,可以点击《石景山排名前列共有产权房即将入市》查看详情。
石景山限竞房及新房价格
石景山限竞房项目,整体均价不大于5.2万元/㎡。虽然相对距离稍远一些,但是也均是知名房企打造,产品品质和户型均值得期待。而玉景阳光占比50%产权的价格与之对比,优势并不明显。
区域内新房1-8月北京住宅销冠中海寰宇天下均价为6.35万元/㎡,远洋天著春秋新房均价为9.5万元/㎡。
共有产权房3.5万/㎡的均价,50%的产权占比,相比新房价格优势也并不明显,但位置占优势。此外,共有产权房的全装修和商品房的精装还是存在非常大差距的。
周边二手房价格

玉景阳光项目周边二手房均价已达到7.5万/㎡,对比该区域的二手房来看,价格存在明显优势。
总之,较终还是根据自己的情况量力而行。如果实力尚可,商品房中海寰宇天下83-95㎡的小户型也是不错的选择。以目前限竞房的套路来看,这个位置未来打造的产品,预计会总价过高,恐一般客户难以企及。
关于中海寰宇天下,在此也给大家梳理一下,做个备选。

户型设计方面:该项目供应产品也存在83-95㎡刚需户型,全是南向设计。面积小,功能全,总价低,且空间尺度精细考虑家具布局排布。

C1户型83㎡ 2室2厅1厨1卫
C2’户型95㎡ 3室2厅1厨1卫
同时还是精装修交房,配有地暖,中央空调、新风系统、智能电子门锁等宜居配置。

交通配套方面:中海寰宇天下拥有两大立体交通枢纽,其一是北侧的金安桥一体化交通枢纽,即将打造成京西重要的交通枢纽。规划有三条地铁线交汇,分别是S1线、6号线、11号线。

目前北京首条磁悬浮S1线和地铁6号线处于在建状态,S1号线预计年底即可通车,6号线预计2018年底通车;11号线还在规划中,预计2019年启动建设。
另一大交通枢纽是苹果园站,也是一个三线交汇的重要交通枢纽。未来将要开通的18号线与1号线平行,全长52.3公里,沿长安街向东西延伸。穿越北京城区,快速连接石景山区和通州新城,区域发展潜力较大。

生活配套方面:商业有沃尔玛山姆会员店、当代商城、喜隆多购物广场;银行有农行、工行、农商行、建行、邮政储蓄银行、华夏银行。
教育及医疗配套方面:有石景山实验幼儿园、石景山第三幼儿园、古城第二小学、石景山实验小学、北京市石景山区京源学校小学部、北京市石景山区古城第二小学、北京九中、京源学校;医疗方面有北京大学首钢医院、石景山医院、清华大学玉泉医院。

当然,如果经济实力有限,玉景阳光低密度共有产权房,优越的地理位置,个别户型还是值得考虑的。
此外,部分要和家里老人一起住的朋友,老人观念比较传统,介意公墓和火葬场的影响,也可以考虑等待区域内东下庄共有产权房的后期申购。
玉景阳光网申地址:http://zzfws.bjjs.gov.cn
声明:本文由入驻焦点开放平台的作者撰写,除焦点官方账号外,观点仅代表作者本人,不代表焦点立场。







