金隅尚林家园今日网申 九大户型挑选有诀窍
扫描到手机,新闻随时看
扫一扫,用手机看文章
更加方便分享给朋友
1月3日,对于久等海淀共产房的人群来说有着特别的意义,因为在这天,位于西三旗建材城中路东侧的金隅尚林家园终于迎来了网申。自打永靓家园选房结束后,海淀的共产房市场显得格外冷清,虽说前段时间连续挂出两宗共产房用地,但毕竟还没有任何实质进展,这让很多着急入手的购房者们,纷纷把目光瞅向了金隅尚林家园。
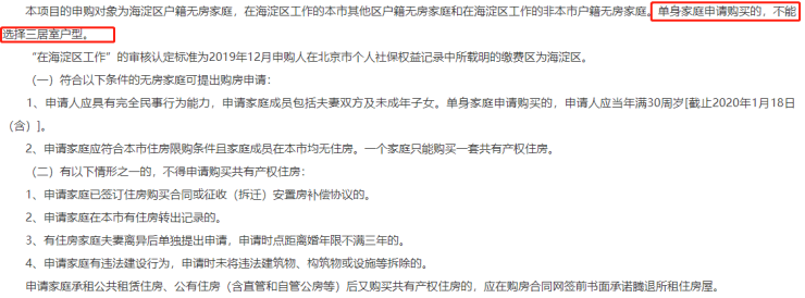
有目标是好的,但焦点君还是给郑重提醒下各位,您的要求真的符合申购条件吗?根据海淀区住建委发布的公告可以看出,项目共计315套房,将分为两部分,分别面向京籍及非京籍家庭配售。其中重点提到了,单身家庭申请购买的,不能选择三居室户型。(咨询购房专家买房问题请添加小助理微信号:goufang02 有问必答!)

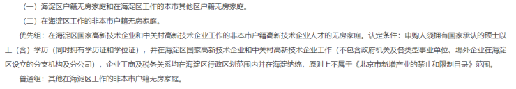
此外,对于申购家庭分组也进行了明确要求,排名前列组为海淀区户籍无房家庭和在海淀区工作的本市其他区户籍无房家庭,第二组为海淀区工作的非本市户籍无房家庭,其中设立了优先组及普通组,具体内容如下。

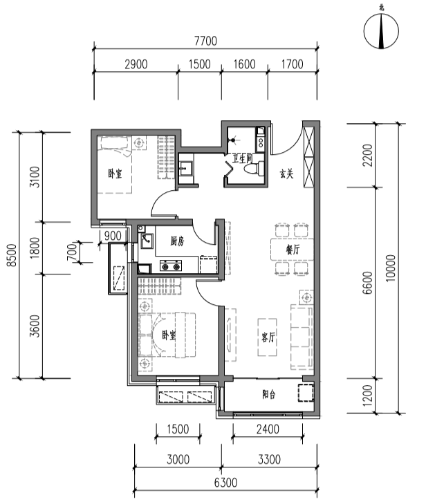
除此之外,在此次公告中,项目的户型图终现真身,共计9种,虽说还没到选房的阶段,但如果您决定上车这个项目的话,不妨提前了解下户型中的门道,为后续进展做好铺垫。
金隅尚林家园项目为2梯4户设计,户型的朝向共有4种,分别为南北、东西、纯西、纯南,下面就为您分类介绍下:
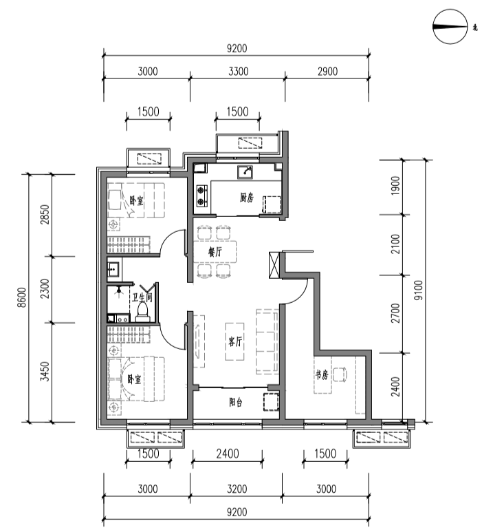
南北户型:
代表:A户型、A-2户型

A户型为三居,A-2户型为两居,作为项目中,两个南北通透房源,整体空间中规中矩,主卧和客厅位于南侧,厨房客厅餐厅一体化设计,通过图片也可以清楚看到,两者的布局也只是多了一个北侧卧室。(咨询购房专家买房问题请添加小助理微信号:goufang02 有问必答!)
东西朝向
代表:A-3户型、A-3反户型、A-5户型、A-4户型

先说下三居中的两个东西向户型,入口处设立玄关,这点很好,以后可以方便储物,不过该户型有间独立卧室太临近门口,未来这私密性需要加强,除此之外,可以看出项目客厅处预留了阳台,未来可以储物或者晾晒衣服,当然这个就要看个人喜好了。

A-5户型 建面89平米
同样是三居户型,这个户型虽说大格局基本类似,但项目东侧的书房过道过长,未来这里会比较浪费空间。

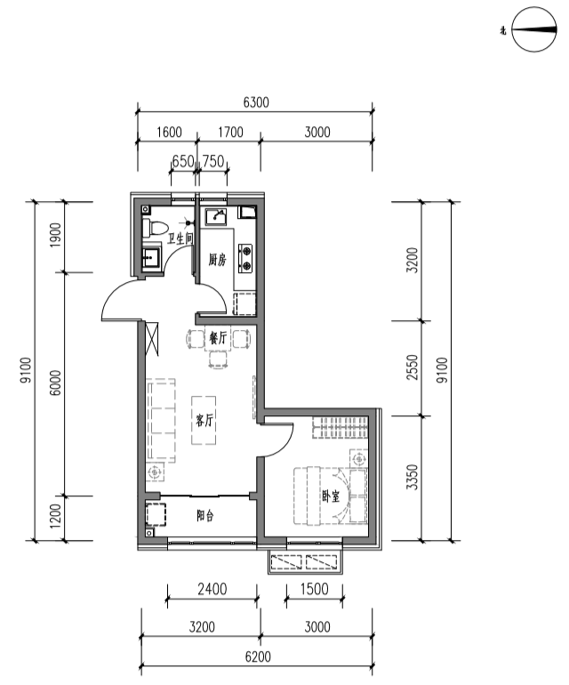
A-4户型 建面53平米
A-4户型为一居室,是一款经典的一居格局,厨房、卫生间为明厨明卫设计,西侧为卧室,面宽3米,后期可以放置一张双人床+电视柜,本户型客厅有封闭阳台。
纯南朝向
代表:B户型

B户型 建面80平米
该户型为两居设计,南北各有一间卧室,进门以后,一眼能望到阳台,视野会很开阔,但该户型为暗卫设计,需注意。
纯西户型
代表:C户型、C'户型

纯西朝向的户型,都是一居室,户型和我们之前所见的多数一居大体相同,不多的亮点的是都配备了独立阳台,不过厨房的面积略小,未来两人一起施展的空间有限。
在了解了项目各个户型以外,估计很多人都用笔默默记下了心中优选,但是请注意,并非所有房源都十分充足,毕竟人家公告也说了,一居套数44套,二居套数117套,三居套数154套。而放到各个户型上的话,多少也是有明显差异的,看看下方表格你就全明白了。
相信看完今天这篇内容,对于这个2020年排名前列网申项目——金隅尚林家园您又多了一分了解,未来入手的时候,也能做到稳准狠。当然了,对于目前还在犹豫是不是上车的人群来说,留给您的思考时间十分有限,毕竟项目整个申购周期共计15天,此次截止时间就在1月18日上午10点。如果各位有意向的话,千万别错过此节点。(咨询购房专家买房问题请添加小助理微信号:goufang02 有问必答!)
延伸阅读:
声明:本文由入驻焦点开放平台的作者撰写,除焦点官方账号外,观点仅代表作者本人,不代表焦点立场。







