8.3万/平米!北京四环临铁盘,有消息了
扫描到手机,新闻随时看
扫一扫,用手机看文章
更加方便分享给朋友
今年北京拿出不少好地供应。
一方面体现在临近轨道交通上,另一方面五环以内供地终于也大方了一把。
当然,这些好地在拍卖环节,也是走出“逆势”行情。
即便整体市场热度一般,但好地被多家房企争抢现象仍旧出现。
比如开年一月,丰台大瓦窑两块地双双触顶成交。
大瓦窑的直观条件,主城区,四环外,有地铁。所以土拍火爆也不难理解。
近期,由京能拿下的大瓦窑L44地块——京能西贤府,有消息了。
NO.1
京能西贤府位于西四至五环间,家门口即是地铁14号线大瓦窑站。
大瓦窑站,6站直达丽泽商务区;并且14号线可快速接驳9号线、10号线,从项目出发7站丰科园,9站五棵松,11站金融街,14站中关村。
另外,项目五环内的环线位置,加上临近京港澳高速,自驾出行也相当便捷。
优越的的轨道及公路交通条件,让大瓦窑板块轻松享受丽泽、丰科园、金融街、中关村等北京重点产业区辐射。
这也是项目的最大优势。
教育上,距项目直线3公里内有丰台区建华学校、丰台区实验小学、卢沟桥第一小学、丰台区第二中学等资源。
其余生活配套方面,附近底商基本可以满足生活需求。
至于大型商场及医疗配套,主要依靠项目东北方向直线5公里左右的五棵松一带。
比如往北有翠微百货、五棵松商圈,解放军总医院(301医院)、中国人民解放军第三医学中心(原武警总医院)、解放军总医院第五医学中心北院区(原302医院)等三甲医院。
不过项目自带商业街及酒店配套(包括一栋23层酒店和两栋3层的商业体,商业约6000平米),可以弥补家门口的商业短板。
NO.2
产品上,京能西贤府规划建设7栋住宅楼,约428套房源,层高11-18层。
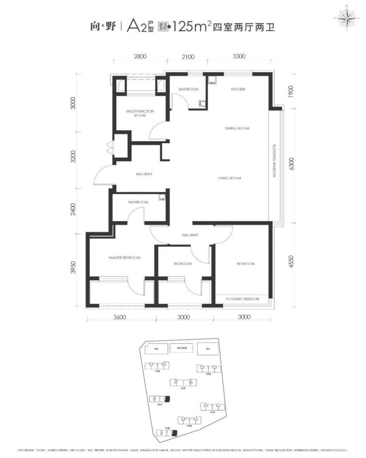
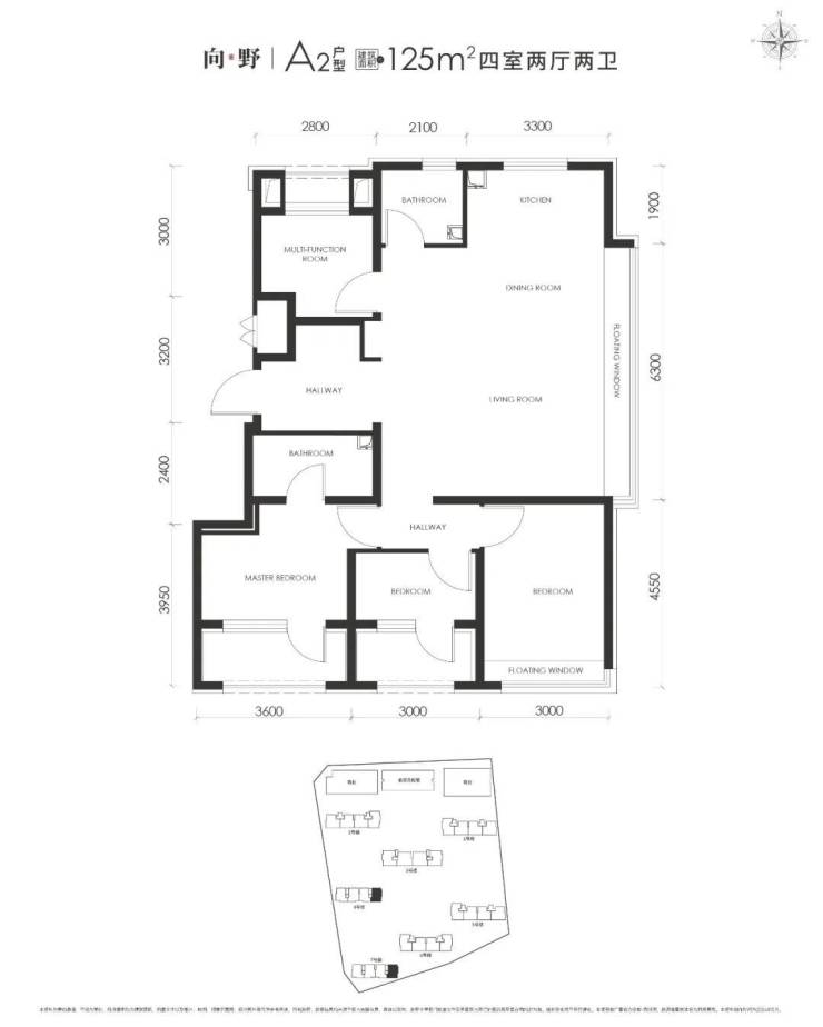
户型是建面约125-173㎡四居产品,据说得房率做到了90%。来一起看看户型图:
建面约125平米四居A1户型,分为边户及中间户。方正通透,四叶草格局,客厅面宽3.9米+大落地窗,主卧面宽3.6米+边户主卧设置拐角飘窗,其余三个次卧空间也不局促。户型比较实用。
建面约125平米四居A2户型,也是边户比较特别,客厅朝东面宽做到6.3米+搭配L型拐角飘窗,厨房面宽也有3.3米,整个LDK空间采光及视野更佳;三个卧室朝南,这个户型多口之家起步首选。
建面约154平米四居B1户型,南向三面宽约12.9米,6.1米奢阔宽厅+落地窗、中西双厨、一梯一户,没有面积浪费。
建面约154平米四居B2户型,三卧朝南、南向双套房设计、书房/多功能房置于北侧;约55㎡超大LDK方厅、约6.3m超大开窗;一梯一户,多口之家的升级之选。
建面约173平米四居,项目的最大户型,同样两种格局。
C1户型,南向三面宽约13.7米,客厅面宽6.4米,南向双套房,约33㎡精奢主卧;北向两次卧挨着,大尺度赋予生活更多可能。
C2户型,南向四面宽,三卧朝南,主卧共约6.5米面宽,L型环幕飘窗,双台盆+独立浴缸,总统套房级配置;全屋更大尺度给到社交空间,约63㎡超大LDK方厅,奢侈感尊崇感十足。
总体来看,项目户型大落地窗、奢阔宽厅、加上高得房率,居住体验感肯定不错。
京能西贤府的销售指导价8.3万/平米,预计6月底开盘。
据说项目在社区园林打造上,也下了不少功夫...今年北京新房是真卷起来了!
大家觉得这个项目如何?
声明:本文由入驻焦点开放平台的作者撰写,除焦点官方账号外,观点仅代表作者本人,不代表焦点立场。







