西城二环惊现“砸盘价”新房!首付80万起抢占核心区,但有一点需要注意...
扫描到手机,新闻随时看
扫一扫,用手机看文章
更加方便分享给朋友
🏡新房新消息:
👀 后台回复【网签】查看8月北京各新房去化情况。
👀【运河玖院】坐落于北京城市副中心核心区,主打 一线临河资源(直面260米宽大运河,部分户型拥有270°弧形观景窗,视野开阔),最高95%得房率 及 高品质社区配套(如3000㎡高端会所、风雨连廊等),均价5.6万,联系小助理,咨询更实惠地板价!
正文——
朋友们,西城也砸盘啦!
上个月朝阳国资委抛出5万+晨光家园“砸盘”后,9月西城也来了:
二环边展览路板块,突然推出102套精装新房,现房即买即住,总价500多万。
在这个寸土寸金的区域,新盘供应当属“千年等一回”。不是开发商惜售,是真的没地了。这批房源的出现,瞬间点燃了北京楼市的热情,据说售楼处人山人海……
这波热情让人恍然,咋北京市场又火起来了?大家又有钱了?
肯定不可能啊,我总结了三个该项目火爆的原因,您看看是不是这个理儿。
---
01 价格倒挂,肉眼可见的价差诱惑
这批位于百万庄北里的房源,前身是棚户区改造项目(部分回迁安置房),作为北京市中心城区首个棚改试点之一,由天恒集团操盘开发。
最大的吸引力来自于明显的价格倒挂。据市场消息,本次新房的总价区间大致在500-600万左右,单价约9万出头/㎡。
对比周边二手房价格:
* 展览路“生肖区”小红楼(50年代苏式住宅),成交单价在11万/㎡左右。
* 建设部大院二手房均价高达**11.4万/㎡**。
* 百万庄中里的二手房均价也达到了**10.6万/㎡**。
* 改善类大盘如“观缘”,均价早已超过**16万/㎡**。
这意味着一旦买了,哪怕平价卖出去,也不会亏,但凡涨涨价,导手就能赚,这个位置,还不愁卖,这种肉眼可见的价差,成为了项目火爆的首要原因。
02 书包加持
学区,是这个项目的最大亮点。
项目划片至“展览路一小”,这是区域内的头部学校,属于西城二梯队的牛小,师资稳定、校风优良。其2023年毕业生进入“西城六小强”高中的比例高达约18%。
初中通路方面,派位对应了西城多所名校,包括四中、八中、三帆、十三分、铁二中等。展览路一小毕业生大概率能对接到优质中学。
近期教育新政如约而至:阜外大街32号老电车厂地块,迎来约3.4万㎡的“学位应急保障项目”实质性启动,政府投入约3亿资金,叠加二里沟首都师范大学实验小学的持续发力,进一步提升了该区域的教育价值。
这种房子买了给孩子备着也不亏,对不对?还不愁租。
03 新房稀缺,西城核心区的罕见供应
最后一点,西城作为北京老城核心,新房“稀缺是常态”。尤其是西二环沿线,土地资源极为稀缺,不是政府不想卖,而是真的无地可供。
西城核心区近十年“0供应”,新房极度稀缺。以后如果还有新项目,基本商品房应该都是800万以上起步的。
这批房源不仅是70年产权商品住宅,更是从今年重新起算产权年限,不像有的项目出手已经年过半百,堪称西城楼市中的“稀有物种”。
现房销售也是一个重要优势。项目是2018年已交付的成熟社区,购房者可以即买即住,避免了期房等待的不确定性和风险。
综上三点,怎么着都能打动不少人吧,难怪火爆,但是是不是那么抢手,还得看产品。
04 小而精的空间布局
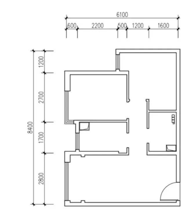
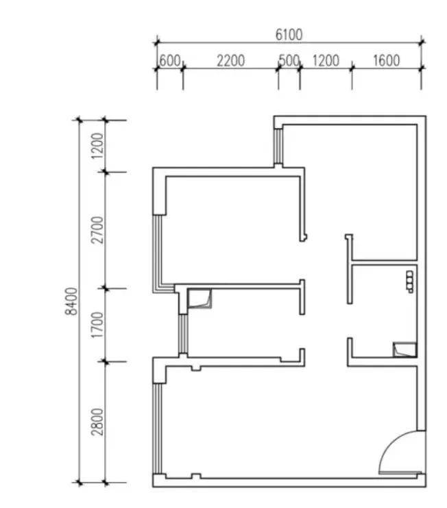
这个项目这次推出的户型主打小户型,包括 47㎡一居室、64㎡两居室、70㎡两居室。不过我去了,还有80平的户型,大概后面还有,看情况了。
你说都值得买吗?
我觉得还是基于实用和钱包两个因素来看。我个人比较看好70㎡的,起码适合有孩子的家庭,其他两个户型确实是小点。
47㎡左右户型
65㎡左右户型
70.9㎡户型样板间挺厉害,给出了解决方案:做了“两房改三房”的设计,专为两个孩子家庭设计了儿童房,采用上下分层布局,让兄妹各有独立学习空间。
70㎡左右户型
两个空间各配一扇折叠门:推开就能一起玩耍、关上便成了独立的“小书房”。这种可开可合的设计,完美解决了多孩家庭“要独立又要互动”的空间矛盾。
客餐厅的“多功能核心”设计以一张六人多功能餐桌为中心,让单一空间承载吃饭+学习+办公多重功能。厨房与餐厅之间安装的可开可合划轨道玻璃窗,让家人在不同空间也能随时互动。
不过据说毛坯交付,你还得出一笔装修款。
05 与商品房的差距
尽管优势明显,但需要清醒认识到:这个项目本质上建的时候是回迁安置房,与当下市面上主流的新建商品房存在一定差距。
得房率方面,这类房源与当前主流新建商品房相比不占优势。社区整体配置和公共设施虽然相比周边老小区有提升,但可能无法与纯粹的商品房社区相比。
部分户型为东西向,采光通风逊于南北通透户型。这对于注重朝向的北京购房者来说,是一个需要考虑的因素。
物业费为4.39元/㎡/月,长期持有成本需要考量。
跟上时代的安保硬件和园林休闲区设计已经让小区产品力上有所提升,但作为回迁房的本质,决定了它不可能达到高端商品房的标准。
06 配套成熟,二环腹地的地段价值
项目位于正宗的二环腹地,黄金地段。紧邻地铁6号线、16号线二里沟站,从这里出发,无论是到金融街、中关村还是国贸三大核心区,都十分高效。
甘家口百货大楼就在斜对面,负一层有超市,地上6层品牌齐全;新疆大厦也在附近,是北京知名的驻京办餐厅之一。
3公里内拥有解放军总医院第六医学中心、中国医学科学院阜外医院、首都医科大学附属儿童医院等顶级医疗资源。
玉渊潭、动物园、紫竹院等大型公园都在骑个电动车可达范围内。
项目北侧隔条马路(三里河路)对面就是住建部大楼大院。有人调侃道,开发商要想在房子里偷工减料,是不是得掂量一下?这话虽是笑谈,但多少让人心里踏实点。
综合来看,价格倒挂、学区优势和新房稀缺性共同造就了百万佳苑的火爆行情。
然而,购房者也需要清醒认识到其回迁房的本质,在得房率、社区配置等方面与主流商品房存在差距。对于预算有限但又想上车西城的刚需群体来说,这是一个难得的机会;但对于追求高品质居住体验的改善型群体,可能需要降低预期。
最终决策还是要根据个人实际需求和预算来决定,毕竟在北京楼市,没有完美的房子,只有最适合自己的选择。
最后,今天给大家推荐的项目是5万+起的【运河久院】
它位于北京城市副中心通州,直接面对大运河,有260米宽的河景,这在北京市非常稀缺。项目设计也挺特别,采用了“立体森屿”理念,有风雨连廊和架空层设计。
户型方面做得不错,得房率高,有些能达到88%-95%,还有创新性的270度弧形转角窗和奇偶错层阳台。周边配套正在完善中,有亚洲最大的TOD枢纽,文化设施像北京艺术中心这些也在附近。
一线河景+创新设计在通州市场上还是比较少见的,项目很火,尤其大户型,其实是有收藏属性的,想要更多了解的朋友可以加微信,一对一给你解答。
声明:本文由入驻焦点开放平台的作者撰写,除焦点官方账号外,观点仅代表作者本人,不代表焦点立场。







