【建筑抄绘】——四分院 / 迹·建筑事务所
扫描到手机,新闻随时看
扫一扫,用手机看文章
更加方便分享给朋友

四分院是一个北京历史保护区城市更新的实验项目,一个传统居住类型的转化,一种对现代生活模式的应变,一场尺度和建造的实验……
Split Courtyard House is, a key project of urban regeneration of historic area in Beijing,a transformation of traditional typology,an adaptation to new life style,and an experiment on scale and construction…
1比30模型,1 to 30 model

场地 | Site
场地位于白塔寺旁边的胡同片区之中,属于北京城区内三十三片文化保护区之一(阜成门内大街片区)。单层的四合院和狭窄的胡同构成了现状良好的历史城市结构。这里有北京胡同区的典型意象:灰砖覆盖的坡屋顶、绿树、白鸽、空中的电线、吱悠的自行车和步调缓慢的胡同生活。
一路之隔,场地的南边是高密度的金融街,现代高层办公楼和酒店在过去的二十年里覆盖了那里曾经存在的胡同。现代与古老,富有与贫穷,垂直和水平之间的强烈对比构成了当代北京的一种特征。本项目是这片区域城市更新的起始,功能设定为合租公寓,可以被四个工作在附近的年轻人共享。
The site is located in the historic Hutong area near White Pagoda Temple (Baitasi, built in 1279AD), one of 33 conservation districts of history and culture in Peking’s historic city area. Single story courtyard houses (Siheyuan) and narrow alleys (Hutong) form the historic urban structure which is well preserved. Pitched roof buildings covered with grey tiles and bricks, trees, pigeons, electric lines in the air, bicycles, slow paced Hutong life, all these create the typical image of famous Beijing Hutong area.
To the south of this area, is the high density Financial Street District, a compound of modern high-rise office buildings and hotels, developed in past twenty years on the site used to be Hutong. Such contrast between modern and old, rich and poor, vertical and horizontal is the typical image of contemporary Beijing. The project is the launching project of urban regeneration plan of this area. The program is a rental house, which can be shared by 4 young people working in this area.








概念 | Concept
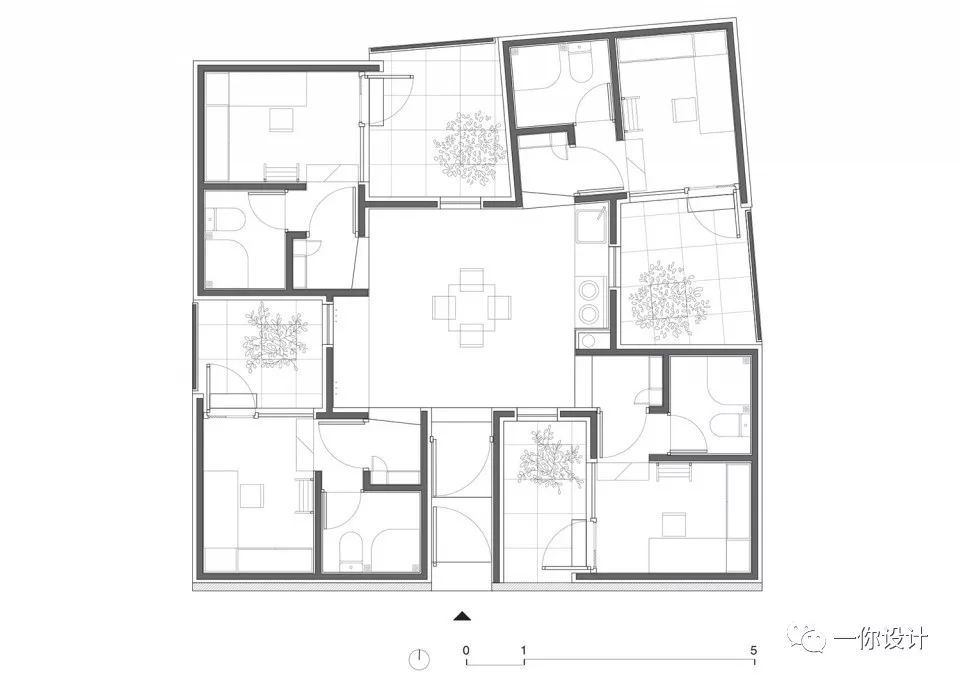
传统四合院里位于中间的院子是当之无愧的中心,所有的房间都朝向它。这种空间布局对应着传统的家庭生活,不再契合今天青年人的个人生活模式。个人生活的核心是私密性,所以我们的想法是将场地分为四组空间,每组包含一个房间和一个私人小院,它们各自朝向不同的方向,最终共同构成一个风车状布局。通过这种方式,每个房间和院子的私密性都得到保护。对比于传统四合院,本项目以四分院命名。从“合”到“分”的变化揭示出社会结构和生活模式在住宅中的转变。
In traditional courtyard house (Siheyuan), the central courtyard is the center of house and all rooms face the yard. Such spatial layout is responding to traditional family living, no longer suit for today’s young individual life style. The core need of individual living is privacy. So our idea is to divide the site into four sets of spaces, each with a room and a private small yard. With each set facing a different orientation, they form a pinwheel configuration on layout. In such way, privacy for each room and yard is ensured. In contrast to traditional courtyard house, this house is named split courtyard house(Sifenyuan四分院). In Chinese, the change from合(Unity) to分(Split) suggests the transformation of social structure and life style in the house.








空间 | Space
传统四合院先进入院子再进入房间,意味着院子是公共的,房间是私密的。在四分院里,顺序则是先房间后院子,院子成为最私密的地方。空间序列的转变对应集体生活到个人生活的转变。然而没有改变的是,院子始终是生活的核心,这顺应着中国人在生活中对自然的热爱。
院子虽小却十分重要,它建立起人与自然的亲密关系。根据每个院子的具体尺寸和中国传统审美,两棵杏树和两棵枣树被挑选出植于其间。
在房间内部,床被抬高到空间,由此让地面空间能够承载起居和洗漱的功能。面向天空的天窗和面向院子的通高玻璃将自然光引入室内,与自然保持联系,营造出安静内向的氛围。
四组空间在中心的交汇处是一个烹饪和交谈的共享空间。它与每个庭院之间都留有一个半透明的小窗,四个小窗拥有四种不同的传统样式,庭院里的树会把生动的影子投掷其上。
The spatial sequence is carefully considered. In tradition, courtyard is entered at first and room second, meaning courtyard is public and room is private. In Split Courtyard House, the sequence is from room to yard, meaning yard is the most private place. This is responding to the change from collective living to individual living. What is not changed is that yard is always with the living core, which conforms to the Chinese keen of nature in living.
The yard is small but of great significance for the life in here, as it forms an intimate relationship between man and nature. Two apricot trees and two date trees are carefully chosen for four yards, concerning the specific scale of each yard and the traditional Chinese aesthetics.
In each room, the bed is lifted into attic space to free the ground space for living and bathroom. The skylight and full height glazing facing the yard bring in natural light and make contact to nature, offering a quiet and introverted atmosphere.
The central join of the four individual units is turned into shared living space for dining and chatting. A window is opened between the shared living space and each yard, with translucent glass protecting privacy. Each window acquires a unique traditional shape and the tree planted near to it in the yard may cast vivid shadows on it.




























形式 | Form
四分院是从传统四合院类型转变而来,成为胡同肌理中一种新的单层院落住宅类型。它的外部是历史风貌的组成部分,因而继承灰瓦覆盖的坡屋顶和灰砖或抹灰覆盖的墙壁。内部的材料则完全是现代的,白墙和木地面为现代生活提供了简洁而明亮的背景。
Transformed from traditional courtyard house typology, Split Courtyard House is a new type of single story courtyard house inserted into Hutong context. Its external surfaces are constituent parts of the local context, so it inherits pitched roof covered with grey tiles and walls covered with grey bricks or plaster. The inside materials are completely modern. White wall and wooden floor bring in a simple and bright background for modern living.


建造 | Construction
胡同对建造构成了多种限制,如狭窄的场地(10米见方)、交通、噪音等等。四分院以预制轻质墙板体系缩短现场建造的时间,尽量降低其对邻居的影响。同时,这种结构体系能够减小墙壁的厚度,以此节省出更多的使用空间。
Adapting to limitation of construction condition in Hutong, such as compact site (10m x 10m), transportation, noise etc, the house is constructed with prefabricated lightweight wall panel system, to shorten the onsite work period and minimize the impact to neighbors. With this system, we also try to minimize the wall thickness in order to save more space.





尺度小巧却功能齐全,氛围亲密却向自然开放,现代生活却具有传统审美,四分院在北京旧城高密度历史肌理中提供了一种生活的可能。
Small yet functional, intimate yet open to nature, a modern living style yet with attachment to Chinese traditional aesthetics, is what split patio house offers to urban individuals in high density historical context of Beijing’s old city.


项目基本信息项目名称:四分院业主:华融金盈投资发展有限公司项目地点:北京市西城区项目功能:出租公寓设计单位:迹·建筑事务所(TAO)主持建筑师:华黎设计团队:华黎、张锋、刘小亚、赖尔逊、刘文娟、Igor Bragado Fernandez、张芝明、沈周娅、赵玮结构体系:赛木轻钢墙体系统基地面积:97平方米建筑面积:82平方米设计时间:2014.01 – 2014.06施工时间:2015.02 – 2015.05
往期精选
【129】【素材】——高端手绘素材png
【130】【书籍】——建筑设计材料运用与肌理1/2
【128】【资料】——桑丘-玛德丽德霍斯事务所设计作品1991-2004
【122】高清衬底图素材
【120】大师专辑——伊东丰雄
【117】钢结构手册
路易斯康(LouisI.Kahn)专辑
基地分析
声明:本文由入驻焦点开放平台的作者撰写,除焦点官方账号外,观点仅代表作者本人,不代表焦点立场。







