北京城区四环外,临铁+产业+南北双阳台,每平不到8万?
扫描到手机,新闻随时看
扫一扫,用手机看文章
更加方便分享给朋友
上车门槛接连下调、产品设计不断突破、价格更是惊喜连连...
——这就是2024年中的北京楼市。
卷这个字,大家可能听腻了,但每次项目问世,师妹都很难不再感叹一次!
今年的京楼新房设计,无需和五年前相比...哪怕就是对比三年前,都有相当大的突破。
今天要说的这个项目,四环外临铁+多产业环绕+南北双阳台...
城建玺院,真的又卷出了新高度。
城建玺院,是北京城建承担的城市旧改项目。
项目位于丰台区小屯西路105号院,西四环外。
属于大瓦窑板块,这是丰台交通比较优秀,且新房也比较多的板块。
首先,轨道交通相当通达。
玺院与地铁14号线郭庄子站直线距离约800米,三站到达丽泽商务区,对在丽泽工作的朋友很友好。
另外四环外这个位置,向北可触及五棵松商圈、海淀中关村,往南触及丰台科技园。
能够同时辐射多个重点产业区。
其次,商业和教育资源齐全。
商业上,3公里左右翠微百货,5公里左右有五棵松华熙live、万达广场等大型商场。
教育上,300米左右丰台二中附属实验小学、400米左右丰台区建华学校、1.2公里丰台二中(初中部)、1.8公里丰台十二中附属实验小学。
另外,医疗和生态也比较完善。
项目五公里内有首都医科大学附属北京朝阳医院(西院)、解放军总医院第五医学中心(南院)、中国人民解放军总医院(301医院)。
西侧800米为17.2万㎡的大瓦窑体育公园,东北方向600米有12万㎡的绿源公园,周边还有天元公园、经仪公园、永定河沿线晓月郊野公园、北京园博园、绿堤公园、丰台花园、万丰公园、北京雕塑公园等丰沛自然生态资源环伺。
总体来看,城建玺院周边的生活配套还是比较丰富的。
从产品来看,不同于大瓦窑板块其他改善项目,城建玺院选择做更大的面积段,适合终极改善,也就是想要一步到位的人群选择。
项目规划建设13栋住宅楼,洋房+小高层+高层组合,楼栋总高6-26层,容积率 2.8,总户数707户。
南北双阳台、外立面大面积玻璃幕+铝板+侧面石材、高窗墙比,放个效果图大家感受一下。
产品户型是建面约154-280平米四居。来重点看几个户型图:
建面约154平米四居,私家电梯厅+玄关,南北双阳台,四叶草格局,每个卧室面宽都在3米以上,多口之家起步首选。
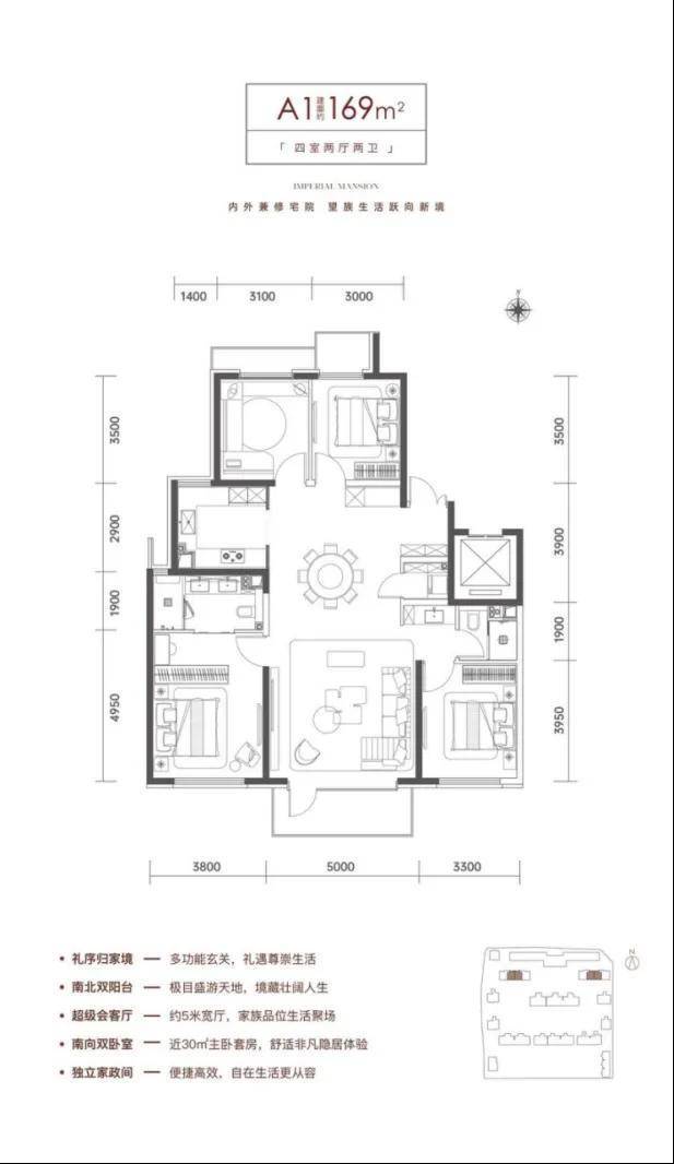
建面约169平米四居,同样南北双阳台,客厅面宽5米,主卧套房面宽3.8米,整体近30平空间,主卫升双台盆配置;次卧面宽3.3米,临近客卫同样拥有套房的便捷度;北向两次卧挨着根据不同需求可以打通灵活设计。
建面约183平米四居三卫,客厅面宽约5.1米,近50平米社交空间;南向双套房、近30平米星级主卧套房,带有双台盆+观景浴缸,主打奢侈豪气!
建面约206平米四居三卫,两梯两户,超大私属电梯厅,大阳台+6米面宽客厅,社交空间近60平,终极改善的奢华感拉满;南向双主卧,面宽至少是3.5米以上的水平;北向两次卧挨着,空间可变性强。
玺院的户型空间使用率最高约90%,而且全屋国际一线大牌精装交付,师妹看了都很是心动!
据说,据说项目开盘价还不到8万...
西四环+近多个产业+配套优秀+产品nice!师妹认为是值得的!
近几年大瓦窑板块有多个新盘入市,但做终极改善面积段的项目除玺院外几乎没有。
所以想要改善一步到位,想要居住圈层更加纯粹的朋友,可以考虑看看了。
声明:本文由入驻焦点开放平台的作者撰写,除焦点官方账号外,观点仅代表作者本人,不代表焦点立场。







