纯干货!京北均价3万/平共产房选房在即 选房攻略&注意事项奉上
扫描到手机,新闻随时看
扫一扫,用手机看文章
更加方便分享给朋友
昌平区未来砚园共有产权住房项目将于8月3日开始选房,在搜狐焦点购房群里也经常收到一些朋友的咨询,问应该如何选?有哪些注意事项?基于这些问题,小编写了这篇选房攻略,希望对即将要选房的朋友提供一些帮助。
先来简单回顾一下基础信息:
房源情况:配售房源为347套,其中约88平方米两居333套、约119平方米三居14套
销售均价:含全装修费用30000元/平
个人产权占比:单套住房的购房人产权份额比例为65%

楼栋方面,优选3#、6#、8#、11#,处在小区中间位置,不临街,噪音干扰小;其次15#、14#的中高楼层也还行,虽然临街,但双车道噪音也还好,选中高层影响会小一些
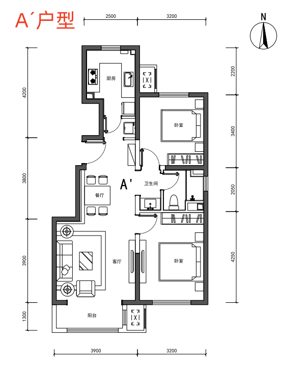
户型方面,先来看88平两居,A和A(反)的关系就是对称,格局都一样,A´和 A´(反)同理。从格局来看,A和A´最大的区别就是,A户型卫生间没窗户,A´户型卫生间有窗户,是明卫,所以优选A´户型。


再来看119平三居,B户型和B´户型的区别是,B户型的两个卫生间是暗卫,B´户型的两个卫生间是明卫,其余格局都一样,所以优选B´户型。


楼层方面,7#住宅楼、12#住宅楼、13#住宅楼是地上8层,其余楼栋均为地上10层。楼层方面,1层和顶层是不建议的,优选中高楼层。8层高楼的,优选3-7层;10层楼高的,优选4-9层。
从得房率来看,两居得房率80%左右,本次配售333套,是主力户型;三居得房率84%左右,如果预算够,优选三居室,不仅得房率高,住起来也更舒服,但是房源不多,只有14套。
注意事项
1、完成选房后,购房人应同时交纳人民币5万元(伍万元整)定金并签订认购书。如购房人未能在选房当日交纳足额定金,则视为放弃本次选房资格。
2、根据《北京市共有产权住房管理暂行办法》(京建法〔2017〕16号)规定,申购家庭放弃选定住房或选定住房后未签订购房合同,累计两次及以上的,3年内不得再次申购共有产权住房。
声明:本文由入驻焦点开放平台的作者撰写,除焦点官方账号外,观点仅代表作者本人,不代表焦点立场。







