长租公寓35㎡超强样板间!
扫描到手机,新闻随时看
扫一扫,用手机看文章
更加方便分享给朋友
不足40㎡的北欧风小家里,有慵懒舒适的白色浴缸,有承载着满满生活气息的U型厨房,有阳光工作区和洗衣房,还有一到周末就可以窝在沙发上吃零食、看电视、撸猫的休闲客厅......
既然小户型经不起那么多的折腾,那么在现有格局下保持一种“乱中有序”的美感,也不失为一种恰当的选择。
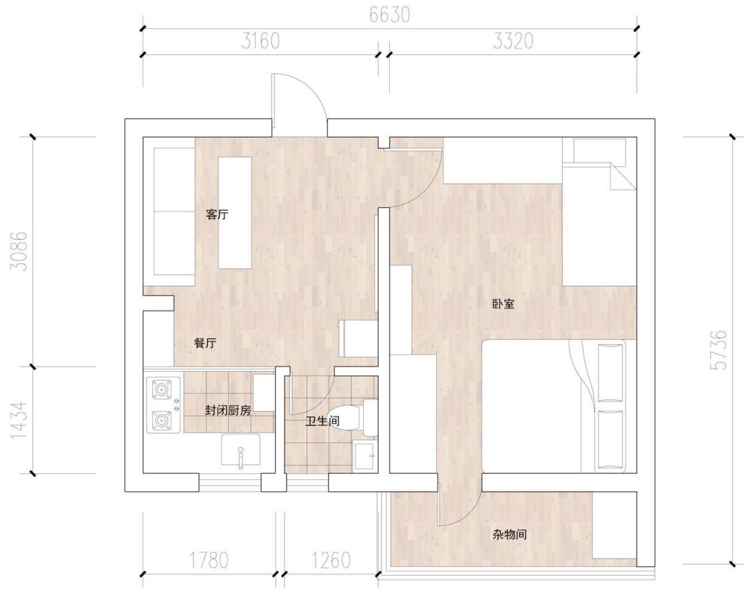
户 型 图
户型:1室
使用面积:35平米
装修花费:18万
梦想是美的,但是这套老公房的格局存在太多缺点,说起来真是一言难尽。
1.入户没有换鞋空间,换鞋放包很不方便。
2.洗衣机放在本就拥挤狭小的厨房里面,无法享受两个人一起做饭的乐趣。
3.客厅的一半空间被浪费,作为连接卧室与卫生间的通道来使用。
4.卫生间空间局促,没有实现干湿分离。
5.L型窗的阳台成了乱糟糟的杂物间。

原始户型图
在不动墙体,保守改造的前提下
利用原有门洞做出玄关
缩小卧室面积,为客厅、厨房让出空间
储物家具放在空间较大的卧室里
扩大卫生间面积并安装浴缸
阳台成为工作区与洗衣区的功能组合......

改造后户型图
入 户
入户以简洁的白色为主,
视觉上更加明亮、清爽;
白色收纳柜具有很强的收纳力,
可以将一些零零碎碎的东西优质隐藏起来。
纯白防盗门非常洋气,
色调上与室内风格正好相融,
上下开门的样式有效保证了
小户型的通风、散热,
而且也不妨碍隐私的保护。
宜家小推车暂时被拿来充当鞋架,
上面摆放了几双常用的拖鞋,
其他鞋子则被井然有序地放入鞋柜,
既便于找鞋,又节省空间。
鞋柜上面放置了一些装饰画,
那是SnowFong打印而成的照片,
一帧帧美好的瞬间被定格下来,
成了记忆中永恒的收藏。
玄关的面积不大,
但功能上非常丰富。
它可以解决换鞋、收纳、自拍、整理仪容等需求,
合理布置的结果,
就是拥有一种非常高效的感觉。
在杂而不乱的角落里点缀一些小美好,
生活便平添了许多惊喜。
客 厅
客厅紧挨着厨房而设
既是家庭活动区,又是小型办公区。
地毯上面的细脚小茶几体积虽小,
但偶尔也承担书桌的功能,
在上面记点东西或者抱着电脑上下网,
都是比较日常的做法。
由于客厅电视墙为卫生间让出了不少空间,
所以它的面积被大大缩小,
摒弃了复杂的墙面装修后,
放置一台55寸的电视也不成问题。
收纳部分由一个斯德哥尔摩的电视柜,
以及电视上方的隔板来承担,
前者用来放置电器和杂物,
后来则主要作为作品展示区,
上面的作品都是SnowFong亲手创作的,
隐隐彰显出不凡而独特的审美品位。
沙发背景墙也以实用美观为特色,
设计了一组白色的吊柜,
各种图案不一的抱枕增加了客厅的层次感,
为这简约狭小的空间带来灵动美。
盆栽的加入更是为居室注入活力
当天色变暗,屋里暖黄色的灯光亮起,
整个场景变得更加温馨无比。
从客厅一角望向厨房的样子,
简直一目了然。
灵活实用的折叠餐桌省去了一个餐厅的空间,
为行走区域扫除了一切“障碍”。
被各种电器和餐具塞得满满当当的厨房,
折射出浓浓的生活气息。
转角处精心布置的台面,
也是客餐厅较独特的亮点。
厨 房
由于小夫妻的饮食习惯是偏西式的,
所以不会造成过多油烟的困扰,
采用开放式的格局来设计厨房,
可以较大程度地实现活动面积的共享。
乱中有序的物品摆设,
是SnowFong较喜欢的场景,
毕竟厨房要塞满瓶瓶罐罐和
具备一定的烟火气,
才会有真正的生活味道。
左侧墙上的茶水吧是从水池区延伸出来的,
高度和右边的灶台差不多,
U字型布局较大的好处就是设计上比较人性化:
水槽设置在中间,
操作区和常用工具都放在左右两侧,
留有转身余地的同时,
操作上也非常方便。
小户型厨房因为面积较小,
也不能把所有东西一股脑儿都放在操作平面上,
尽量依据使用的频率来决定物品摆放的位置,
才能保证厨房不杂乱,尽享烹饪的乐趣。

外置工具近景照

卧 室
卧室风格以天然的原木基调为主,
搭配棉麻素色床品和一些
自然清新的绿植之后,
整体看起来简洁而淡雅,
气质感分分钟炸裂~~~
床头柜左侧有一个白色的大型衣柜,
几乎可以悬挂两个人所有的当季衣服。
床头右侧则是一个长形立式梳妆台,
无拉手设计简单实用,为视觉减轻负担,
抽屉内部可以满足所有化妆品的
分类收纳需求。
小夫妻平时喜欢看电视和看书,
所以床的对面干脆设计了
一面承载多种收纳功能的电视墙。
严格来说,
这也不算是真正意义上的电视墙,
而是通过各种原木柜体将电视围合起来,
形成一个有着满满生活气息的功能区。



“占地为王”的喵主子盘踞在梳妆台上,
这严肃的表情真的是瘆得慌啊!
卫 生 间
在2㎡多的卫生间里塞下一个浴缸,
听起来实在是有些“捉襟见肘”。
但是通过合理的规划,
将洗手台、马桶、浴缸见缝插针地安排起来,
形成一个不失舒适感的紧凑型设计,
也是一种比较理想的做法。
为了实现简单的干湿分离,
这个时候浴帘的作用就很重要了。
泡澡的时候拉上浴帘,
淋浴时将浴帘放在浴缸里,
可以避免洗澡水溅得到处都是。
浅色的浴帘和窗口的绿植搭配在一起,
洋溢出一股清凉的气息。


下水管左边的一平米是后来增加的部分,
面积虽然不大,
但对于空间逼仄的小户型来说,
实用程度不言而喻。


免打孔浴巾架是黑色的,
整体色调与小白砖形成对比,
但看上去非常和谐。
阳 台
阳台的左边放电脑桌,
采光充足,视野良好,
不多的不足是北京灰尘太多了,
要经常打扫才能保持整洁。
SnowFong的书桌上摆满了她的作品,
由于绘画工具较多,
台面看起来有点乱乱的,
但她本人却在创作中得到了巨大的成就感。



另一侧的洗衣区旁边有两面窗户,
所以不得不放弃了吊柜设计。
除了洗衣机架、猫包等颜值较高的物品,
可以有机会担当门面外,
其他零零散散的清洁用品,
都被隐藏在巨大的餐布后面。
在帝都这个偌大的城市里,
有阳光、有绿植、有可爱的猫,
还有一处温馨舒适的北欧风小家,
这对小夫妻把生活过成了人人羡慕的模样,
因为用心,
小户型也能成为诗意的蜗居。
声明:本文由入驻焦点开放平台的作者撰写,除焦点官方账号外,观点仅代表作者本人,不代表焦点立场。
