海淀区西北旺和丰台槐房新宫,两个共产房开始申购了
扫描到手机,新闻随时看
扫一扫,用手机看文章
更加方便分享给朋友
海淀区较大的共有产权房项目今日起开始申购。项目的名称是“永靓家园”,位于北京市海淀区西北旺镇,项目四至为:东至西北旺镇西路,西至HD00-0404-0010、6015地块,南至西北旺镇北环路,北至六里屯南路。具体位置下图所示,距离16号线西北旺地铁站大约1.2公里,位置不错。

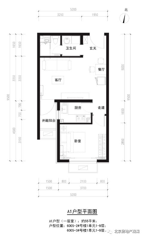
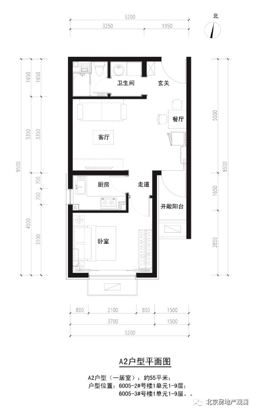
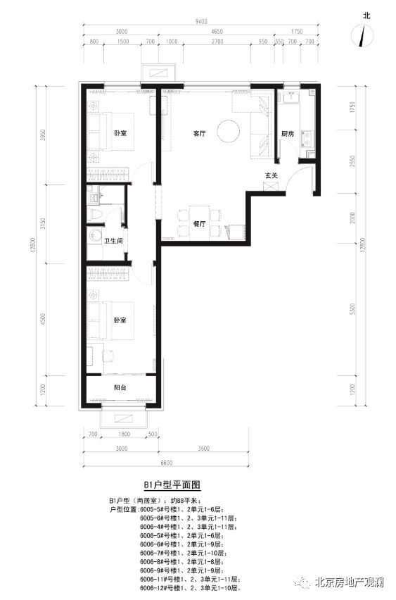
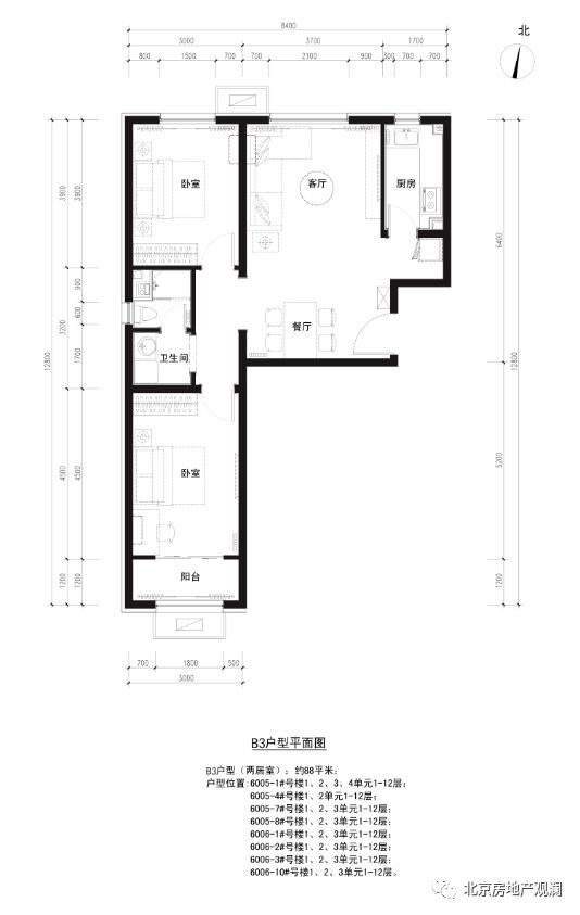
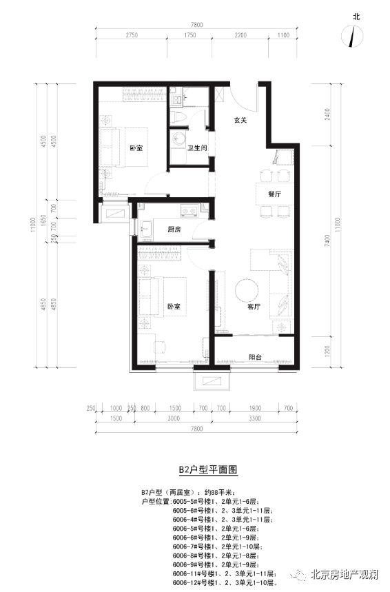
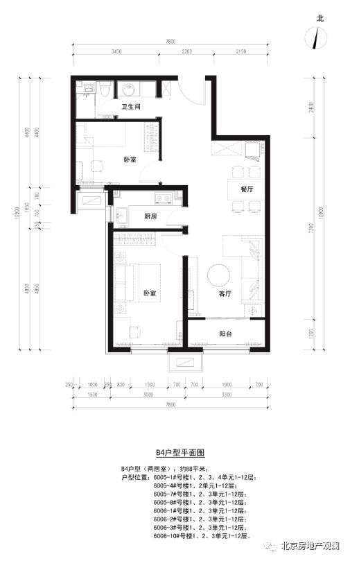
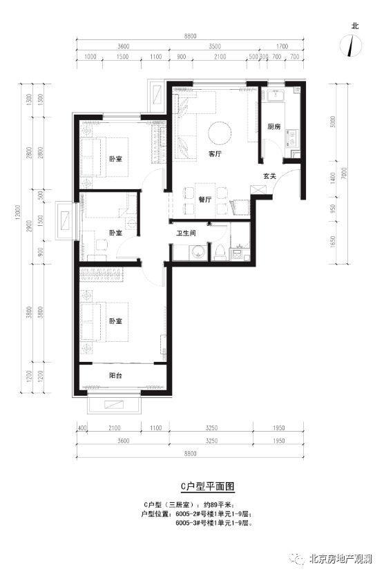
项目规划地上总建筑面积约18.7万平方米,其中共有产权住房地上建筑面积约18.4万平方米,套型主要为约55平方米一居54套, 约88平方米两居2051套, 约89平方米三居36套, 总套数2141套,含全装修费用销售均价37800元/建筑平方米。
该项目单套住房的购房人产权份额比例为70%,北京市海淀区保障性住房发展有限公司(政府产权份额代持机构)持有30%份额。
销售均价3.78万,产权比例为70%,简单计算,相当于全部产权的价格为5.4万/平米。这个项目旁边就是三个限竞房,分别是山屿湖,翡翠云图和葛洲坝亮甲村地块的项目,三个限竞房的限价都是5.3万/平米,基本与折算的永靓家园全部产权的价格差不多。附近的次新二手房保利西山林语,目前链家上的7月份参考均价是6.47万/平米。
申购须知:
非京籍的房源比例不再是30%“一刀切”了,而是根据京籍和非京籍的实际 申购数量动态调整;
分组
(1) 海淀区户籍无房家庭和在海淀区工作的本市其他区户籍无房家庭。
(2)在海淀区工作的非本市户籍无房家庭。其中分为优先组和普通组:
优先组:在海淀区国家高新技术企业和中关村高新技术企业工作的非本市
户籍高新技术企业人才的无房家庭。
普通组:其他在海淀区工作的非本市户籍无房家庭。
即非京籍分组里向在海淀工作的高新技术人才倾斜。
单身家庭,是不能选择三居的。
下面是小区平面图和户型图:








丰台区南四环的槐新雅筑共有产权住房项目,明天也开始申购了。
槐新雅筑项目位于槐房新宫,紧邻地铁新宫站,旁边就是万达广场(槐房),位置非常好。

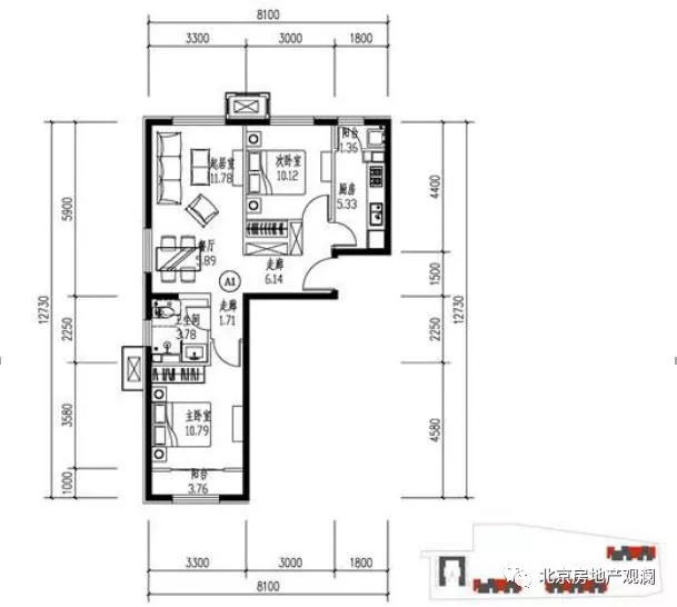
项目规划总建筑面积约69322.01平方米,其中共有产权住房地上建筑面积约40292.18平方米,共有3栋16层楼宇,项目总套数478套,均为单套建筑面积约84-89平方米的二居室,含全装修费用销售均价35000元/㎡(根据具体楼层、朝向在±5%的范围内调整销售价格)。

该项目单套住房的购房人产权份额比例为60%,北京市丰台区保障性住房发展有限公司(政府产权份额代持机构)持有剩余40%份额。
销售均价3.5万,产权比例为60%,简单计算,相当于全部产权的价格为5.83万/平米。旁边的新房商品房项目有天悦壹号均价8.3万,公园懿府均价7.4万;而南五环外的几个限价房项目基本在5.2~5.5万,可见共有产权房的折算价格基本与限价房价格相当。
申购须知:
同海淀区一样,非京籍的房源比例不再是30%“一刀切”了,而是根据京籍和非京籍的实际 申购数量动态调整;
分组
(1) 丰台区户籍无房家庭和在丰台区工作的本市其他区户籍无房家庭。
(2) 在丰台区工作的非本市户籍无房家庭。其中分为优先组和普通组:
优先组:在中关村科技园区丰台园和丽泽商务区工作的家庭。
普通组:其他在丰台区工作的非本市户籍无房家庭。
即非京籍分组里向在丰台科技园和丽泽商务区工作的人才倾斜。
户型图如下:


扫一扫关注我们的公众号 - “北京房地产观澜”
欢迎进“北京房地产观澜群”交流讨论楼盘信息,购房知识和投资技巧。
下面是观澜助手的微信二维码,微信号是brook55188。添加观澜助手的微信,拉你进群。
声明:本文由入驻焦点开放平台的作者撰写,除焦点官方账号外,观点仅代表作者本人,不代表焦点立场。







