均价2.9万/平,1800套共有产权房要来
扫描到手机,新闻随时看
扫一扫,用手机看文章
更加方便分享给朋友


哈喽大家好,今天我是带来共有产权房消息的血拼哥。
大兴瀛海再推共有产权房大盘!
过节期间瀛海第一个面市的共有产权房正商杏海苑发布了交付精装的消息,楼栋大堂给我镇住了:共产房用料装饰方面确实有很大进步。


电梯间瓷砖上墙,室内装修的风格也不错,简约大方。



这个项目刚出的时候也有人在犹豫:南五环外,看着还挺慌,这边置业有点远呐。
不过随着瀛海板块配套的丰富,市政道路一条条的开通,其他共有产权房项目区位情况的对比……
瀛海接下来入市的项目一个比一个抢手。
2022年随着兴海星光里和北投如郡嘉园售罄,瀛海共有产权房项目也进入空档期,大家苦等半年终于迎来“补货”的好消息。
瀛海继续供应共有产权房项目,今年5月,大兴区瀛海镇YZ00-0803-2057、2019地块案名公示-【星光里·星筑】,户型图最近亮相,之前给大家介绍过。
如今,另一宗地,大兴区瀛海镇YZ00-0803-2006、2029、2031地块共有产权房项目案名也有消息啦——大兴发展·亦生悦。
项目位于大兴区瀛海镇,南五环外,京台高速与黄亦路交叉口附近,周边两公里有地铁8号线瀛海站。

共有产权房销售限价为2.9万元/平米(含全装修)。

项目规划设计方案已经公示,地块分了ABC三个区。
亦生悦A区,占地24480.16㎡,总建面85312.57 ㎡,可售面积51086.24 ㎡,容积率2.2,住宅总套数496套。
亦生悦B区,占地34968.59㎡,总建面118469.22 ㎡,可售面积75616.89㎡,容积率2.2,住宅总套数718套。
亦生悦C区,占地27839.05㎡,总建面94253.85 ㎡,可售面积60280.39㎡,容积率2.2,住宅总套数586套。

鸟瞰图
A区西边就是正商杏海苑,往南就是瀛志路,可以穿过京台高速,通向瀛海地铁站,距离上比杏海苑有优势。
南边紧邻的地块规划了幼儿园。

B/C区,更靠南,北侧是瀛信路,西北紧邻的地块规划了九年一贯制的学校。
项目预计可提供1800套房源,小区完全实行人车分流,地下设置停车位1996个。
小区规模比较大,属于大型社区,配套也更为完善。
社区配套包含了便利店、图书馆、健身房、干洗店、宠物医院、社区剧场、社区食堂、户外篮球场、户外儿童娱乐、户外跑道等。
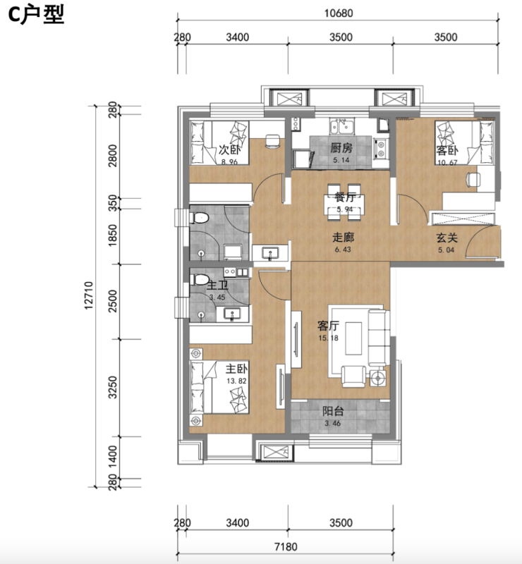
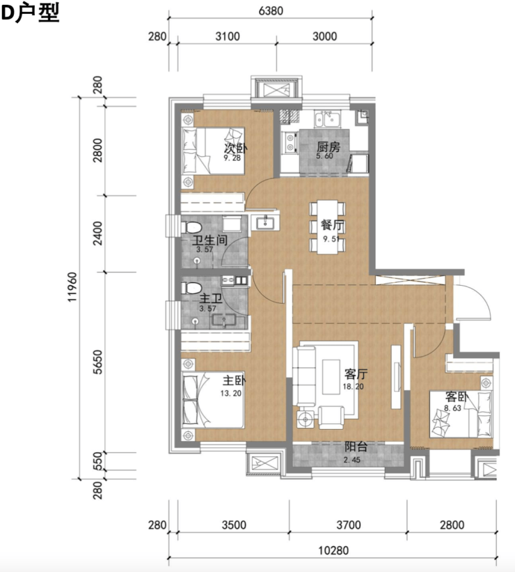
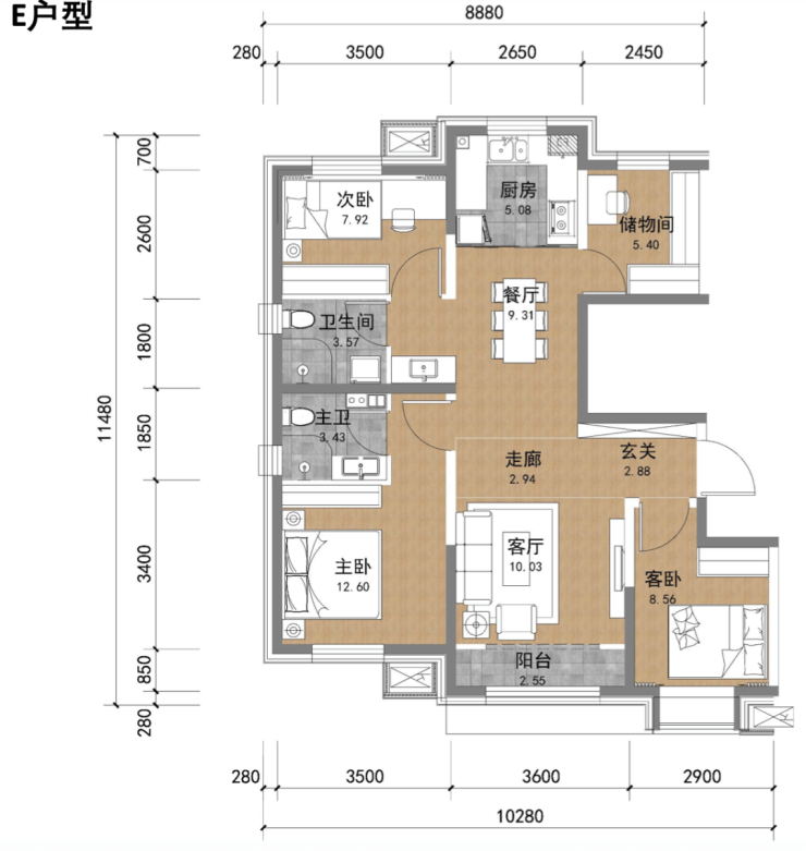
公示户型设计稿如下,不是终版,血拼哥会紧跟项目进度,有终版消息第一时间跟大家分享!

建面约89平户型设计图,仅供参考,以开发商终版为准

建面约89平户型设计图,仅供参考,以开发商终版为准

建面约118平户型设计图,仅供参考,以开发商终版为准

建面约118平户型设计图,仅供参考,以开发商终版为准

建面约118平户型设计图,仅供参考,以开发商终版为准
目前看项目入市的进度也在加快,参看同地区之前网申的项目情况,这个项目也很可能面向城六区家庭开放。
想上车共产房的朋友可以关注起来了。
声明:本文由入驻焦点开放平台的作者撰写,除焦点官方账号外,观点仅代表作者本人,不代表焦点立场。







