朝阳再现三处低价新房!320万上车89平三居
扫描到手机,新闻随时看
扫一扫,用手机看文章
更加方便分享给朋友
如今朝阳区已成为共有产权新房供应大户,除了已经选完房的锦安家园和城志畅悦园,还有5个项目地块处于待申购状态。

众所周知,朝阳的房价一直居高不下。共有产权房单价较低,如果占上一个好地段,自然热度居高不下。今天,焦点君就带着大家了解一下朝阳的低价好房,梧桐湾、梧桐港和上东郡。咨询购房专家买房问题请添加小助理微信号:goufang02 有问必答
上东郡
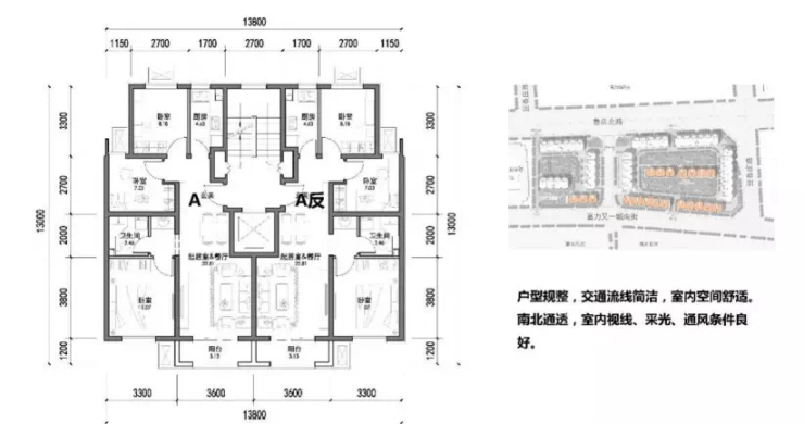
上东郡含全装修费用销售均价43000元/㎡,主要建筑面积约56㎡一居6套,约79㎡二居578套、约89㎡三居886套。项目容积率为2.64,全装修交房,产权占比待定。

从户型来看,89㎡三居为边户,南北通透;卫生间干湿分离,明厨明卫。
79㎡二居为中间户,纯南向户型;卫生间干湿分离,明厨暗卫,卫生间通风除湿较差;次卧南向面宽仅1米3,且位置内缩,可能会影响采光。
中国铁建·梧桐湾
中国铁建·梧桐湾项目2017年年底由中铁建以18.6亿元竞得,价格36000元/平(含全装修费用)。根据规划信息,项目容积率2.1,将建设866套房源,东侧是围合型布局,将有部分东西向房源,可能会有部分价格上的优惠,大家可以持续关注。

关于户型,项目目前流出的信息只有主力户型89㎡三居室,套内面积大约74㎡,得房率在82%左右,南北通透、双开间朝南、卫生间干湿分离是户型的优势,设计不足之处在于卫生间无窗,整体来说还不错,大家可以考虑。
咨询购房专家买房问题请添加小助理微信号:goufang02 有问必答
中国铁建·梧桐港

中国铁建·梧桐港项目,容积率较低仅为1.6,整体较为舒适,根据总平面图,项目共建有16栋住宅楼,全部是5至6层洋房,另有2栋商业配套,南侧与萧太后河只隔了一条马路。目前户型网传是77平米两居,新消息还得继续关注。

总之,朝阳的共有产权房项目一直受网友关注,热度不减,相对于周边5万元/平的二手房,36000元/㎡的价格还是很有优势的,并且,中铁梧桐湾项目已经开建,距离开始申请也不远了!
声明:本文由入驻焦点开放平台的作者撰写,除焦点官方账号外,观点仅代表作者本人,不代表焦点立场。







