浏览器版本过低

您当前使用的浏览器版本过低,可能存在安全风险,建议升级浏览器,或者用以下浏览器浏览

您也可以直接使用焦点APP或微信小程序浏览

北京

官方购房群

扫码进群领资料购房干货全都要

亦城亦禧家园

400-616-2877 396141

近期如有看房活动,请通知我

已有67人报名

立即报名
立即加入

亦城亦禧家园楼盘点评

27人评价了该楼盘
查看更多

抱歉~当前星级下暂无精华贴

拼房帝北京答疑小助手
拼房帝北京答疑小助手 真想买

价格: 5 地段: 5 交通: 5 配套: 5 环境: 5

未来逸园进拼房帝官方讨论群,加微信:pinfang66663,拉你进群!

2020-05-07 17:19:22
只能点一次哟~有用(19) 回复 收起回复
微信用户
微信用户 有计划

价格: 4 地段: 4 交通: 4 配套: 4 环境: 4

2023了,还有人在等吗?

2023-04-09 12:33:52
只能点一次哟~有用 回复(2) 收起回复
微信用户
2023-04-14 19:36:04
最近要二次网申了吗
微信用户
2023-04-14 19:36:02
最近要二次网申了吗
流水菜
流水菜 有计划

价格: 4 地段: 4 交通: 4 配套: 4 环境: 4

请问知情人士,今年摇号选房还有戏吗?

2022-10-14 15:23:52
只能点一次哟~有用 回复 收起回复
3.9
综合评分
3.9
价格
4.0
地段
3.9
交通
4.0
配套
3.8
环境
写点评

隐藏

楼盘对比栏

请选择楼盘加入到对比栏!
最多可同时对比四个楼盘!
全部清空
开始对比
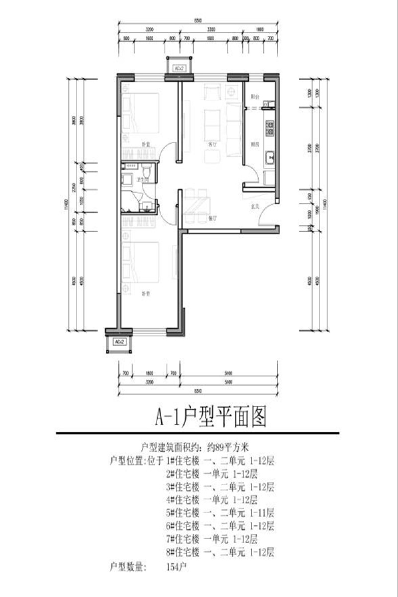
A-1户型89平两室一厅一卫

楼盘点评

0

综合评分

自动计算评分结果

价格:
给价格打分 不错0
地段:
给地段打分 不错0
交通:
给交通打分 不错0
配套:
给配套打分 不错0
环境:
给环境打分 不错0
0/200(最少10个字)
提交点评