北五环外开年降价绝杀?76平三面宽!区域首个阳台+会所的“好房”咋样?
扫描到手机,新闻随时看
扫一扫,用手机看文章
更加方便分享给朋友
哈喽大家好,我是血拼哥!
昌平开年第一个新盘来了——越秀星耀未来。
海淀的平替昌平,朱辛庄的平替小沙河。这个平替中的平替到底如何?
先来说说大家最关心的价格。
2024年10月22日,越秀和未来科学城联合置业,以底价25.33亿元拍下该地块。
楼面价2.5万,销售指导价6.6万。
实话讲,这个楼面价已经很低了,价格下降空间绝对充足,所以推测开盘价格可能低于6万。
最新消息,开盘价可能5万+。
再加上2024年昌平供应太多项目导致产品内卷,2025年开年豪宅降价求生存。
价格战要被打响了。
No.1 海淀北外溢,产业加生态
项目位于昌平小沙河板块,距离地铁朱辛庄站直线距离1.7公里。公交线路较少,离地铁站比较远,交通便利性不足。
据传,开发商提供的解决方式是,提供3年免费班车接驳。但后续的通勤,还是要看交通规划。
地面交通相对便捷。南侧的定泗路、北清路贯北侧的北六环路穿东西,西侧的京新高速、京藏高速贯穿南北。20分钟到达上地商圈,30分钟即可到达五道口商圈。

项目周围覆盖的商业比较丰富。南侧1.7公里有朱辛庄核心商圈内的万达广场和TBD商务区,西侧3公里挨着北京超级合生汇。据说未来项目附近还会有临街商业。
教育方面,东侧有规划中的待建幼儿园。周边有北京101昌平实验学校(9年一贯制)、北京101未来科学城学校等优质教育资源。
医疗方面,临近积水潭医院(回龙观院区)、北京大学国际医院、北京大学第六医院昌平院区和昌平中西医结合医院,医疗条件优越,三甲医院环绕。
生态优势明显,除了紧挨着的昌平新城滨河森林公园和翠明湖,还有一个1339亩生态休闲公园正在建设中。
No.2 首个低密度洋房,首个阳台加会所
星耀未来容积率只有1.8,一梯两户,6-8层的纯洋房社区。全洋房+大阳台项目,这在昌平南是唯一一个。得房率在80%-90%,血拼哥见了太多超高得房率项目,只能说尺度还是不够大。
项目拥有一个约1000平米的下沉广场,和600平米会所以及地上活动场地,这个配置在目前的朱辛庄板块内是很少的。
76平两居:南向三面宽,南北通透全明户型,户型不多要靠抢。
98平三居室:南向三面宽,全明户型,数量也不多。不足的是只有一个卫生间,且卫生间是暗卫。
107平三居室:数量最多的户型。南向三面宽,全明采光。南向1个设备平台,北向1个阳台2个飘窗,还设计了独立家政间。
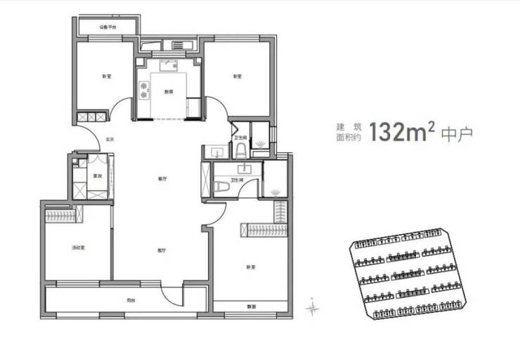
132平四居:经典四叶草,动静分离,分区合理。用L型衣橱将主卧与卫生间分隔开,设计人性化。这个户型的赠送面积最大,南向内嵌式阳台和飘窗,北侧有设备平台。
No.3 昌平这么多项目,到底谁有性价比?
把目光放到项目3公里范围内,在售项目有越秀星樾和中海寰宇未来。周边项目表现如何呢?
越秀星樾:均价6.15万,以小高层为主,得房率约75%-80%。一期红火开盘,二期马上入市,据说要涨价。
中海寰宇未来:均价6.28万元/㎡,去化率33%,产品力与星耀未来差不多但价格更高。项目开盘后可能对寰宇未来造成一定冲击。
再来看位于小沙河板块的龙湖观萃:产品力还行,是昌平第一个外露阳台项目。但是位置尴尬,再往北一站可能都不到5万/平,所以难言性价比,据说推出特价房,去化掉了一部分。
星耀未来楼面价仅2.5万,沾光朱辛庄,销售指导价6.6万,但到底没有朱辛庄的轨道和配套条件,预计开盘价会低于6万。
项目优势明显,劣势也很明显。
问题和龙湖观萃几乎一样。如果是想依靠19号线北延直达金融街,或者东北环线直达望京/CBD,我都选到这个位置了,为啥不往北多走一站地,还能便宜2万。
如果就近通勤,在生命科学园或者永丰上班,也是同理。
未来要入市的北四村地块同样面临这样的尴尬,只能说,看价格是不是合适吧。
最后是星耀未来自己的问题,交通不便,挨着地铁线,但是不临地铁站,并且周围的城市界面有待提高。对轨道交通通勤有硬性要求的小伙伴,可以绕道而行了。
声明:本文由入驻焦点开放平台的作者撰写,除焦点官方账号外,观点仅代表作者本人,不代表焦点立场。







